Let's take an overview
Ad reference : 2771MONLAC
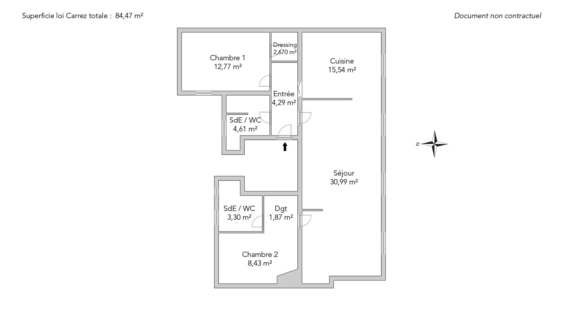
Ideally located in the heart of Les Batignolles, a few steps from shops and transport, charming 84.47sqm Carrez walk-through apartment on the fifth and top floor of a secure building with janitor.
In absolute calm, overlooking a pretty courtyard planted with trees, it is the only one on the first floor and offers a large south-facing living room bathed in sunlight and opening onto an open-plan kitchen, two quiet bedrooms overlooking the courtyard, one with an adjoining dressing room, and two shower rooms, each with its own toilet.
Two cellars complete this offer.
EXCLUSIVE
- Habitable : 909,23 Sq Ft
- 4 rooms
- 2 bedrooms
- 2 shower rooms
- Floor 5/5
- Fireplace
- Orientation South West
- To refresh
What seduced us
- Last floor
- Guardian
- Luminous
- Calm
- Crossing
- Cellar
We say more
Regulations & financial information
Information on the risks to which this property is exposed is available on the Géorisques website. : www.georisques.gouv.fr
| Diagnostics |
|---|
Final energy consumption : F - 349 kWh/m²/an.
Logement à consommation énergétique excessive : classe F
Estimated annual energy costs for standard use: between 2 644,00 € and 3 578,00 € /year (including subscription).
Average energy price indexed to 01/01/2021.
| Financial elements |
|---|
Interior & exterior details
| Room | Surface | Detail |
|---|---|---|
| 1x Cellar | Floor : Basement | |
| 1x Stay | 333.57 Sq Ft | Floor : 5th |
| 1x Kitchen | 167.27 Sq Ft | Floor : 5th |
| 1x Clearance | 20.13 Sq Ft | Floor : 5th |
| 1x Bedroom | 137.46 Sq Ft | Floor : 5th |
| 1x Bedroom | 90.74 Sq Ft | Floor : 5th |
| 1x Shower room/toilet | 49.62 Sq Ft | Floor : 5th |
| 1x Shower room/toilet | 35.52 Sq Ft | Floor : 5th |
| 1x Dressing room | 28.74 Sq Ft | Floor : 5th |
Services
Building & Co-ownership
| Building |
|---|
-
Built in : 1880
-
Number of floors : 5
| Co-ownership |
|---|
37 housing lots
Average annual amount of the share of current charges : 2 108 €
Procedure in progress : Non
Meet your agency
Simulator financing
Calculate the amount of the monthly payments on your home loan corresponding to the loan you wish to make.
FAI property price
899 000 €
€
per month
Do you have to sell to buy?
Our real estate consultants are at your disposal to estimate the value of your property. All our estimates are free of charge.
Estimate my propertyA living space to suit you
Junot takes you on a tour of the neighborhoods in which our agencies welcome you, and presents the specific features and good addresses.
Explore the neighborhoods












