Let's take an overview
Ad reference : 1189POIFAS
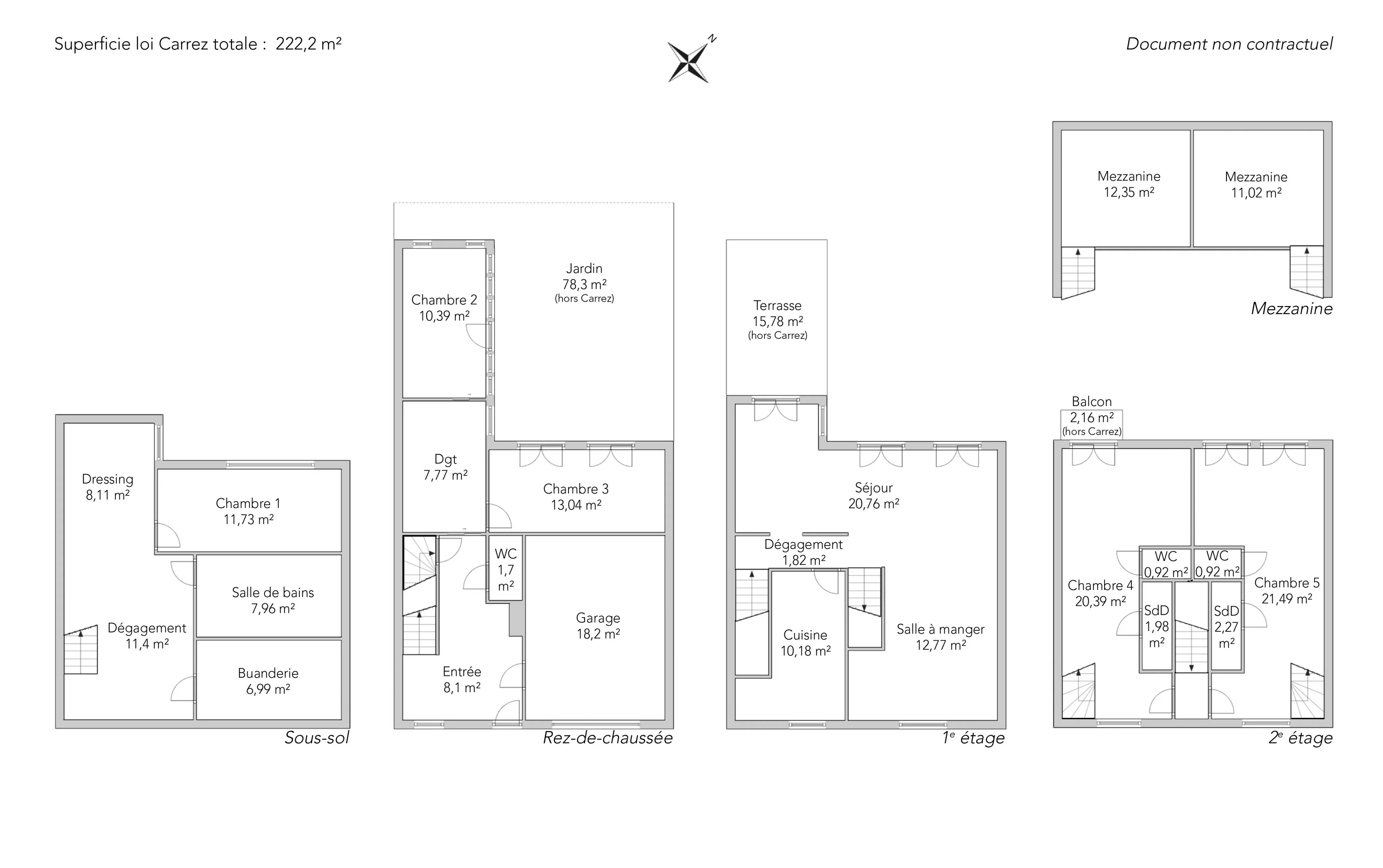
Located in the heart of a lively and shopping district of Vanves, this charming town house of approximately 204.88 sqm with a 78 sqm garden, perfectly maintained, unfolds over four levels and offers an ideal layout for a family.
On the ground floor, you will find a garage, toilets, and two bedrooms overlooking a pleasant garden.
The first floor features a beautiful crossing living space, flooded with natural light, including a living room with a functional fireplace, a dining room, and an independent kitchen. The whole opens onto a sunny terrace of 15.78 sqm.
On the second floor, two bright bedrooms each have their mezzanine, bathroom, and private toilets.
Finally, in the converted basement, a bathroom, a laundry room, a dressing room, toilets, and an additional bedroom complete this property.
This house, with no work required, is attractive for its charm, brightness (east/west exposure), and outdoor spaces.
Popular neighborhood for its school zoning and proximity to shops.
- Habitable : 2 205,31 Sq Ft
- 6 rooms
- 5 bedrooms
- 1 bathroom
- 2 shower rooms
- Fireplace
- Orientation East , West, North West
- Good condition
What seduced us
- Balcony/Terrace
- Garden
- Garage
- Crossing
We say more
Regulations & financial information
Information on the risks to which this property is exposed is available on the Géorisques website. : www.georisques.gouv.fr
| Diagnostics |
|---|
Final energy consumption : a - 137 kWh/m²/an.
Estimated annual energy costs for standard use: between 2 870,00 € and 3 900,00 € /year (including subscription).
Average energy price indexed to 01/01/2021.
| Financial elements |
|---|
Property tax : 2 776,00 € /an
Interior & exterior details
| Room | Surface | Detail |
|---|---|---|
| 1x Clearance | 122.71 Sq Ft | Floor : -1 |
| 1x Dressing room | 87.3 Sq Ft |
Floor : -1 Ceiling : 2.5m |
| 1x Laundry room | 75.24 Sq Ft | Floor : -1 |
| 1x Bedroom | 126.26 Sq Ft | Floor : -1 |
| 1x Bathroom/toilet | 85.68 Sq Ft | Floor : -1 |
| 1x Bathroom | 18.3 Sq Ft | Floor : Ground floor |
| 1x Entrance | 87.19 Sq Ft | Floor : Ground floor |
| 1x Clearance | 83.64 Sq Ft | Floor : Ground floor |
| 1x Garden | 842.81 Sq Ft | Floor : Ground floor |
| 1x Garage | 195.9 Sq Ft | Floor : Ground floor |
| 1x Bedroom | 111.84 Sq Ft | Floor : Ground floor |
| 1x Bedroom | 140.36 Sq Ft | Floor : Ground floor |
| 1x Stay | 223.46 Sq Ft | Floor : 1st |
| 1x Clearance | 19.59 Sq Ft | Floor : 1st |
| 1x Dining room | 137.46 Sq Ft | Floor : 1st |
| 1x Kitchen | 109.58 Sq Ft | Floor : 1st |
| 1x Terrace | 169.85 Sq Ft | Floor : 1st |
| 1x Bathroom | 24.43 Sq Ft | Floor : 2nd |
| 1x Bathroom | 9.9 Sq Ft | Floor : 2nd |
| 1x Landing | 9.47 Sq Ft | Floor : 2nd |
| 1x Bedroom | 219.48 Sq Ft | Floor : 2nd |
| 1x Mezzanine | 132.93 Sq Ft | Floor : 2nd |
| 1x Bathroom | 21.31 Sq Ft | Floor : 2nd |
| 1x Bathroom | 9.26 Sq Ft | Floor : 2nd |
| 1x Bedroom | 231.32 Sq Ft | Floor : 2nd |
| 1x Mezzanine | 118.62 Sq Ft | Floor : 2nd |
| 1x Balcony | 23.25 Sq Ft | Floor : 2nd |
Services
Building
| Building |
|---|
-
Built in : 1920
-
Type : Concrete
-
Number of floors : 2
-
Quality level : Normal
Meet your agency
Simulator financing
Calculate the amount of the monthly payments on your home loan corresponding to the loan you wish to make.
FAI property price
1 375 000 €
€
per month
Do you have to sell to buy?
Our real estate consultants are at your disposal to estimate the value of your property. All our estimates are free of charge.
Estimate my propertyA living space to suit you
Junot takes you on a tour of the neighborhoods in which our agencies welcome you, and presents the specific features and good addresses.
Explore the neighborhoods














