Let's take an overview
Ad reference : 1132POIGON
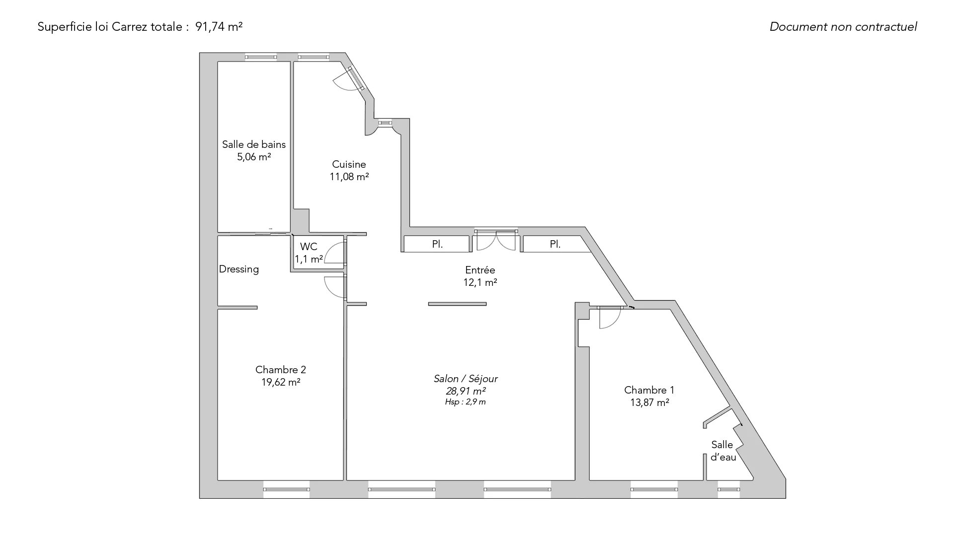
On the third floor by elevator of a beautiful 1930s stone and brick building, 91.74sqm loi Carrez apartment in very good condition, completely renovated by architect.
Bathed in light and sunshine, it comprises an entrance hall with plenty of storage space, a vast double living room offering generous volumes and an unobstructed south-western view, a master bedroom suite with dressing room and bathroom and a second bedroom with its own shower room. Separate toilet.
Preserved old-world charm with original parquet flooring, moldings and high ceilings (2.90m). A cellar completes this property.
Secure parking available at the foot of the building.
- Habitable : 987,48 Sq Ft
- 4 rooms
- 2 bedrooms
- 1 bathroom
- 1 shower room
- Floor 3/7
- Orientation South West
- Excellent condition
What seduced us
- Guardian
- Luminous
- Calm
- Crossing
- Elevator
- Cellar
- Open view
We say more
Regulations & financial information
Information on the risks to which this property is exposed is available on the Géorisques website. : www.georisques.gouv.fr
| Diagnostics |
|---|
Final energy consumption : E - 263 kWh/m²/an.
Estimated annual energy costs for standard use: between 1 970,00 € and 2 680,00 € /year (including subscription).
Average energy price indexed to 01/01/2021.
| Financial elements |
|---|
Interior & exterior details
| Room | Surface | Detail |
|---|---|---|
| 1x Cellar | 43.06 Sq Ft |
Floor : Basement Coating : Clay |
| 1x Entrance | 130.24 Sq Ft |
Floor : 3rd Coating : Parquet |
| 1x Kitchen | 119.26 Sq Ft |
Floor : 3rd Coating : Floor tile |
| 1x Bedroom | 211.19 Sq Ft |
Floor : 3rd Coating : Parquet |
| 1x Bathroom | 54.47 Sq Ft |
Floor : 3rd Coating : Floor tile |
| 1x Bedroom | 149.3 Sq Ft |
Floor : 3rd Coating : Parquet |
| 1x Bathroom |
Floor : 3rd Coating : Parquet |
|
| 1x Bathroom | 11.84 Sq Ft |
Floor : 3rd Coating : Floor tile |
| 1x Stay | 311.18 Sq Ft |
Floor : 3rd Exposure : South West Coating : Parquet Ceiling : 2.9m |
Services
Building & Co-ownership
| Building |
|---|
-
Built in : 1931
-
Type : cut stone
-
Number of floors : 7
| Co-ownership |
|---|
50 housing lots
Average annual amount of the share of current charges : 5 732 €
Procedure in progress : Non
Meet your agency
Simulator financing
Calculate the amount of the monthly payments on your home loan corresponding to the loan you wish to make.
FAI property price
895 000 €
€
per month
Do you have to sell to buy?
Our real estate consultants are at your disposal to estimate the value of your property. All our estimates are free of charge.
Estimate my propertyA living space to suit you
Junot takes you on a tour of the neighborhoods in which our agencies welcome you, and presents the specific features and good addresses.
Explore the neighborhoods











