Let's take an overview
Ad reference : 3326BTLLEF1CH
Nestled on the 8th and top floor of a beautiful 1963 building with an elevator, this 55.14sqm penthouse offers a rare and privileged living environment, secluded from view and in the very heart of the 7th arrondissement.
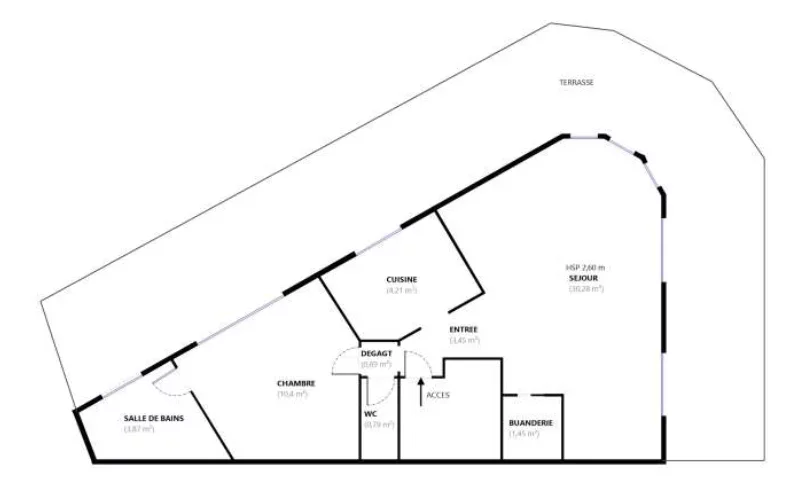
The apartment comprises an entrance hall, a bright 30sqm corner living room opening onto a 66sqm walk-out terrace, a separate kitchen, a bedroom with its own bathroom, a laundry room, and separate toilets. A second bedroom with a shower room can be created as needed.
The outdoor space, a true suspended haven, wraps around the entire apartment and enjoys optimal sunlight, open views of Paris’s iconic monuments — including Montmartre and the dome of Les Invalides — and remarkable privacy.
A cellar completes this property. Bicycle storage is available in the building.
An exceptional property combining absolute tranquility, natural light, and spectacular views, in immediate proximity to shops, public transport, and renowned schools.
- Habitable : 593,52 Sq Ft Total : 753,47 Sq Ft
- 2 rooms
- 1 bedroom
- 1 bathroom
- Floor 8/8
- Orientation East , North, South, South East
- To refresh
What seduced us
- Exceptional view
- Balcony/Terrace
- Highly sought-after address
- Exceptional services
- Last floor
- Luminous
- Calm
- Elevator
- Cellar
- Open view
We say more
Regulations & financial information
Information on the risks to which this property is exposed is available on the Géorisques website. : www.georisques.gouv.fr
| Diagnostics |
|---|
Final energy consumption : a - 494 kWh/m²/an.
Logement à consommation énergétique excessive : classe G
Estimated annual energy costs for standard use: between 2 200,00 € and 3 020,00 € /year (including subscription).
Average energy price indexed to 01/01/2021.
| Financial elements |
|---|
Property tax : 1 518,00 € /an
Interior & exterior details
| Room | Surface | Detail |
|---|---|---|
| 1x Terrace | 710.42 Sq Ft | |
| 1x Cellar | Floor : Basement | |
| 1x Entrance | 37.14 Sq Ft | Floor : 8th |
| 1x Stay | 325.93 Sq Ft | Floor : 8th |
| 1x Kitchen | 45.32 Sq Ft | Floor : 8th |
| 1x Bedroom | 111.94 Sq Ft | Floor : 8th |
| 1x Bathroom | 41.66 Sq Ft | Floor : 8th |
| 1x Laundry room | 15.61 Sq Ft | Floor : 8th |
| 1x Bathroom | 8.5 Sq Ft | Floor : 8th |
| 1x Clearance | 7.43 Sq Ft | Floor : 8th |
Services
Building & Co-ownership
| Building |
|---|
-
Built in : 1963
-
Number of floors : 8
| Co-ownership |
|---|
30 housing lots
Average annual amount of the share of current charges : 5 380 €
Procedure in progress : Non
Meet your agency
Simulator financing
Calculate the amount of the monthly payments on your home loan corresponding to the loan you wish to make.
FAI property price
1 570 000 €
€
per month
Do you have to sell to buy?
Our real estate consultants are at your disposal to estimate the value of your property. All our estimates are free of charge.
Estimate my propertyA living space to suit you
Junot takes you on a tour of the neighborhoods in which our agencies welcome you, and presents the specific features and good addresses.
Explore the neighborhoods









