Let's take an overview
Ad reference : 3354GREGRA
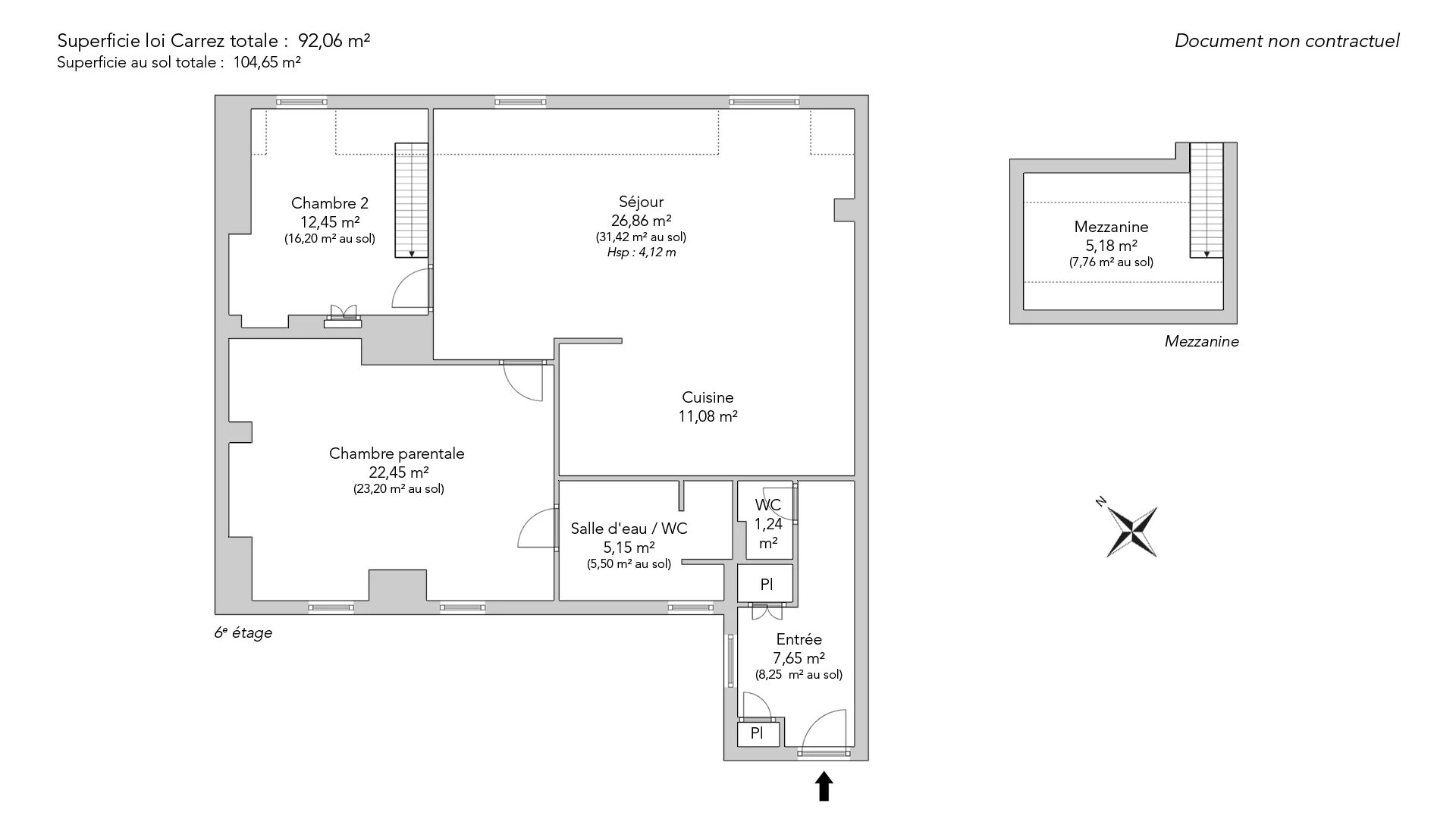
Just a stone's throw from the Luxembourg Gardens and the Panthéon, in a quiet street, a magnificent 92.06sqm air-conditioned, architect-renovated, walk-through apartment (loi Carrez) on the sixth and top floor with elevator.
It comprises an entrance hall, laundry area and guest toilet, a splendid double living room with open, fully-equipped kitchen and unobstructed view of the sky, the rooftops of Paris and the Pantheon, a suite with bathroom featuring bath, shower and toilet, and a children's bedroom with mezzanine.
A cellar completes this offer.
This rare property will seduce you with its highly sought-after location, its top-floor elevator position, its view over Paris, its compact floor plan, its meticulous renovation and its generous ceiling height of 4.10m to the living room ridge.
A janitor and a bicycle room in the condominium.
EXCLUSIVE.
- Habitable : 990,92 Sq Ft Total : 1 126,12 Sq Ft
- 4 rooms
- 2 bedrooms
- 1 bathroom
- Orientation North, South, Northeast, South West
- Excellent condition
What seduced us
- Exceptional view
- Highly sought-after address
- Last floor
- Guardian
- Luminous
- Calm
- Crossing
- Elevator
- Cellar
- Open view
We say more
Regulations & financial information
Information on the risks to which this property is exposed is available on the Géorisques website. : www.georisques.gouv.fr
| Diagnostics |
|---|
Final energy consumption : B - 87 kWh/m²/an.
Estimated annual energy costs for standard use: between 758,00 € and 1 026,00 € /year (including subscription).
Average energy price indexed to 01/01/2023.
| Financial elements |
|---|
Property tax : 2 347,00 € /an
Interior & exterior details
| Room | Surface | Detail |
|---|---|---|
| 1x Cellar | 91.49 Sq Ft |
Floor : Basement Coating : Clay |
| 1x Entrance | 82.34 Sq Ft |
Floor : 6th Exposure : West Coating : Parquet |
| 1x Stay | 289.12 Sq Ft |
Floor : 6th Exposure : South Coating : Parquet Ceiling : 4.12m |
| 1x Bedroom | 241.65 Sq Ft |
Floor : 6th Exposure : North Coating : Concrete |
| 1x Bathroom/toilet | 55.43 Sq Ft |
Floor : 6th Exposure : North Coating : Concrete |
| 1x Children's room | 134.01 Sq Ft |
Floor : 6th Exposure : South Coating : Parquet |
| 1x Bathroom | 13.35 Sq Ft |
Floor : 6th Exposure : West Coating : Floor tile |
| 1x American cuisine | 119.26 Sq Ft |
Floor : 6th Coating : Parquet |
| 1x Mezzanine | 55.76 Sq Ft |
Floor : 6th Exposure : South Coating : Parquet |
Services
Building & Co-ownership
| Building |
|---|
-
Built in : 1906
-
Type : cut stone
-
Number of floors : 6
-
Quality level : Standing
| Co-ownership |
|---|
13 housing lots
Average annual amount of the share of current charges : 6 696 €
Procedure in progress : Non
Meet your agency
Simulator financing
Calculate the amount of the monthly payments on your home loan corresponding to the loan you wish to make.
FAI property price
1 870 000 €
€
per month
Do you have to sell to buy?
Our real estate consultants are at your disposal to estimate the value of your property. All our estimates are free of charge.
Estimate my propertyA living space to suit you
Junot takes you on a tour of the neighborhoods in which our agencies welcome you, and presents the specific features and good addresses.
Explore the neighborhoods











