Let's take an overview
Ad reference : 3348GRECOL
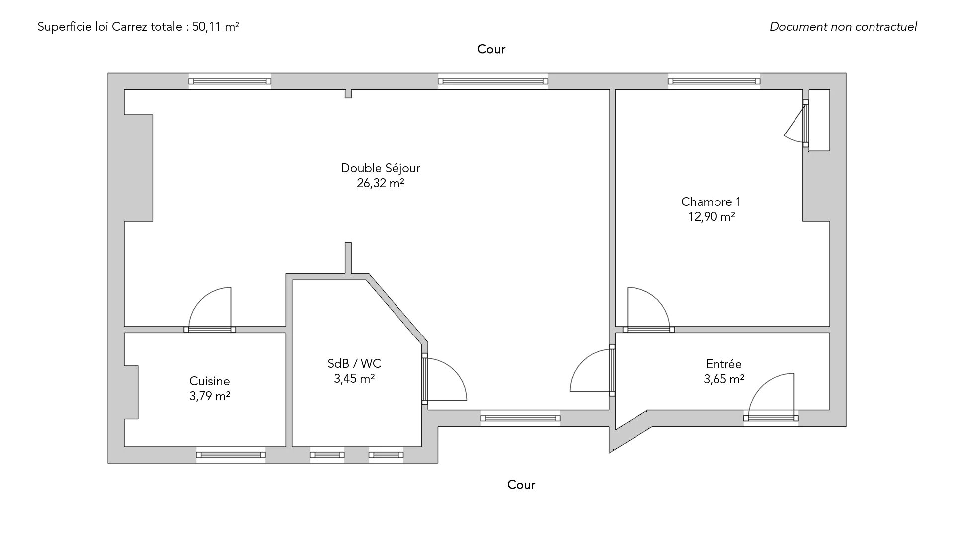
Ideally located in the La Motte-Picquet district, just a stone's throw from Rue du Commerce, a 50.11sqm loi Carrez two-room apartment on the third floor by staircase of a well-kept building built in 1907.
The apartment is in excellent condition, with high ceilings, moldings, parquet flooring and a decorative fireplace. It is bright, sunny, quietly situated on the courtyard and offered furnished.
The optimized layout includes an entrance hall, a vast 26sqm double living room with south-north exposure, a kitchen adjoining the dining room, a bedroom and a shower room with toilet.
A large cellar completes this offer.
EXCLUSIVE.
- Habitable : 539,38 Sq Ft
- 2 rooms
- 1 bedroom
- 1 bathroom
- Floor 3/4
- Fireplace
- Orientation North, South
- Excellent condition
- Furnished
What seduced us
- Luminous
- Calm
- Crossing
- Cellar
We say more
Regulations & financial information
Information on the risks to which this property is exposed is available on the Géorisques website. : www.georisques.gouv.fr
| Diagnostics |
|---|
Final energy consumption : E - 301 kWh/m²/an.
Estimated annual energy costs for standard use: between 1 410,00 € and 2 960,00 € /year (including subscription).
Average energy price indexed to 01/01/2023.
| Financial elements |
|---|
Property tax : 1 004,00 € /an
Interior & exterior details
| Room | Surface | Detail |
|---|---|---|
| 1x Cellar | Floor : Basement | |
| 1x Entrance | 39.29 Sq Ft | Floor : 3rd |
| 1x Double reception | 283.31 Sq Ft | Floor : 3rd |
| 1x Kitchen | 40.8 Sq Ft | Floor : 3rd |
| 1x Bedroom | 138.85 Sq Ft | Floor : 3rd |
| 1x Bathroom/toilet | 37.14 Sq Ft | Floor : 3rd |
Services
Building & Co-ownership
| Building |
|---|
-
Built in : 1907
-
Number of floors : 4
| Co-ownership |
|---|
34 housing lots
Average annual amount of the share of current charges : 1 692 €
Procedure in progress : Non
Meet your agency
Simulator financing
Calculate the amount of the monthly payments on your home loan corresponding to the loan you wish to make.
FAI property price
550 000 €
€
per month
Do you have to sell to buy?
Our real estate consultants are at your disposal to estimate the value of your property. All our estimates are free of charge.
Estimate my propertyA living space to suit you
Junot takes you on a tour of the neighborhoods in which our agencies welcome you, and presents the specific features and good addresses.
Explore the neighborhoods











