Let's take an overview
Ad reference : 1891CHMSAR
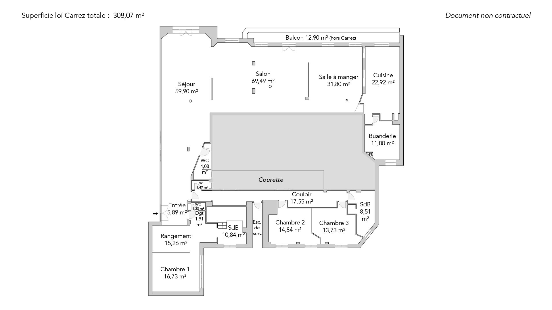
In an emblematic building on rue Vavin, in the heart of a lively, sought-after neighborhood and within easy reach of shops, cafés and the most prestigious schools, this exceptional 308.07sqm loi Carrez apartment is located on the second floor with elevator.
From the entrance, a spacious gallery leads to a triple living room bathed in light thanks to its southeast exposure, with remarkable volumes and extended by a 13sqm balcony. The elegant, convivial atmosphere is ideal for entertaining. The large, independent and perfectly laid-out eat-in kitchen completes the reception area.
To the rear, overlooking the courtyard, calm reigns in the night area, featuring a master suite with dressing room and bathroom, two additional bedrooms and a shower room.
A fourth bedroom could easily be created.
This apartment is in good condition, with generous volumes and luminous spaces.
A double cellar completes this rare offer on the market.
- Habitable : 3 316,03 Sq Ft Total : 3 454,89 Sq Ft
- 5 rooms
- 3 bedrooms
- 2 bathrooms
- Floor 2/7
- Orientation South East
- Good condition
What seduced us
- Balcony/Terrace
- Highly sought-after address
- Guardian
- Luminous
- Elevator
- Open view
We say more
Regulations & financial information
Information on the risks to which this property is exposed is available on the Géorisques website. : www.georisques.gouv.fr
| Diagnostics |
|---|
Final energy consumption : E - 258 kWh/m²/an.
Estimated annual energy costs for standard use: between 6 460,00 € and 8 800,00 € /year (including subscription).
Average energy price indexed to 01/01/2021.
| Financial elements |
|---|
Property tax : 5 449,00 € /an
Interior & exterior details
| Room | Surface | Detail |
|---|---|---|
| 1x Entrance | 63.4 Sq Ft | Floor : 2nd |
| 1x Living room | 747.98 Sq Ft |
Floor : 2nd Exposure : South East |
| 1x Stay | 644.76 Sq Ft |
Floor : 2nd Exposure : South East |
| 1x Terrace | 138.85 Sq Ft |
Floor : 2nd Exposure : South East |
| 1x Dining room | 342.29 Sq Ft |
Floor : 2nd Exposure : South East |
| 1x Kitchen | 246.71 Sq Ft | Floor : 2nd |
| 1x Laundry room | 127.01 Sq Ft | Floor : 2nd |
| 1x Bathroom | 43.92 Sq Ft | Floor : 2nd |
| 1x Bathroom | 16.04 Sq Ft | Floor : 2nd |
| 1x Clearance | 20.56 Sq Ft | Floor : 2nd |
| 1x Closet | 164.26 Sq Ft | Floor : 2nd |
| 1x Bedroom | 180.08 Sq Ft | Floor : 2nd |
| 1x Bathroom | 116.68 Sq Ft | Floor : 2nd |
| 1x Bathroom | 14.32 Sq Ft | Floor : 2nd |
| 1x Corridor | 188.91 Sq Ft | Floor : 2nd |
| 1x Bedroom | 159.74 Sq Ft | Floor : 2nd |
| 1x Bedroom | 147.79 Sq Ft | Floor : 2nd |
| 1x Bathroom | 91.6 Sq Ft | Floor : 2nd |
Services
Building & Co-ownership
| Building |
|---|
-
Built in : 1914
-
Number of floors : 7
-
Quality level : Standing
| Co-ownership |
|---|
104 housing lots
Average annual amount of the share of current charges : 9 300 €
Procedure in progress : Non
Meet your agency
Simulator financing
Calculate the amount of the monthly payments on your home loan corresponding to the loan you wish to make.
FAI property price
4 690 000 €
€
per month
Do you have to sell to buy?
Our real estate consultants are at your disposal to estimate the value of your property. All our estimates are free of charge.
Estimate my propertyA living space to suit you
Junot takes you on a tour of the neighborhoods in which our agencies welcome you, and presents the specific features and good addresses.
Explore the neighborhoods










