Let's take an overview
Ad reference : 3439STGRAT
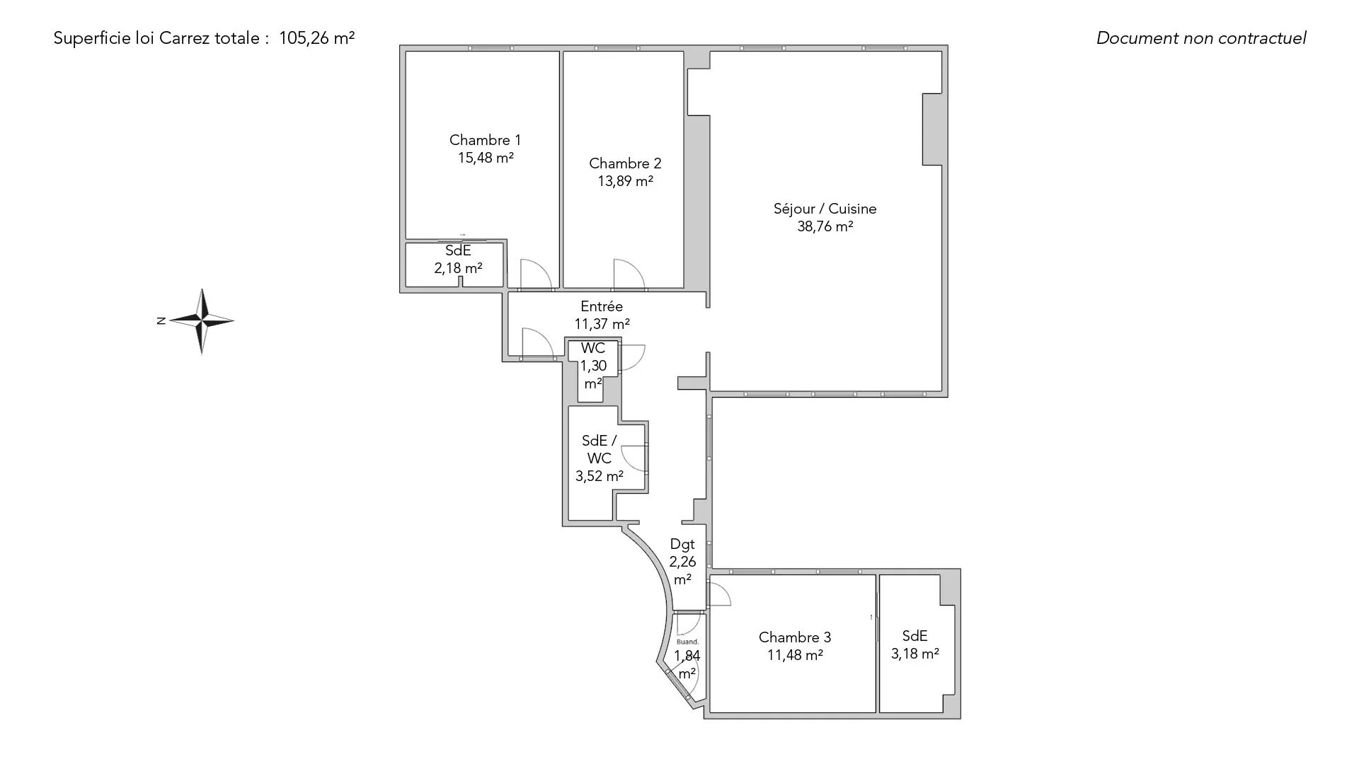
Located on the second floor by elevator of a beautiful old building with janitor, magnificent family apartment of 105,26sqm loi Carrez entirely renovated by architect.
It comprises an entrance hall with storage space, a large through reception room with a fully-furnished and equipped open kitchen, three bedrooms, each with its own shower room, a laundry room and two toilets.
This apartment will seduce you with its quality fittings and spacious rooms. Brand-new, never lived in. A cellar completes this offer.
- Habitable : 1 133,01 Sq Ft Total : 1 167,99 Sq Ft
- 4 rooms
- 3 bedrooms
- 3 shower rooms
- Floor 2/6
- Orientation East
- Nine
What seduced us
- Guardian
- Luminous
- Crossing
- Elevator
- Cellar
We say more
Regulations & financial information
Information on the risks to which this property is exposed is available on the Géorisques website. : www.georisques.gouv.fr
| Diagnostics |
|---|
Final energy consumption : C - 127.4 kWh/m²/an.
Estimated annual energy costs for standard use: between 2 340,00 € and 3 180,00 € /year (including subscription).
Average energy price indexed to 01/01/2021.
| Financial elements |
|---|
Interior & exterior details
| Room | Surface | Detail |
|---|---|---|
| 1x Cellar | ||
| 1x Entrance | 122.39 Sq Ft |
Floor : 2nd Coating : Parquet |
| 1x Living room/kitchen | 417.21 Sq Ft |
Floor : 2nd Exposure : East Coating : Parquet |
| 1x Bedroom | 166.63 Sq Ft |
Floor : 2nd Exposure : East Coating : Parquet |
| 1x Bathroom | 23.47 Sq Ft |
Floor : 2nd Coating : Floor tile |
| 1x Bedroom | 149.51 Sq Ft |
Floor : 2nd Exposure : East Coating : Parquet |
| 1x Shower room/toilet | 37.89 Sq Ft |
Floor : 2nd Coating : Floor tile |
| 1x Bedroom | 123.57 Sq Ft |
Floor : 2nd Exposure : East Coating : Parquet |
| 1x Bathroom | 34.23 Sq Ft |
Floor : 2nd Coating : Floor tile |
| 1x Clearance | 24.33 Sq Ft |
Floor : 2nd Exposure : South Coating : Parquet |
| 1x Bathroom | 13.99 Sq Ft |
Floor : 2nd Coating : Floor tile |
| 1x Laundry room | 19.81 Sq Ft |
Floor : 2nd Coating : Parquet |
Services
Building & Co-ownership
| Building |
|---|
-
Built in : 1800
-
Number of floors : 6
| Co-ownership |
|---|
68 housing lots
Average annual amount of the share of current charges : 1 920 €
Procedure in progress : Non
Meet your agency
Simulator financing
Calculate the amount of the monthly payments on your home loan corresponding to the loan you wish to make.
FAI property price
1 515 000 €
€
per month
Do you have to sell to buy?
Our real estate consultants are at your disposal to estimate the value of your property. All our estimates are free of charge.
Estimate my propertyA living space to suit you
Junot takes you on a tour of the neighborhoods in which our agencies welcome you, and presents the specific features and good addresses.
Explore the neighborhoods











