Let's take an overview
Ad reference : 2890MONREI
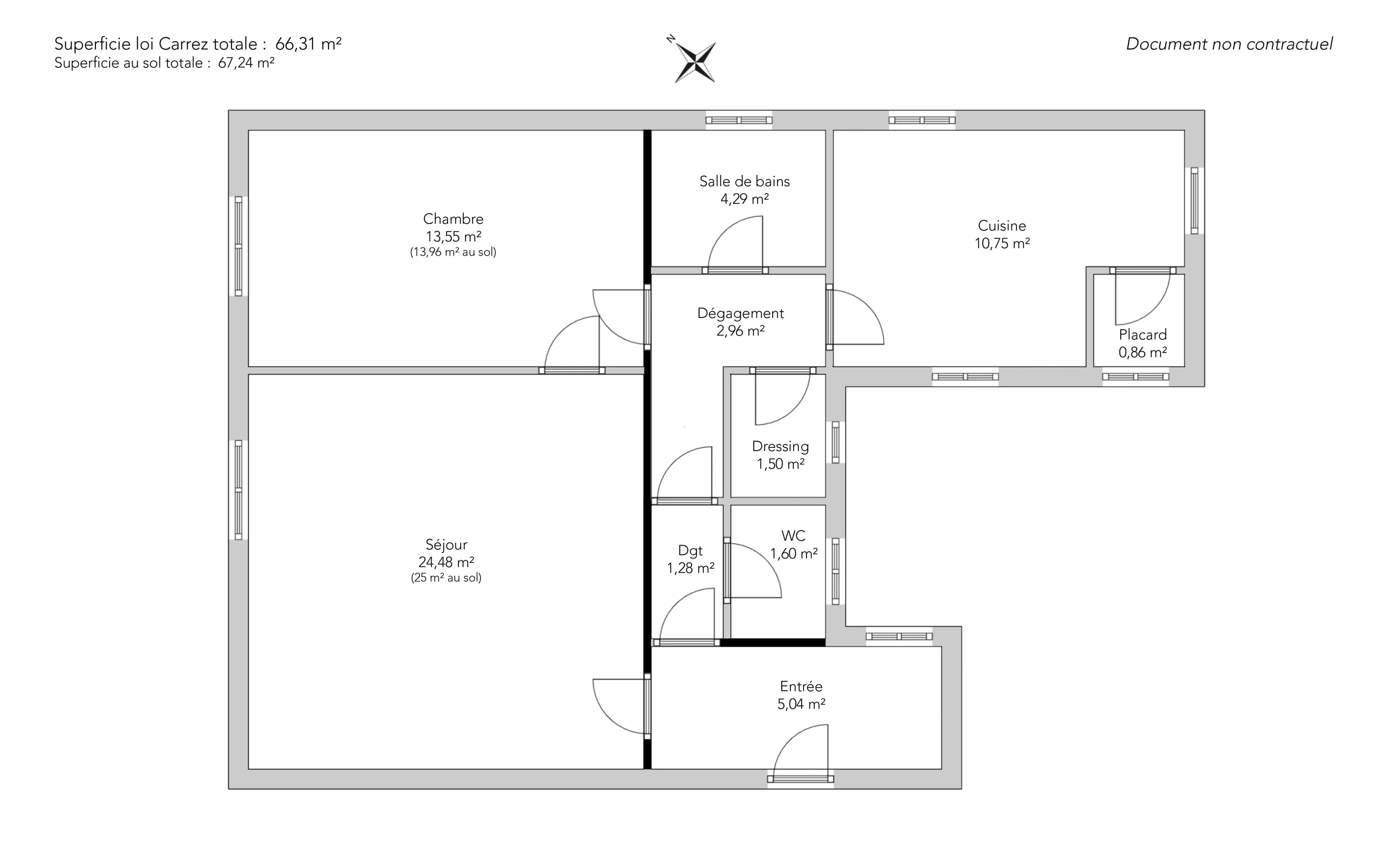
Just a stone's throw from Place du Maréchal Juin, with shops and transport nearby, this 66.31sqm carrez apartment is located on the 1st floor by elevator of an elegant freestone building.
It comprises an entrance hall, a living room with 3.20m high ceilings, a dining kitchen, a bedroom, a bathroom, a dressing room and a separate toilet.
In absolute calm, this property benefits from the charm of the past: parquet flooring, attractive moldings and fireplace.
- Habitable : 713,75 Sq Ft
- 3 rooms
- 1 bedroom
- 1 bathroom
- Floor 1/6
- Fireplace
- Orientation North West
- To renovate
What seduced us
- Calm
- Elevator
- Cellar
We say more
Regulations & financial information
Information on the risks to which this property is exposed is available on the Géorisques website. : www.georisques.gouv.fr
| Diagnostics |
|---|
| Financial elements |
|---|
Interior & exterior details
| Room | Surface | Detail |
|---|---|---|
| 1x Entrance | 54.25 Sq Ft | |
| 1x Clearance | 13.78 Sq Ft | |
| 1x Stay | 263.5 Sq Ft | |
| 1x Bedroom | 145.85 Sq Ft | |
| 1x Bathroom | 46.18 Sq Ft | |
| 1x Bathroom | 17.22 Sq Ft | |
| 1x Kitchen | 115.71 Sq Ft | |
| 1x Dressing room | 16.15 Sq Ft | |
| 1x Clearance | 31.86 Sq Ft | |
| 1x Closet | 9.26 Sq Ft | |
| 1x Cellar |
Services
Building & Co-ownership
| Building |
|---|
-
Built in : 1900
-
Number of floors : 6
-
Quality level : Normal
| Co-ownership |
|---|
44 housing lots
Average annual amount of the share of current charges : 2 400 €
Procedure in progress : Oui
Meet your agency
Simulator financing
Calculate the amount of the monthly payments on your home loan corresponding to the loan you wish to make.
FAI property price
590 000 €
€
per month
Do you have to sell to buy?
Our real estate consultants are at your disposal to estimate the value of your property. All our estimates are free of charge.
Estimate my propertyA living space to suit you
Junot takes you on a tour of the neighborhoods in which our agencies welcome you, and presents the specific features and good addresses.
Explore the neighborhoods













