Let's take an overview
Ad reference : 3448ABBRAF
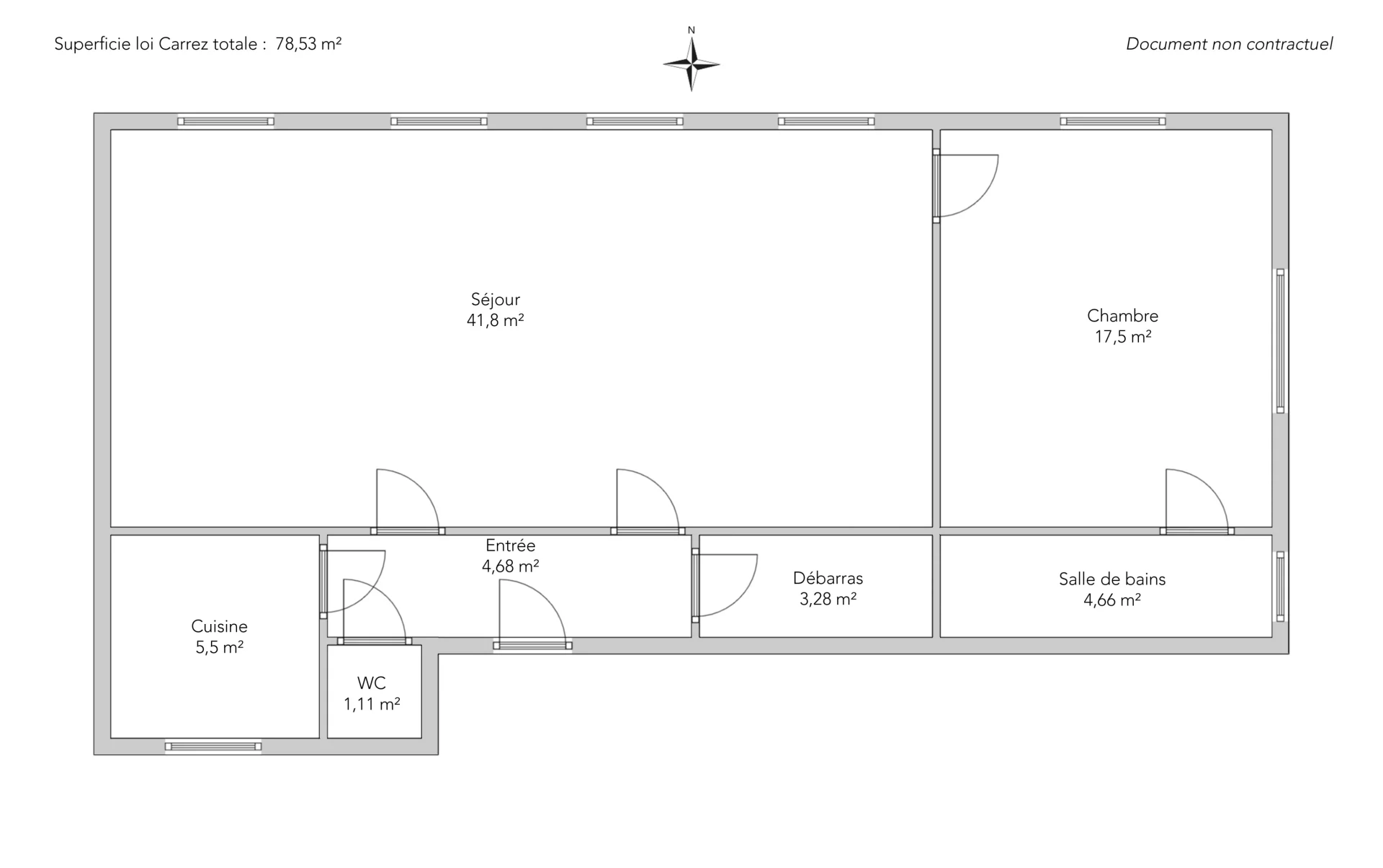
Located on the third floor by elevator of a XIXᵉ century Parisian building, in the heart of the 10ᵉ arrondissement, this 78.53m² loi Carrez apartment, in perfect condition, offers beautiful volumes and pleasant light. Its layout allows for the creation of a second bedroom.
It comprises an entrance hall, a large living room, a spacious bedroom, a separate fitted and equipped kitchen, a bathroom, a separate toilet and an adjoining dressing room.
Original features such as a fireplace, herringbone parquet flooring and moldings preserve the charm of the period. The property offers comfortable, elegant living in a sought-after, central neighborhood.
A cellar completes the offer.
- Habitable : 845,29 Sq Ft
- 3 rooms
- 1 bedroom
- 1 bathroom
- Floor 3/6
- Fireplace
- Orientation North
- Good condition
What seduced us
- Elevator
- Cellar
- Open view
We say more
Regulations & financial information
Information on the risks to which this property is exposed is available on the Géorisques website. : www.georisques.gouv.fr
| Diagnostics |
|---|
Final energy consumption : a - 188 kWh/m²/an.
Estimated annual energy costs for standard use: between 1 410,00 € and 1 960,00 € /year (including subscription).
Average energy price indexed to 01/01/2023.
| Financial elements |
|---|
Property tax : 1 218,00 € /an
Interior & exterior details
| Room | Surface | Detail |
|---|---|---|
| 1x Cellar |
Floor : Basement Coating : Clay |
|
| 1x Entrance | 50.38 Sq Ft | Floor : 3rd |
| 1x Clearance | 35.31 Sq Ft | Floor : 3rd |
| 1x Kitchen | 59.2 Sq Ft |
Floor : 3rd Coating : Parquet |
| 1x Stay | 449.93 Sq Ft |
Floor : 3rd Coating : Parquet |
| 1x Bedroom | 188.37 Sq Ft |
Floor : 3rd Coating : Parquet |
| 1x Bathroom | 50.16 Sq Ft |
Floor : 3rd Coating : Parquet |
| 1x Bathroom | 11.95 Sq Ft |
Floor : 3rd Coating : Parquet |
Services
Building & Co-ownership
| Building |
|---|
-
Built in : 1880
-
Type : Concrete
-
Number of floors : 6
-
Quality level : Normal
| Co-ownership |
|---|
33 housing lots
Average annual amount of the share of current charges : 3 864 €
Procedure in progress : Non
Meet your agency
Simulator financing
Calculate the amount of the monthly payments on your home loan corresponding to the loan you wish to make.
FAI property price
660 000 €
€
per month
Do you have to sell to buy?
Our real estate consultants are at your disposal to estimate the value of your property. All our estimates are free of charge.
Estimate my propertyA living space to suit you
Junot takes you on a tour of the neighborhoods in which our agencies welcome you, and presents the specific features and good addresses.
Explore the neighborhoods











