Let's take an overview
Ad reference : 5780JUNBEA
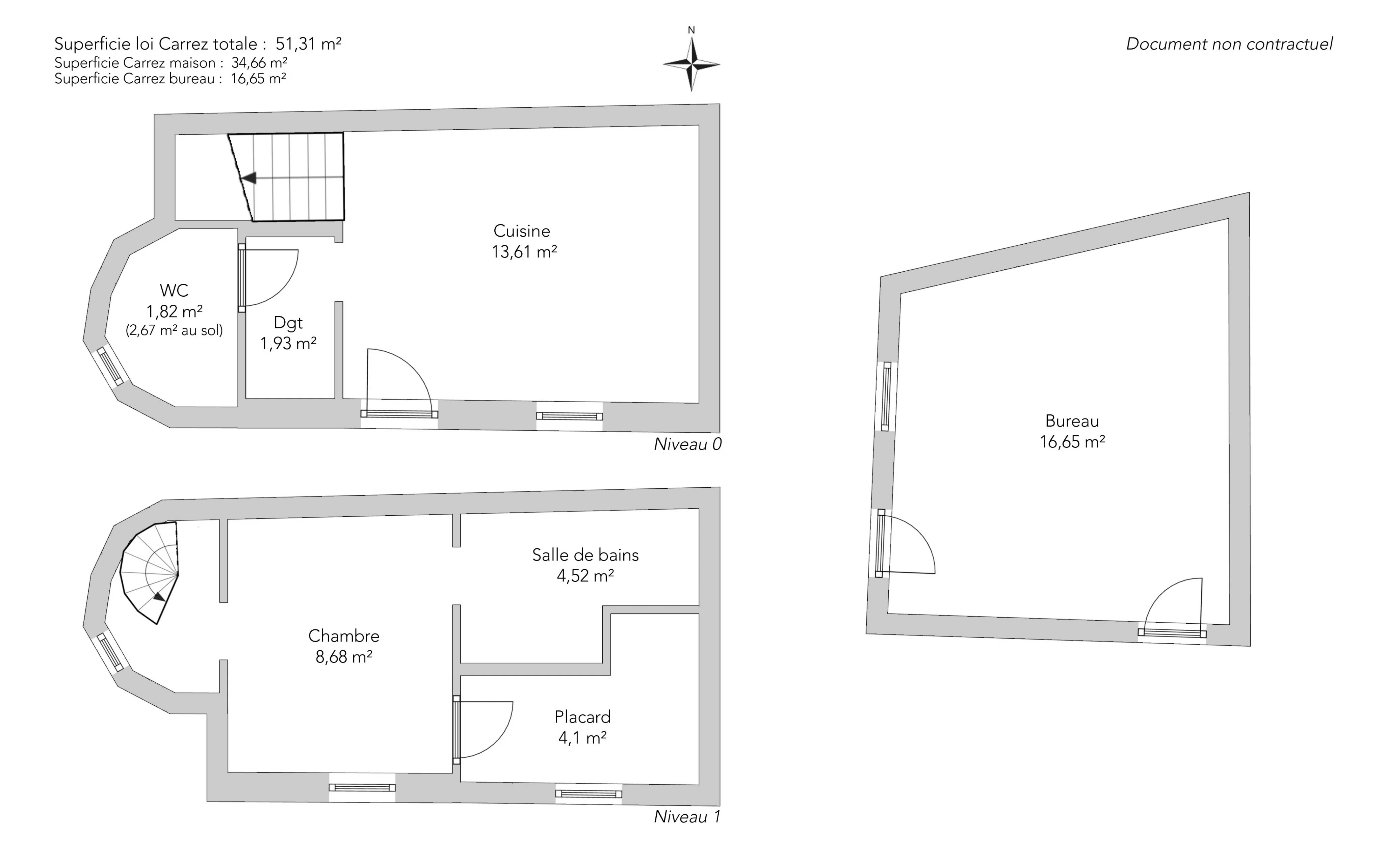
In a quiet courtyard in a beautiful old building, charming 34.66sqm house, complemented by an independent 16.65sqm office with its own entrance.
The property offers great potential for conversion. It comprises a living room with kitchen, bedroom, dressing room and bathroom.
The independent office could be used as a workspace, a studio or an extension to the living space, depending on requirements.
A sought-after address in the immediate vicinity of transport and the sought-after shops of Rue des Abbesses, while benefiting from a particularly peaceful environment.
A cellar completes this property.
- Habitable : 552,30 Sq Ft Total : 561,45 Sq Ft
- 3 rooms
- 1 bedroom
- 1 bathroom
- Orientation South
- To renovate
What seduced us
- Highly sought-after address
- Luminous
- Calm
- Cellar
We say more
Regulations & financial information
Information on the risks to which this property is exposed is available on the Géorisques website. : www.georisques.gouv.fr
| Diagnostics |
|---|
Final energy consumption : G - 537 kWh/m²/an.
Logement à consommation énergétique excessive : classe G
Estimated annual energy costs for standard use: between 3 230,00 € and 4 390,00 € /year (including subscription).
Average energy price indexed to 01/01/2023.
| Financial elements |
|---|
Interior & exterior details
| Room | Surface | Detail |
|---|---|---|
| 1x Cellar | Floor : -1 | |
| 1x Kitchen | 146.5 Sq Ft | Floor : Ground floor |
| 1x Clearance | 20.77 Sq Ft | Floor : Ground floor |
| 1x Bathroom | 19.59 Sq Ft | Floor : Ground floor |
| 1x Desk | 179.22 Sq Ft | Floor : Ground floor |
| 1x Bedroom | 93.43 Sq Ft | Floor : 1st |
| 1x Closet | 44.13 Sq Ft | Floor : 1st |
| 1x Bathroom | 48.65 Sq Ft | Floor : 1st |
Services
Building & Co-ownership
| Building |
|---|
-
Built in : 1900
-
Type : Rock
-
Number of floors : 5
| Co-ownership |
|---|
37 housing lots
Average annual amount of the share of current charges : 1 568 €
Procedure in progress : Non
Meet your agency
Simulator financing
Calculate the amount of the monthly payments on your home loan corresponding to the loan you wish to make.
FAI property price
525 000 €
€
per month
Do you have to sell to buy?
Our real estate consultants are at your disposal to estimate the value of your property. All our estimates are free of charge.
Estimate my propertyA living space to suit you
Junot takes you on a tour of the neighborhoods in which our agencies welcome you, and presents the specific features and good addresses.
Explore the neighborhoods












