Let's take an overview
Ad reference : 1181POIPLA
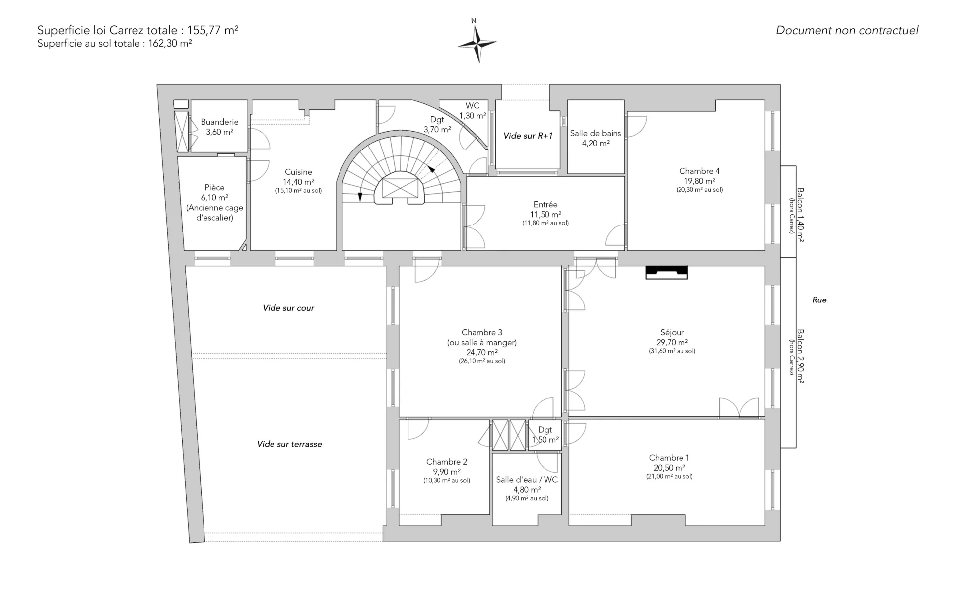
Within a superb recently renovated Haussmannian building, on the fourth floor by elevator, crossing apartment of 155.77sqm Carrez law and 162.30sqm floor area, benefiting from a balcony, a high ceiling of more than 3 meters and the charm of the old.
It currently consists of an entrance, a living room, a dining room, a kitchen, four bedrooms, a bathroom, a shower room, a laundry room, a dressing room, and separate toilets.
Currently configured as four bedrooms, it also offers several possibilities for layout. Its plan allows envisaging a spacious family apartment with three bedrooms and large reception rooms, or conversely a configuration with five bedrooms depending on needs.
Bathed in light, this apartment stands out for its generous volumes, fluid circulation, and the preserved charm of the old with parquet flooring, moldings, and fireplaces. The co-ownership, recently renovated as a whole, requires no work.
A cellar.
- Habitable : 1 675,94 Sq Ft Total : 1 746,98 Sq Ft
- 5 rooms
- 5 bedrooms
- 1 bathroom
- 1 shower room
- Floor 4/7
- Orientation East , West
- Good condition
What seduced us
- Balcony/Terrace
- Luminous
- Crossing
- Elevator
- Cellar
- Open view
We say more
Regulations & financial information
Information on the risks to which this property is exposed is available on the Géorisques website. : www.georisques.gouv.fr
| Diagnostics |
|---|
| Financial elements |
|---|
Interior & exterior details
| Room | Surface | Detail |
|---|---|---|
| 1x Cellar | ||
| 1x Bedroom | ||
| 1x Balcony | 15.07 Sq Ft |
Floor : 4th Exposure : East |
| 1x Entrance | 123.78 Sq Ft | Floor : 4th |
| 1x Balcony | 31.22 Sq Ft | Floor : 4th |
| 1x Stay | 319.69 Sq Ft |
Floor : 4th Exposure : East Ceiling : 2.9m |
| 1x Bedroom | 220.66 Sq Ft | Floor : 4th |
| 1x Bedroom | 106.56 Sq Ft | Floor : 4th |
| 1x Bedroom | 265.87 Sq Ft |
Floor : 4th Exposure : West |
| 1x Clearance | 16.15 Sq Ft | Floor : 4th |
| 1x Bathroom | 51.67 Sq Ft | Floor : 4th |
| 1x Bedroom | 213.13 Sq Ft | Floor : 4th |
| 1x Bathroom | 45.21 Sq Ft | Floor : 4th |
| 1x Bathroom | 13.99 Sq Ft | Floor : 4th |
| 1x Clearance | 39.83 Sq Ft | Floor : 4th |
| 1x Kitchen | 155 Sq Ft | Floor : 4th |
| 1x Laundry room | 38.75 Sq Ft | Floor : 4th |
| 1x Desk | 65.66 Sq Ft | Floor : 4th |
Services
Building & Co-ownership
| Building |
|---|
-
Built in : 1890
-
Number of floors : 7
-
Quality level : Normal
| Co-ownership |
|---|
11 housing lots
Procedure in progress : Non
Meet your agency
Simulator financing
Calculate the amount of the monthly payments on your home loan corresponding to the loan you wish to make.
FAI property price
1 990 000 €
€
per month
Do you have to sell to buy?
Our real estate consultants are at your disposal to estimate the value of your property. All our estimates are free of charge.
Estimate my propertyA living space to suit you
Junot takes you on a tour of the neighborhoods in which our agencies welcome you, and presents the specific features and good addresses.
Explore the neighborhoods








