Let's take an overview
Ad reference : 259COMGOZ
In the heart of the Ternes district, on the fourth floor by elevator of a completely renovated building with absolutely refined common areas.
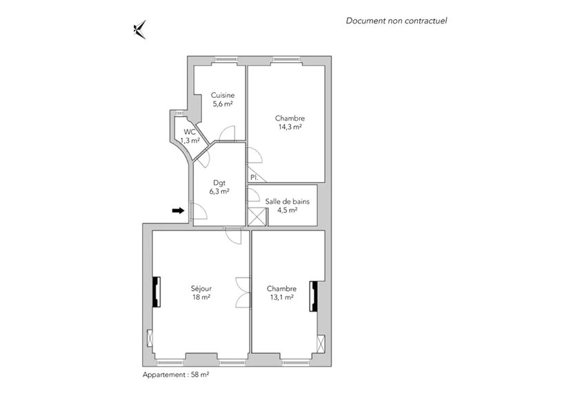
This 58.65 sqm Carrez law apartment is an invitation to well-being: controlled brightness, careful layout, and high-end services for an exceptional main residence in the 17th arrondissement.
The entrance leads to a bright living room, a separate kitchen, and a sleeping area composed of one bedroom.
Close to shops, schools, and transportation in the Ternes district.
- Habitable : 624,31 Sq Ft
- 3 rooms
- suite
- Floor 4/6
What seduced us
- Elevator
- Open view
We say more
Regulations & financial information
Information on the risks to which this property is exposed is available on the Géorisques website. : www.georisques.gouv.fr
| Diagnostics |
|---|
Final energy consumption : a - 176 kWh/m²/an.
Estimated annual energy costs for standard use: between 1 030,00 € and 1 430,00 € /year (including subscription).
Average energy price indexed to 01/01/2023.
| Financial elements |
|---|
Services
Building & Co-ownership
| Building |
|---|
-
Built in : 1880
-
Number of floors : 6
| Co-ownership |
|---|
Procedure in progress : Non
Meet your agency
Simulator financing
Calculate the amount of the monthly payments on your home loan corresponding to the loan you wish to make.
FAI property price
758 000 €
€
per month
Do you have to sell to buy?
Our real estate consultants are at your disposal to estimate the value of your property. All our estimates are free of charge.
Estimate my propertyA living space to suit you
Junot takes you on a tour of the neighborhoods in which our agencies welcome you, and presents the specific features and good addresses.
Explore the neighborhoods









