Faisons un tour d'horizon
Référence de l’annonce : 3383BRECHA
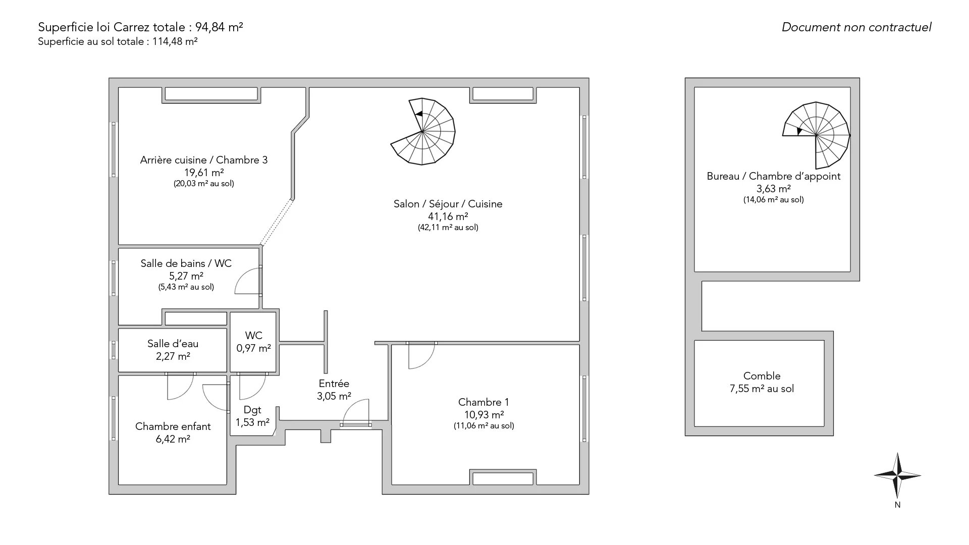
Idéalement situé à proximité immédiate de la place des Vosges, au quatrième et dernier étage d'un immeuble du XVIIème bien tenu, ce bel appartement de quatre pièces offre une vue dégagée sur Paris. Le plan comporte un vaste séjour avec cuisine ouverte, une arrière-cuisine attenante avec buanderie, deux chambres, un bureau/coin télévision en mezzanine, une salle de bains avec toilettes, une salle de douche, ainsi que des toilettes invités.
Au calme absolu, ce bien offre de beaux volumes avec une hauteur sous plafond au faîtage de 3,80m. Le cachet de l'ancien a été conservé avec la charpente apparente, le parquet d'origine ainsi qu'une cheminée en pierre. Il bénéficie en outre d'un bel ensoleillement grâce à son exposition ouest tout en étant équipé de la climatisation.
Une cave complète cette offre.
- Habitable : 104,00 m² Total : 114,48 m²
- 4 pièces
- 2 chambres
- 1 salle de bains
- 1 salle de douche
- Étage 4/4
- Exposition Sud-ouest
- Bon état
Ce qui nous séduit
- Vue exceptionnelle
- Adresse très recherchée
- Dernier étage
- Vue monument historique
- Lumineux
- Calme
- Traversant
- Cave
- Vue dégagée
On vous en dit plus
Réglementations & éléments financiers
Les informations sur les risques auxquels ce bien est exposé sont disponibles sur le site Géorisques : www.georisques.gouv.fr
| Diagnostics |
|---|
Consommation énergie finale : D - 200 kWh/m²/an.
Montant estimé des dépenses annuelles d’énergie pour un usage standard : entre 1 330,00 € et 1 810,00 € /an (abonnement compris).
Prix moyen des énergies indexées au 01/01/2021.
| Éléments financiers |
|---|
Taxe foncière : 1 746,00 € /an
Détails de l’intérieur & de l’extérieur
| Pièce | Surface | Détail |
|---|---|---|
| 1x Cave | Étage : Sous-sol | |
| 1x Entrée | 3.05 m² |
Étage : 4ème Revêtement : Parquet |
| 1x Dégagement | 1.53 m² |
Étage : 4ème Revêtement : Carrelage |
| 1x Chambre | 6.42 m² |
Étage : 4ème Revêtement : Parquet |
| 1x Salle de douche | 2.27 m² |
Étage : 4ème Revêtement : Carrelage |
| 1x Toilettes | 0.97 m² |
Étage : 4ème Revêtement : Carrelage |
| 1x Séjour/cuisine | 41.16 m² |
Étage : 4ème Revêtement : Parquet |
| 1x Chambre | 19.61 m² |
Étage : 4ème Revêtement : Parquet |
| 1x Buanderie | 10.93 m² |
Étage : 4ème Revêtement : Parquet |
| 1x Salle de bains / toilettes | 5.27 m² |
Étage : 4ème Revêtement : Carrelage |
| 1x Mezzanine | 3.63 m² |
Étage : 4ème Revêtement : Parquet |
| 1x Autre | 7.55 m² |
Étage : 4ème Revêtement : Parquet |
Prestations
Bâtiment & Copropriété
| Bâtiment |
|---|
-
Construit en : 1850
-
Nombre d'étages : 4
| Copropriété |
|---|
20 lots d'habitation
Montant moyen annuel de la quote part de charges courantes : 1 776 €
Procédure en cours : Non
Rencontrez votre agence
Simulateur de financement
Calculez le montant des mensualités de votre prêt immobilier correspondant à l'emprunt que vous souhaitez effectuer.
Prix du bien HAI
1 690 000 €
€
par mois
Vous devez vendre pour acheter ?
Nos consultants immobiliers se tiennent à votre disposition pour réaliser une estimation de la valeur de votre bien. Toutes nos estimations sont offertes.
Je fais estimer mon bienUn lieu de vie à votre image
Junot vous fait visiter les quartiers dans lesquels nos agences vous accueillent, et vous présente les spécificités et bonnes adresses.
Parcourir les quartiers








