Faisons un tour d'horizon
Référence de l’annonce : 1865CHMGIR07
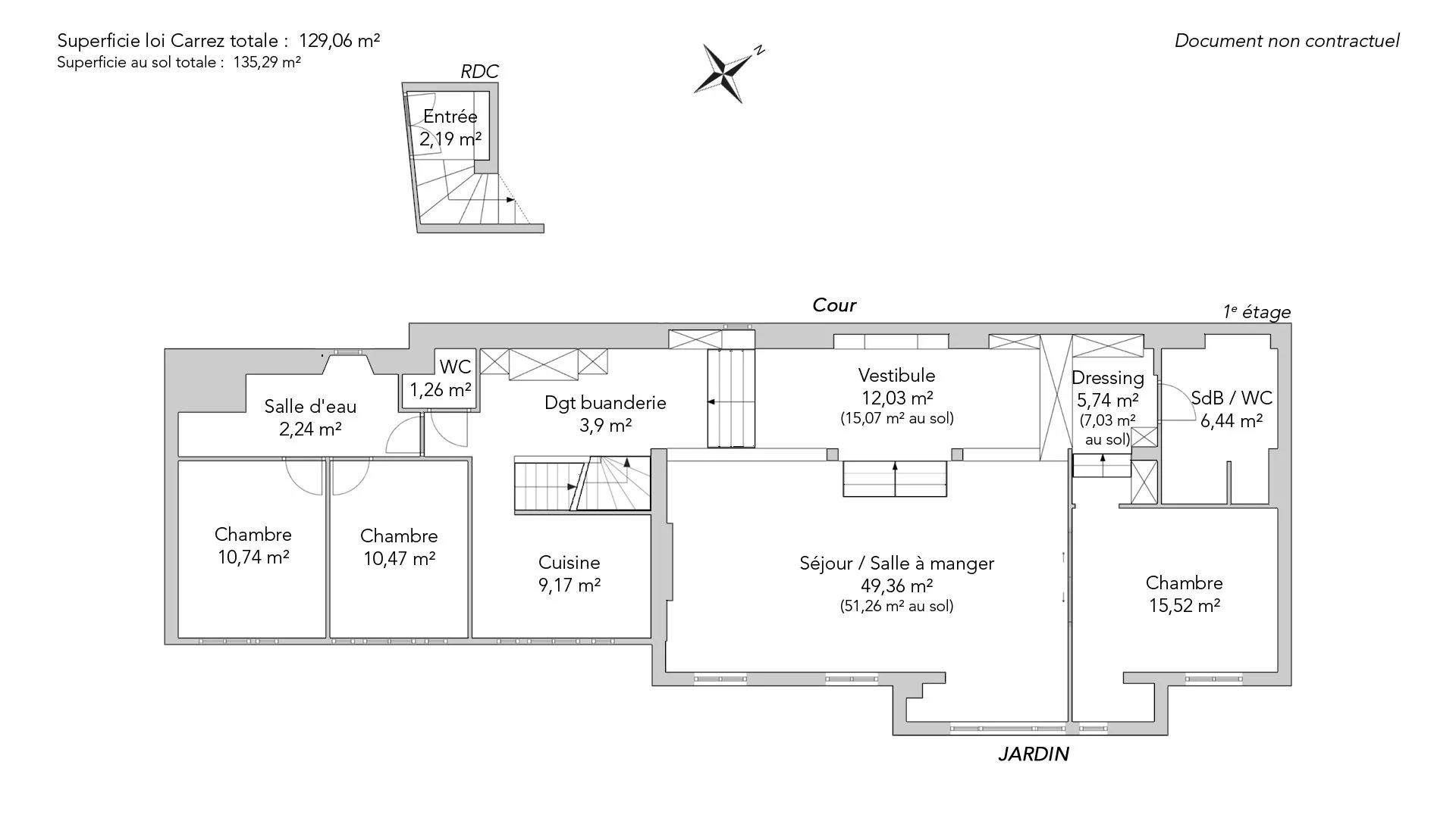
Idéalement situé entre les prestigieux hôtels particuliers de la rue Las Cases et les commerces prisés de la rue de Grenelle, à deux pas de l’église Sainte-Clotilde, cet appartement de 129,06m² Carrez et 135,29m² au sol se niche à l’abri des regards, en retrait d’une élégante cour, au sein d’un splendide immeuble sécurisé avec gardien.
Accessible depuis un hôtel particulier, l’appartement bénéficie d’une entrée indépendante via un escalier privatif.
Il s’ouvre sur un vaste double séjour de 50m² baigné de lumière et doté d’une belle cheminée fonctionnelle, d’un parquet en marqueterie rare, d’une belle hauteur sous plafond de trois mètres et de vues dégagées exceptionnelles sur un jardin remarquable.
L’espace de réception comprend également une salle à manger, idéale pour recevoir.
Une cuisine indépendante, une belle suite parentale avec dressing et salle de bains avec des toilettes, deux chambres avec une salle de douche, une buanderie et des toilettes indépendantes complètent le plan. Cet bien calme bénéficie d'une agréable luminosité et de beaucoup de charme.
Une cave voûtée est incluse dans cette offre rare.
Libération du bien en octobre 2026.
- Habitable : 129,06 m² Total : 135,29 m²
- 5 pièces
- 3 chambres
- 1 salle de bains
- 1 salle de douche
- Étage 1/1
- Cheminée
- Exposition Est, Ouest
- Bon état
Ce qui nous séduit
- Vue exceptionnelle
- Adresse très recherchée
- Dernier étage
- Gardien
- Lumineux
- Calme
- Traversant
- Cave
- Vue dégagée
On vous en dit plus
Réglementations & éléments financiers
Les informations sur les risques auxquels ce bien est exposé sont disponibles sur le site Géorisques : www.georisques.gouv.fr
| Diagnostics |
|---|
Logement à consommation énergétique excessive : classe G
Montant estimé des dépenses annuelles d’énergie pour un usage standard : entre 6 440,00 € et 8 770,00 € /an (abonnement compris).
| Éléments financiers |
|---|
Taxe foncière : 2 844,00 € /an
Détails de l’intérieur & de l’extérieur
| Pièce | Surface | Détail |
|---|---|---|
| 1x Cave | 8.02 m² | Étage : Sous-sol |
| 1x Entrée | 2.19 m² | Étage : Rez-de-chaussée |
| 1x Séjour | 49.36 m² |
Étage : 1er Plafond : 3m |
| 1x Galerie | 12.03 m² | Étage : 1er |
| 1x Cuisine | 9.17 m² | Étage : 1er |
| 1x Chambre de maître | 15.52 m² | Étage : 1er |
| 1x Dressing | 5.74 m² | Étage : 1er |
| 1x Salle de bains / toilettes | 6.44 m² | Étage : 1er |
| 1x Chambre | 10.47 m² | Étage : 1er |
| 1x Chambre | 10.74 m² | Étage : 1er |
| 1x Salle de douche | 2.24 m² | Étage : 1er |
| 1x Toilettes | 1.26 m² | Étage : 1er |
| 1x Buanderie | 3.9 m² | Étage : 1er |
Prestations
Bâtiment & Copropriété
| Bâtiment |
|---|
-
Construit en : 1840
-
Type : Pierre de taille
-
Nombre d'étages : 1
-
Niveau de qualité : Standing
| Copropriété |
|---|
87 lots d'habitation
Montant moyen annuel de la quote part de charges courantes : 7 560 €
Procédure en cours : Non
Rencontrez votre agence
Simulateur de financement
Calculez le montant des mensualités de votre prêt immobilier correspondant à l'emprunt que vous souhaitez effectuer.
Prix du bien HAI
2 500 000 €
€
par mois
Vous devez vendre pour acheter ?
Nos consultants immobiliers se tiennent à votre disposition pour réaliser une estimation de la valeur de votre bien. Toutes nos estimations sont offertes.
Je fais estimer mon bienUn lieu de vie à votre image
Junot vous fait visiter les quartiers dans lesquels nos agences vous accueillent, et vous présente les spécificités et bonnes adresses.
Parcourir les quartiers











