Faisons un tour d'horizon
Référence de l’annonce : 3313BTLGAR
Dans un immeuble de standing, charmant deux pièces de 29,10m² loi Carrez à rénover.
Situé au calme sur une cour arborée, il comporte une cuisine ouverte sur un séjour lumineux, une chambre, une salle de douche et des toilettes indépendantes.
Idéal pour un investisseur, un pied-à-terre ou un primo-accédant.
EXCLUSIVITÉ.
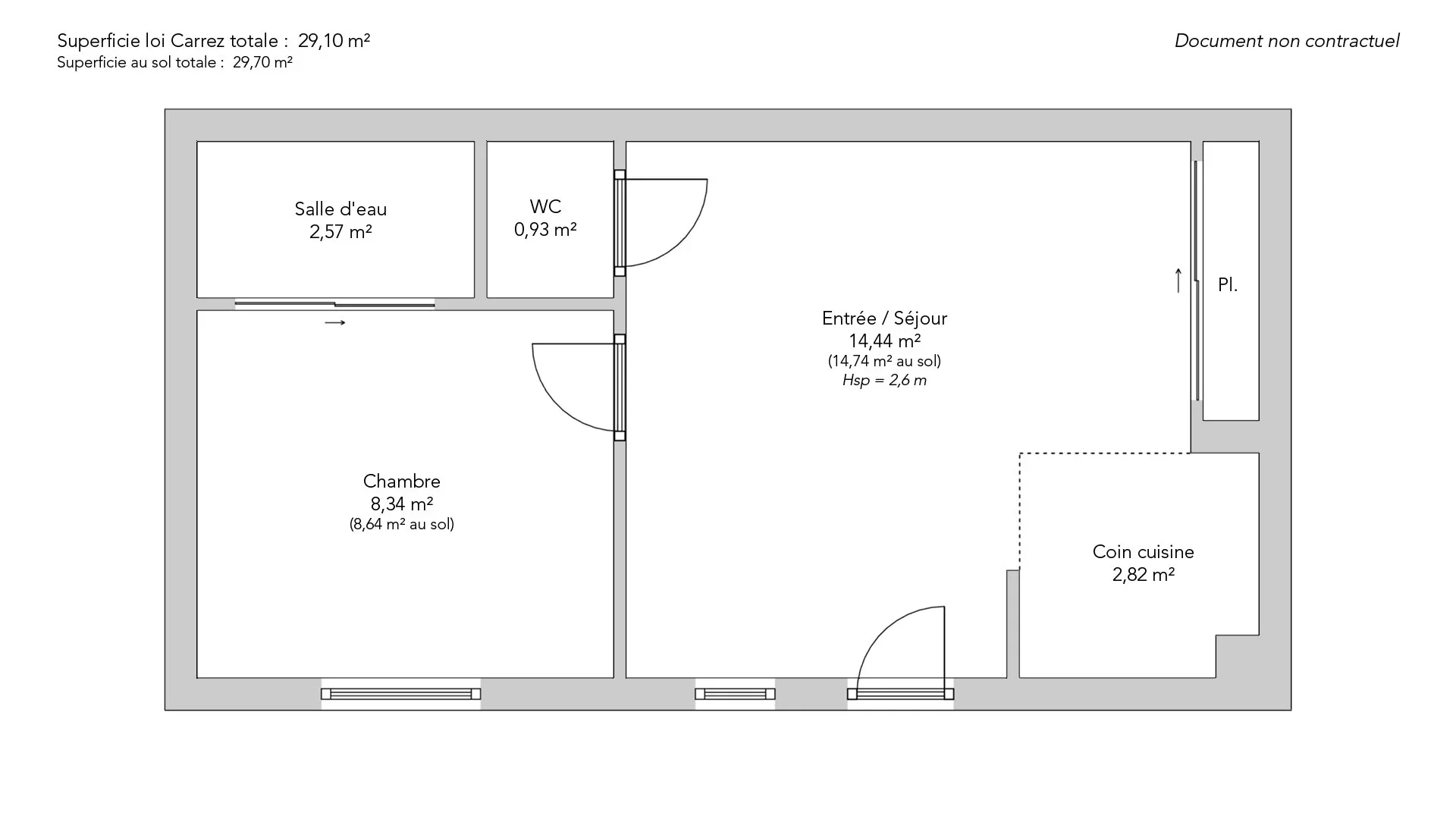
- Habitable : 29,10 m² Total : 29,70 m²
- 2 pièces
- 1 chambre
- 1 salle de douche
- Étage 1/6
- Exposition Sud
- À rafraîchir
Ce qui nous séduit
- Gardien
On vous en dit plus
Réglementations & éléments financiers
Les informations sur les risques auxquels ce bien est exposé sont disponibles sur le site Géorisques : www.georisques.gouv.fr
| Diagnostics |
|---|
Consommation énergie finale : C - 136.9 kWh/m²/an.
Montant estimé des dépenses annuelles d’énergie pour un usage standard : entre 770,00 € et 1 050,00 € /an (abonnement compris).
Prix moyen des énergies indexées au 01/01/2021.
| Éléments financiers |
|---|
Détails de l’intérieur & de l’extérieur
| Pièce | Surface | Détail |
|---|---|---|
| 1x Toilettes | 0.93 m² | Étage : 1er |
| 1x Séjour | 14.44 m² | Étage : 1er |
| 1x Cuisine | 2.82 m² | Étage : 1er |
| 1x Salle de douche | 2.57 m² | Étage : 1er |
| 1x Chambre | 8.34 m² | Étage : 1er |
Prestations
Bâtiment & Copropriété
| Bâtiment |
|---|
-
Construit en : 1900
-
Nombre d'étages : 6
| Copropriété |
|---|
Montant moyen annuel de la quote part de charges courantes : 1 440 €
Procédure en cours : Non
Rencontrez votre agence
Simulateur de financement
Calculez le montant des mensualités de votre prêt immobilier correspondant à l'emprunt que vous souhaitez effectuer.
Prix du bien HAI
435 000 €
€
par mois
Vous devez vendre pour acheter ?
Nos consultants immobiliers se tiennent à votre disposition pour réaliser une estimation de la valeur de votre bien. Toutes nos estimations sont offertes.
Je fais estimer mon bienUn lieu de vie à votre image
Junot vous fait visiter les quartiers dans lesquels nos agences vous accueillent, et vous présente les spécificités et bonnes adresses.
Parcourir les quartiers












