Faisons un tour d'horizon
Référence de l’annonce : 3471BRESAT
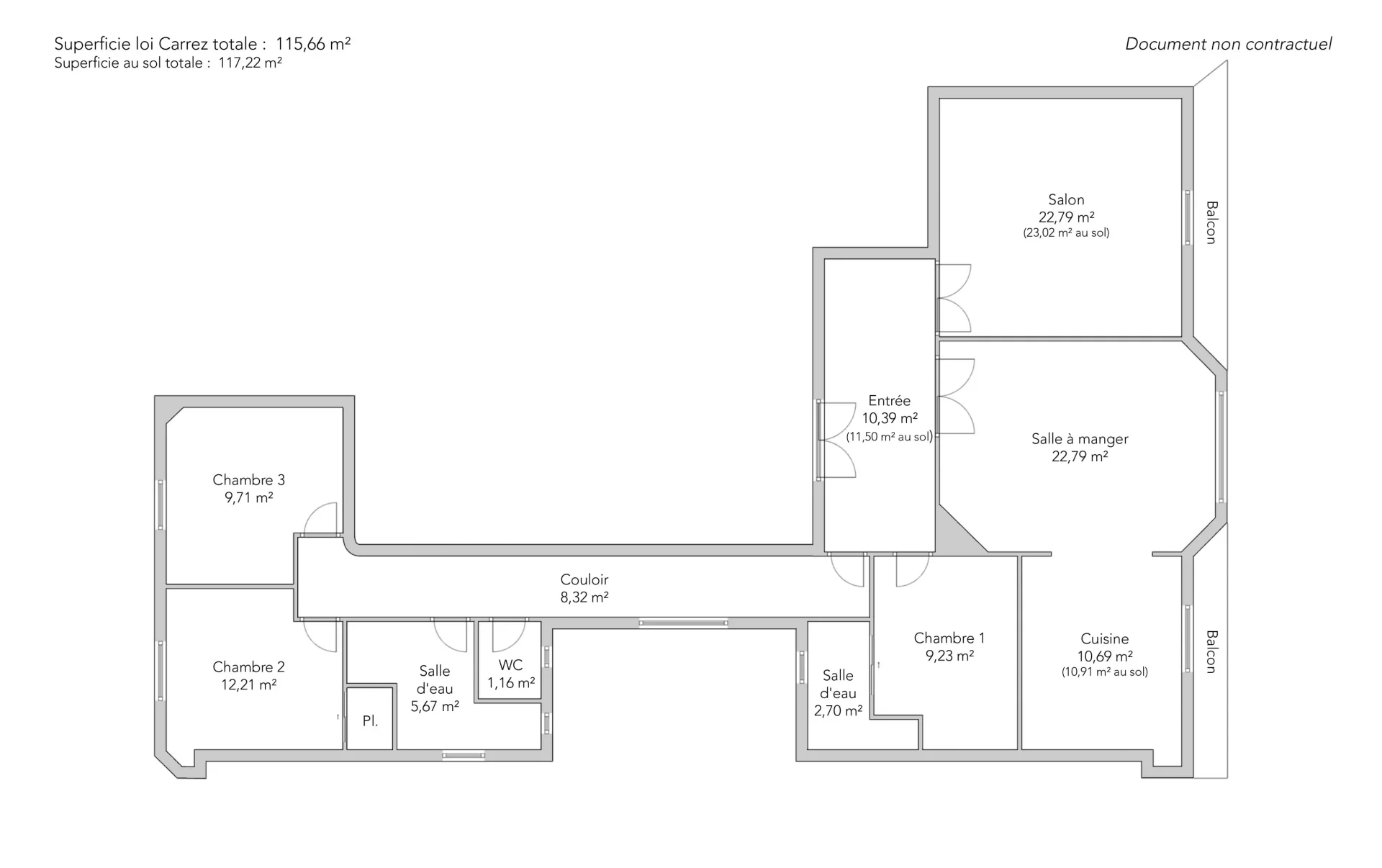
Au sein de l'emblématique immeuble construit en 1912 par Frantz Jourdain, classé et sécurisé, au cinquième étage avec ascenseur, un appartement rénové, par architecte de 116m² loi Carrez.
Il comporte une entrée, un séjour offrant des vues dégagées notamment sur les colonnes du Louvre, une grande cuisine dînatoire entièrement aménagée et équipée, une chambre parentale avec dressing et salle de douche avec toilettes, deux autres chambres au calme d'une cour d'exposition est, une salle de douche avec espace buanderie et des toilettes invités. Le séjour et la suite sont bordés de balcons exposés ouest.
Belle hauteur sous plafond de 3,10m et charme ancien préservé: parquet, moulures et cheminée. Fenêtres dans toutes les pièces et nombreux rangements. Climatisation aux normes.
Une cave complète ce bien d'exception à la rénovation de grande qualité.
- Habitable : 115,66 m² Total : 117,22 m²
- 5 pièces
- 3 chambres
- 1 salle de bains
- 1 salle de douche
- Étage 5/6
- Cheminée
- Exposition Est, Ouest
- Neuf
- Meublé
Ce qui nous séduit
- Balcon/Terrasse
- Adresse très recherchée
- Prestations exceptionnelles
- Gardien
- Traversant
- Ascenseur
- Cave
- Vue dégagée
On vous en dit plus
Réglementations & éléments financiers
Les informations sur les risques auxquels ce bien est exposé sont disponibles sur le site Géorisques : www.georisques.gouv.fr
| Diagnostics |
|---|
Consommation énergie finale : B - 107 kWh/m²/an.
Montant estimé des dépenses annuelles d’énergie pour un usage standard : entre 2 190,00 € et 2 970,00 € /an (abonnement compris).
Prix moyen des énergies indexées au 01/01/2023.
| Éléments financiers |
|---|
Taxe foncière : 2 000,00 € /an
Détails de l’intérieur & de l’extérieur
| Pièce | Surface | Détail |
|---|---|---|
| 1x Cave | Étage : -2 | |
| 1x Entrée | 10.39 m² |
Étage : 5ème Revêtement : Parquet |
| 1x Séjour | 22.79 m² |
Étage : 5ème Revêtement : Parquet |
| 1x Cuisine | 10.69 m² |
Étage : 5ème Revêtement : Parquet |
| 1x Chambre de maître | 12.21 m² |
Étage : 5ème Revêtement : Parquet |
| 1x Salle à manger | 22.79 m² |
Étage : 5ème Revêtement : Parquet |
| 1x Salle de douche | 2.7 m² |
Étage : 5ème Revêtement : Carrelage |
| 1x Toilettes | 1.16 m² |
Étage : 5ème Revêtement : Carrelage |
| 1x Salle de bains / toilettes | 5.67 m² |
Étage : 5ème Revêtement : Carrelage |
| 1x Chambre | 9.23 m² |
Étage : 5ème Revêtement : Carrelage |
| 1x Chambre | 9.71 m² |
Étage : 5ème Revêtement : Parquet |
| 1x Balcon | Étage : 5ème | |
| 1x Couloir | 8.32 m² |
Étage : 5ème Revêtement : Parquet |
Prestations
Bâtiment & Copropriété
| Bâtiment |
|---|
-
Construit en : 2000
-
Type : Pierre de taille
-
Nombre d'étages : 6
-
Niveau de qualité : Standing
| Copropriété |
|---|
36 lots d'habitation
Montant moyen annuel de la quote part de charges courantes : 4 000 €
Procédure en cours : Non
Rencontrez votre agence
Simulateur de financement
Calculez le montant des mensualités de votre prêt immobilier correspondant à l'emprunt que vous souhaitez effectuer.
Prix du bien HAI
2 600 000 €
€
par mois
Vous devez vendre pour acheter ?
Nos consultants immobiliers se tiennent à votre disposition pour réaliser une estimation de la valeur de votre bien. Toutes nos estimations sont offertes.
Je fais estimer mon bienUn lieu de vie à votre image
Junot vous fait visiter les quartiers dans lesquels nos agences vous accueillent, et vous présente les spécificités et bonnes adresses.
Parcourir les quartiers











