Faisons un tour d'horizon
Référence de l’annonce : 3392STGMIC
Idéalement situé, au sein d'une cité privée et proche de tous les commerces.
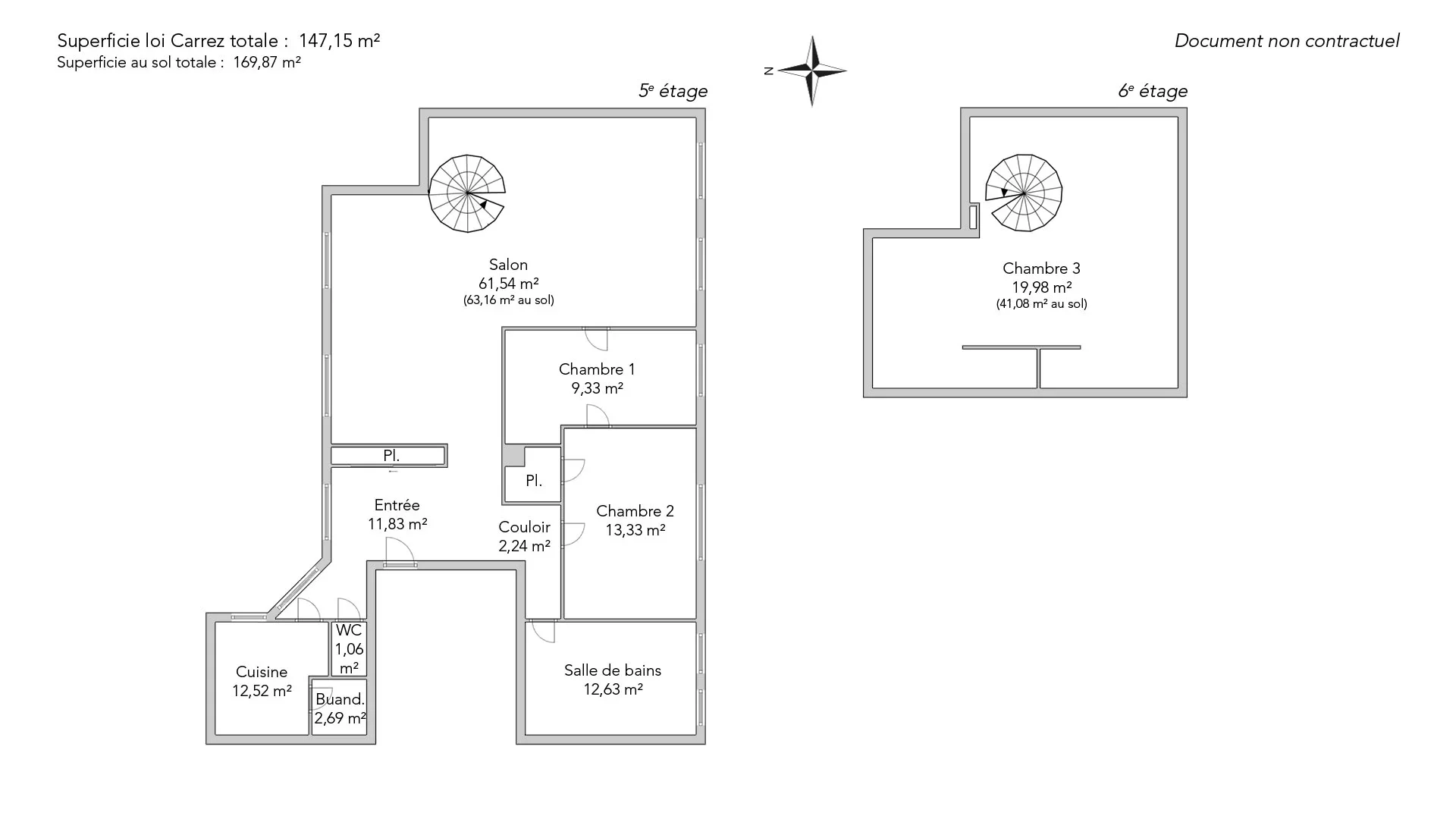
Duplex familial aux deux derniers étages par ascenseur, d'une copropriété bien entretenue, d'une superficie de 147,15m² loi Carrez et 169,87m² au sol, il offre une superbe pièce de vie traversante de près de 60m², trois chambres dont une chambre principale sous les toits, une cuisine indépendante, une salle de bains, une buanderie et des toilettes indépendantes. Le plan de cet appartement est très modulable.
Ce bien saura vous séduire par son emplacement très central, et son environnement privilégié (voie semi-privée), ses vues dégagées et sa luminosité. Grand potentiel.
Une cave complète cette offre
- Habitable : 147,15 m² Total : 169,87 m²
- 5 pièces
- 3 chambres
- 1 salle de bains
- Exposition Sud
- À rafraîchir
Ce qui nous séduit
- Dernier étage
- Lumineux
- Calme
- Ascenseur
- Vue dégagée
On vous en dit plus
Réglementations & éléments financiers
Les informations sur les risques auxquels ce bien est exposé sont disponibles sur le site Géorisques : www.georisques.gouv.fr
| Diagnostics |
|---|
Consommation énergie finale : D - 246 kWh/m²/an.
Montant estimé des dépenses annuelles d’énergie pour un usage standard : entre 3 190,00 € et 4 330,00 € /an (abonnement compris).
Prix moyen des énergies indexées au 01/01/2021.
| Éléments financiers |
|---|
Taxe foncière : 2 737,00 € /an
Détails de l’intérieur & de l’extérieur
| Pièce | Surface | Détail |
|---|---|---|
| 1x Entrée | 11.83 m² |
Étage : 5ème Revêtement : Parquet |
| 1x Salon | 61.54 m² |
Étage : 5ème Exposition : Sud Revêtement : Parquet |
| 1x Cuisine | 12.52 m² |
Étage : 5ème Revêtement : Carrelage |
| 1x Chambre | 9.33 m² |
Étage : 5ème Revêtement : Parquet |
| 1x Chambre | 13.33 m² |
Étage : 5ème Revêtement : Parquet |
| 1x Salle de bains | 12.63 m² |
Étage : 5ème Revêtement : Carrelage |
| 1x Buanderie | 2.69 m² |
Étage : 5ème Revêtement : Carrelage |
| 1x Dégagement | 2.24 m² | Étage : 5ème |
| 1x Toilettes | 1.06 m² |
Étage : 5ème Revêtement : Carrelage |
| 1x Chambre | 19.98 m² |
Étage : 6ème Revêtement : Parquet |
Prestations
Bâtiment & Copropriété
| Bâtiment |
|---|
-
Construit en : 1830
-
Nombre d'étages : 6
| Copropriété |
|---|
19 lots d'habitation
Montant moyen annuel de la quote part de charges courantes : 8 160 €
Procédure en cours : Non
Rencontrez votre agence
Simulateur de financement
Calculez le montant des mensualités de votre prêt immobilier correspondant à l'emprunt que vous souhaitez effectuer.
Prix du bien HAI
1 980 000 €
€
par mois
Vous devez vendre pour acheter ?
Nos consultants immobiliers se tiennent à votre disposition pour réaliser une estimation de la valeur de votre bien. Toutes nos estimations sont offertes.
Je fais estimer mon bienUn lieu de vie à votre image
Junot vous fait visiter les quartiers dans lesquels nos agences vous accueillent, et vous présente les spécificités et bonnes adresses.
Parcourir les quartiers










