Faisons un tour d'horizon
Référence de l’annonce : 3528ABBRAF
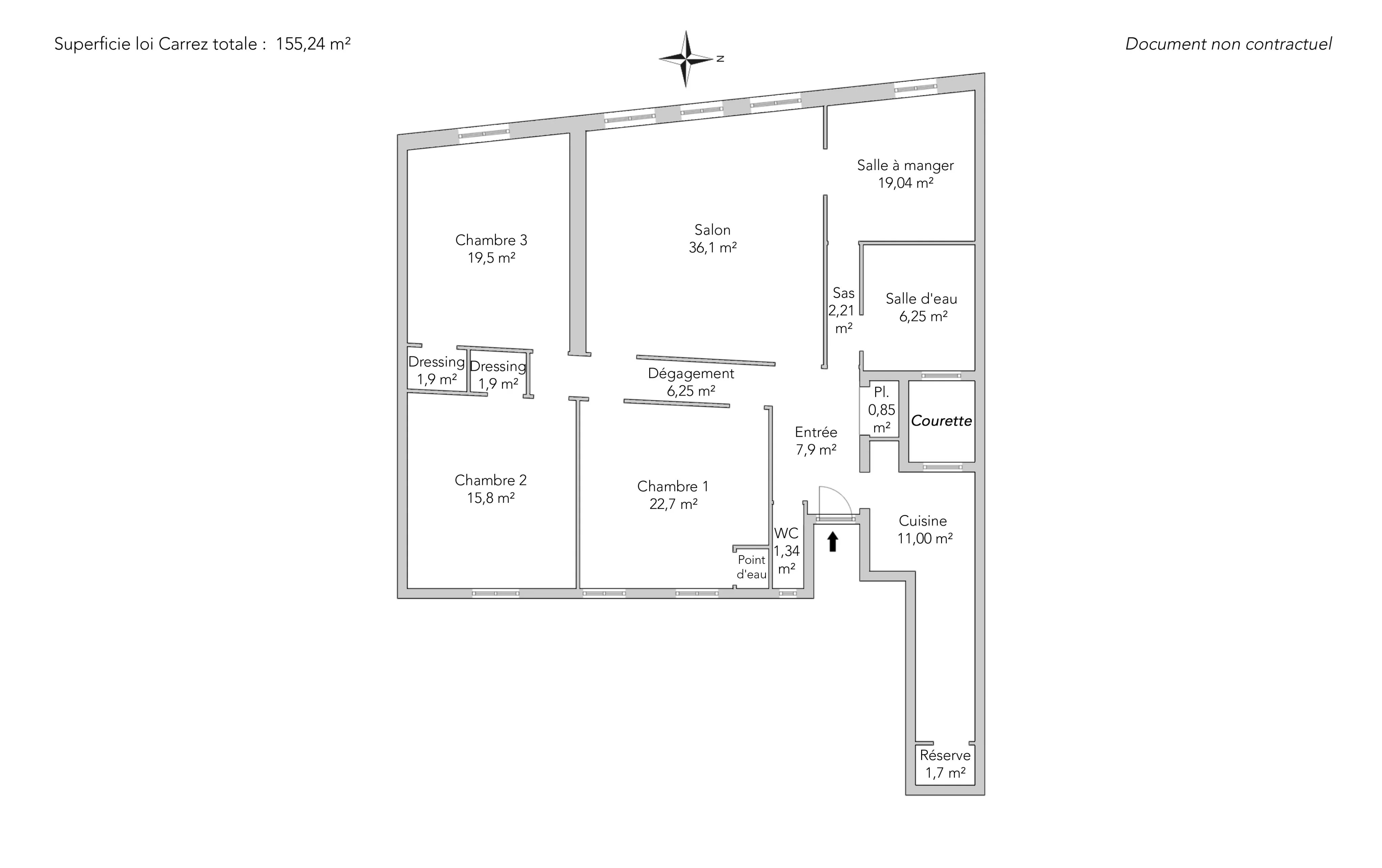
Dans le 9e arrondissement de Paris, à proximité des commerces animés et des transports bien desservis, cet appartement traversant de 155,24m² loi Carrez à rénover, situé au deuxième étage avec ascenseur, séduit par sa belle hauteur sous plafond et son exposition Ouest idéale pour une luminosité optimale tout au long de la journée, agrémenté d'un balcon filant.
Ce cinq pièces familial comprend une entrée, une cuisine indépendante, un beau séjour donnant sur le balcon filant exposé ouest, une salle à manger, trois chambres confortables dont deux sur cour avec possibilité d'en aménager une quatrième, une salle de douche ainsi que des toilettes séparées.
Une grande cave complète ce bien.
EXCLUSIVITÉ.
- Habitable : 155,24 m² Total : 156,33 m²
- 5 pièces
- 3 chambres
- 1 salle de douche
- Étage 2/5
- Cheminée
- Exposition Est, Ouest
- À rénover
Ce qui nous séduit
- Balcon/Terrasse
- Adresse très recherchée
- Lumineux
- Traversant
- Ascenseur
- Cave
On vous en dit plus
Réglementations & éléments financiers
Les informations sur les risques auxquels ce bien est exposé sont disponibles sur le site Géorisques : www.georisques.gouv.fr
| Diagnostics |
|---|
Consommation énergie finale : a - 162 kWh/m²/an.
Montant estimé des dépenses annuelles d’énergie pour un usage standard : entre 2 290,00 € et 3 140,00 € /an (abonnement compris).
| Éléments financiers |
|---|
Taxe foncière : 2 672,00 € /an
Détails de l’intérieur & de l’extérieur
| Pièce | Surface | Détail |
|---|---|---|
| 1x Séjour | 36.1 m² |
Revêtement : Parquet |
| 1x Balcon | ||
| 1x Chambre | 15.8 m² | |
| 1x Dressing | 1.9 m² | |
| 1x Cave | Étage : Sous-sol | |
| 1x Entrée | 7.9 m² |
Étage : 2ème Revêtement : Parquet |
| 1x Chambre | 22.7 m² |
Étage : 2ème Revêtement : Parquet |
| 1x Salle de douche | 6.25 m² |
Étage : 2ème Revêtement : Carrelage |
| 1x Toilettes | 1.34 m² |
Étage : 2ème Revêtement : Carrelage |
| 1x Cuisine | 11 m² |
Étage : 2ème Revêtement : Carrelage |
| 1x Salle à manger | 19.04 m² |
Étage : 2ème Revêtement : Parquet |
| 1x Dégagement | 6.25 m² |
Étage : 2ème Revêtement : Parquet |
| 1x Chambre | 19.5 m² |
Étage : 2ème Revêtement : Parquet |
| 1x Dressing | 1.9 m² |
Étage : 2ème Revêtement : Parquet |
| 1x Autre | 2.21 m² | Étage : 2ème |
| 1x Placard | 0.85 m² | Étage : 2ème |
| 1x Stock / Réserve | 1.7 m² |
Étage : 2ème Revêtement : Carrelage |
| 1x Local technique | 0.8 m² |
Étage : 2ème Revêtement : Carrelage |
Prestations
Bâtiment & Copropriété
| Bâtiment |
|---|
-
Construit en : 1880
-
Type : Pierre de taille
-
Nombre d'étages : 5
-
Niveau de qualité : Standing
| Copropriété |
|---|
62 lots d'habitation
Montant moyen annuel de la quote part de charges courantes : 3 192 €
Procédure en cours : Non
Rencontrez votre agence
Simulateur de financement
Calculez le montant des mensualités de votre prêt immobilier correspondant à l'emprunt que vous souhaitez effectuer.
Prix du bien HAI
1 700 000 €
€
par mois
Vous devez vendre pour acheter ?
Nos consultants immobiliers se tiennent à votre disposition pour réaliser une estimation de la valeur de votre bien. Toutes nos estimations sont offertes.
Je fais estimer mon bienUn lieu de vie à votre image
Junot vous fait visiter les quartiers dans lesquels nos agences vous accueillent, et vous présente les spécificités et bonnes adresses.
Parcourir les quartiers










