Faisons un tour d'horizon
Référence de l’annonce : 3543MARLAC
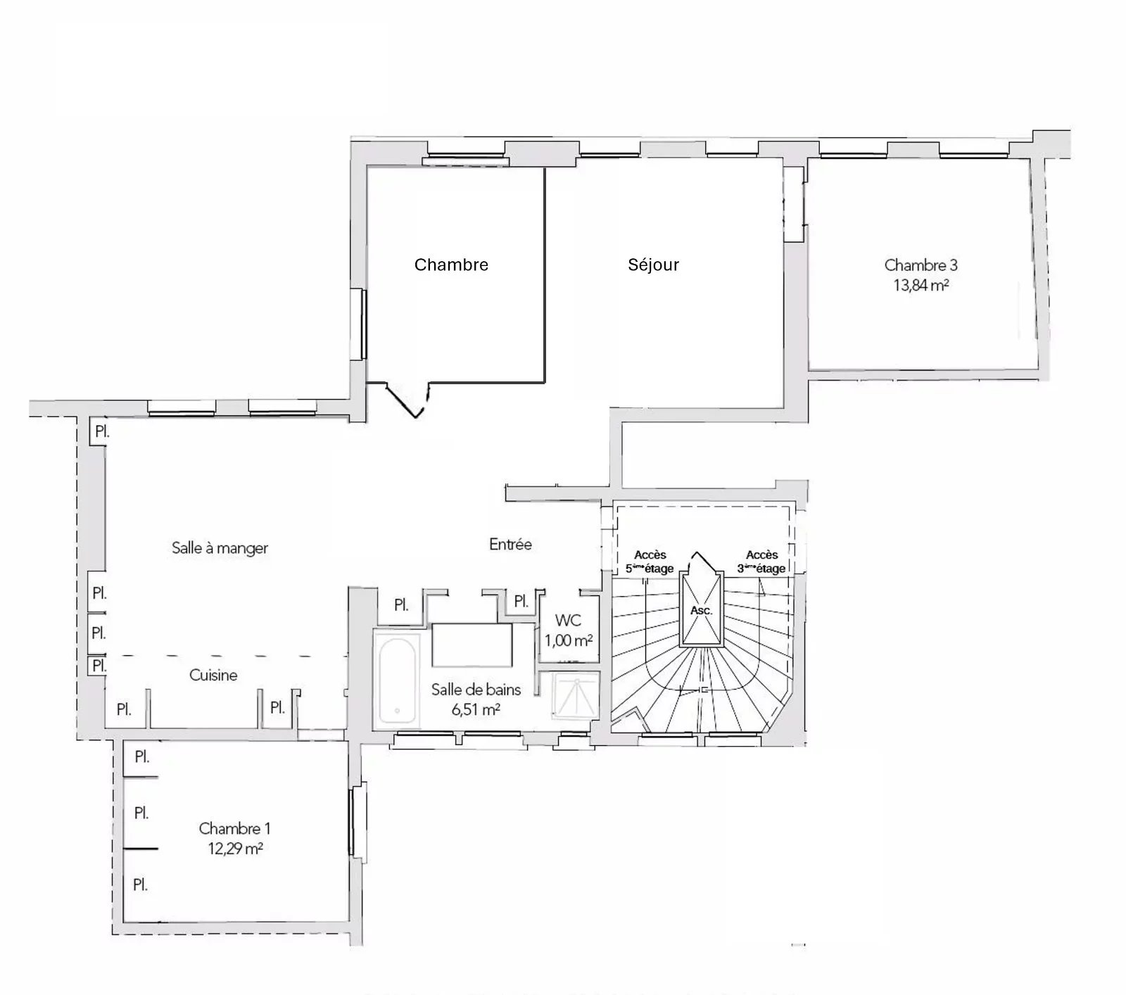
A proximité de la rue des Martyrs, au sein d'un immeuble ancien très bien entretenu, élégant appartement de 97m².
Situé au quatrième étage avec ascenseur, l'appartement a été entièrement refait par un architecte. Il comprend : une entrée avec rangements, un beau séjour offrant une jolie vue dégagée, une cuisine ouverte/salle à manger, trois chambres avec rangements et d'une salle de douche avec sauna et de toilettes séparées.
Rénovation de qualité. Nombreux placards. Poutres apparentes. Charme de l'ancien. Calme absolu et très lumineux.
Sectorisation CONDORCET. Une cave complète ce bien.
- Habitable : 97,03 m²
- 5 pièces
- 3 chambres
- 1 salle de douche
- Étage 4/6
- Exposition Nord
- Bon état
Ce qui nous séduit
- Ascenseur
- Cave
On vous en dit plus
Réglementations & éléments financiers
Les informations sur les risques auxquels ce bien est exposé sont disponibles sur le site Géorisques : www.georisques.gouv.fr
| Diagnostics |
|---|
Consommation énergie finale : C - 134 kWh/m²/an.
Montant estimé des dépenses annuelles d’énergie pour un usage standard : entre 1 510,00 € et 2 100,00 € /an (abonnement compris).
Prix moyen des énergies indexées au 01/01/2023.
| Éléments financiers |
|---|
Taxe foncière : 1 634,00 € /an
Détails de l’intérieur & de l’extérieur
| Pièce | Surface | Détail |
|---|---|---|
| 1x Cave | Étage : -1 | |
| 1x Séjour/cuisine | 36.33 m² |
Étage : 4ème Revêtement : Parquet |
| 1x Salon | 17.27 m² |
Étage : 4ème Revêtement : Parquet |
| 1x Chambre | 12.36 m² |
Étage : 4ème Revêtement : Parquet |
| 1x Chambre | 10.1 m² |
Étage : 4ème Revêtement : Parquet |
| 1x Chambre | 13.29 m² |
Étage : 4ème Revêtement : Parquet |
| 1x Salle de douche | 6.53 m² |
Étage : 4ème Revêtement : Carrelage |
| 1x Toilettes | 1.15 m² |
Étage : 4ème Revêtement : Carrelage |
Prestations
Bâtiment & Copropriété
| Bâtiment |
|---|
-
Construit en : 1890
-
Type : Pierre
-
Nombre d'étages : 6
-
Niveau de qualité : Normal
| Copropriété |
|---|
61 lots d'habitation
Montant moyen annuel de la quote part de charges courantes : 3 120 €
Procédure en cours : Oui
Rencontrez votre agence
Simulateur de financement
Calculez le montant des mensualités de votre prêt immobilier correspondant à l'emprunt que vous souhaitez effectuer.
Prix du bien HAI
1 540 000 €
€
par mois
Vous devez vendre pour acheter ?
Nos consultants immobiliers se tiennent à votre disposition pour réaliser une estimation de la valeur de votre bien. Toutes nos estimations sont offertes.
Je fais estimer mon bienUn lieu de vie à votre image
Junot vous fait visiter les quartiers dans lesquels nos agences vous accueillent, et vous présente les spécificités et bonnes adresses.
Parcourir les quartiers











