Faisons un tour d'horizon
Référence de l’annonce : 1906CHMHEN/3518BRE
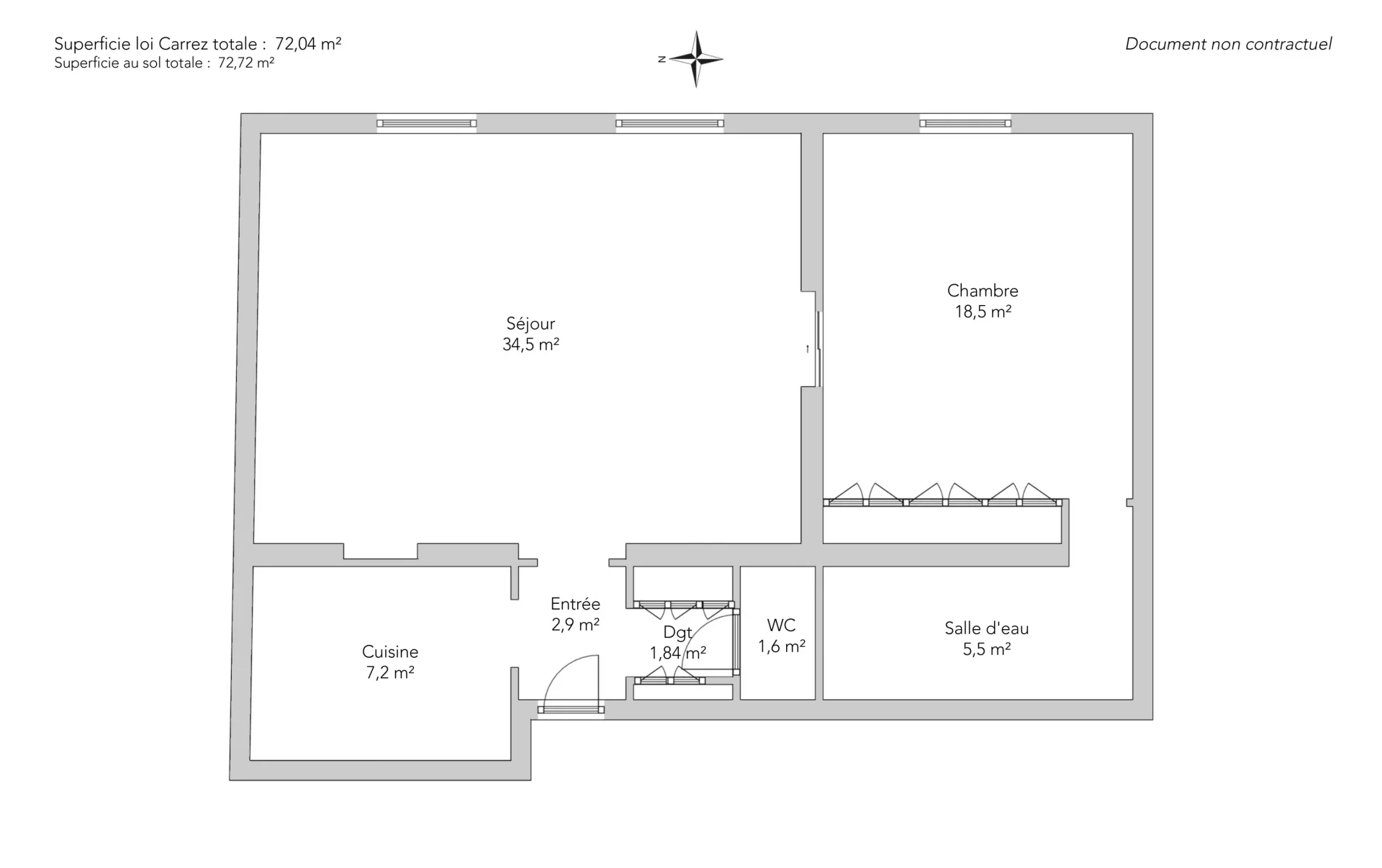
Au troisième étage après l'entresol d'un immeuble ancien avec ascenseur, cet appartement de 72,04m² loi carrez offre un plan optimal et des volumes généreux, en face du jardin des Tuileries.
L'entrée avec des toilettes invités mène à une belle réception de 35m² ouvrant sur un balcon donnant rue Saint-Roch, une cuisine équipée semi-ouverte, puis une chambre spacieuse en suite avec une salle bains agrémentée de toilettes.
Nombreux rangements et un espace buanderie. Une cave. Cet appartement en très bon état bénéfice d'un emplacement privilégié au cœur de Paris. Pied à terre idéal.
Libération des lieux au plus tard le 1er août 2026.
EXCLUSIVITÉ.
- Habitable : 72,04 m² Total : 72,72 m²
- 2 pièces
- 1 chambre
- 1 salle de bains
- Étage 4/6
- Exposition Est
- Bon état
Ce qui nous séduit
- Adresse très recherchée
- Lumineux
- Calme
- Ascenseur
On vous en dit plus
Réglementations & éléments financiers
Les informations sur les risques auxquels ce bien est exposé sont disponibles sur le site Géorisques : www.georisques.gouv.fr
| Diagnostics |
|---|
Consommation énergie finale : a - 276 kWh/m²/an.
Montant estimé des dépenses annuelles d’énergie pour un usage standard : entre 1 630,00 € et 2 240,00 € /an (abonnement compris).
Prix moyen des énergies indexées au 01/01/2023.
| Éléments financiers |
|---|
Taxe foncière : 1 944,00 € /an
Détails de l’intérieur & de l’extérieur
| Pièce | Surface | Détail |
|---|---|---|
| 1x Entrée | 2.9 m² | Étage : 4ème |
| 1x Cuisine | 7.2 m² | Étage : 4ème |
| 1x Dégagement | 1.84 m² | Étage : 4ème |
| 1x Toilettes | 1.6 m² | Étage : 4ème |
| 1x Séjour | 34.5 m² |
Étage : 4ème Plafond : 2.8m |
| 1x Chambre | 18.5 m² | Étage : 4ème |
| 1x Salle de bains / toilettes | 5.5 m² | Étage : 4ème |
Prestations
Bâtiment & Copropriété
| Bâtiment |
|---|
-
Construit en : 1830
-
Type : Pierre de taille
-
Nombre d'étages : 6
-
Niveau de qualité : Standing
| Copropriété |
|---|
31 lots d'habitation
Montant moyen annuel de la quote part de charges courantes : 5 400 €
Procédure en cours : Non
Rencontrez votre agence
Simulateur de financement
Calculez le montant des mensualités de votre prêt immobilier correspondant à l'emprunt que vous souhaitez effectuer.
Prix du bien HAI
1 300 000 €
€
par mois
Vous devez vendre pour acheter ?
Nos consultants immobiliers se tiennent à votre disposition pour réaliser une estimation de la valeur de votre bien. Toutes nos estimations sont offertes.
Je fais estimer mon bienUn lieu de vie à votre image
Junot vous fait visiter les quartiers dans lesquels nos agences vous accueillent, et vous présente les spécificités et bonnes adresses.
Parcourir les quartiers










