Faisons un tour d'horizon
Référence de l’annonce : 3287BTLOUV
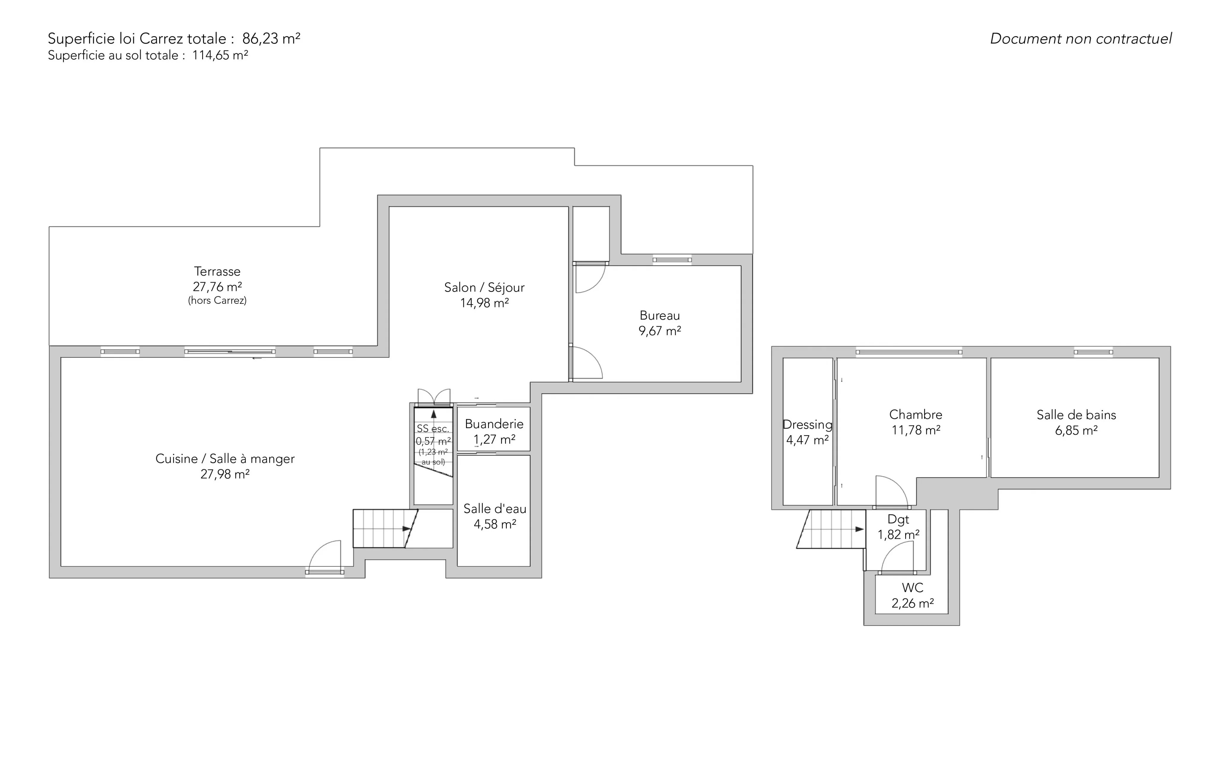
Aux deux derniers étages (7e et 8e), accessibles par ascenseur, d’un immeuble très récent, se trouve un bel appartement avec terrasse et vues dégagées.
Au septième étage, la réception comprend un séjour et une cuisine américaine équipée. Une chambre avec sa salle d’eau et ses toilettes. L’ensemble s’ouvre de plain-pied sur une grande terrasse de 28m² offrant de sublimes vues sur quelques monuments emblématiques tels que la tour Eiffel, le Sacré-Cœur, l’Arc de Triomphe ou encore les Invalides.
Au 8e étage, accessible par un élégant escalier intérieur, se trouve une suite parentale avec salle de bains et dressing. L’ensemble est en parfait état et bénéficie d’une belle luminosité. Un double parking est disponible en supplément.
- Habitable : 86,23 m² Total : 114,65 m²
- 4 pièces
- 2 chambres
- 1 salle de bains
- 1 salle de douche
- Étage 8/8
- Excellent état
Ce qui nous séduit
- Balcon/Terrasse
- Ascenseur
On vous en dit plus
Réglementations & éléments financiers
Les informations sur les risques auxquels ce bien est exposé sont disponibles sur le site Géorisques : www.georisques.gouv.fr
| Diagnostics |
|---|
Consommation énergie finale : B - 82 kWh/m²/an.
Montant estimé des dépenses annuelles d’énergie pour un usage standard : entre 600,00 € et 860,00 € /an (abonnement compris).
Prix moyen des énergies indexées au 01/01/2021.
| Éléments financiers |
|---|
Taxe foncière : 2 137,00 € /an
Détails de l’intérieur & de l’extérieur
| Pièce | Surface | Détail |
|---|---|---|
| 1x Parking intérieur | ||
| 1x Parking intérieur | ||
| 1x Salle à manger/Cuisine | 27.98 m² | Étage : 7ème |
| 1x Salon | 14.98 m² | Étage : 7ème |
| 1x Chambre | 9.67 m² | Étage : 7ème |
| 1x Buanderie | 1.27 m² | Étage : 7ème |
| 1x Salle de douche | 4.58 m² | Étage : 7ème |
| 1x Terrasse | Étage : 7ème | |
| 1x Escalier | 0.57 m² | Étage : 7ème |
| 1x Dégagement | 1.82 m² | Étage : 8ème |
| 1x Chambre | 11.78 m² | Étage : 8ème |
| 1x Dressing | 4.47 m² | Étage : 8ème |
| 1x Salle de bains | 6.85 m² | Étage : 8ème |
| 1x Toilettes | 2.26 m² | Étage : 8ème |
Prestations
Bâtiment & Copropriété
| Bâtiment |
|---|
-
Construit en : 2017
-
Nombre d'étages : 8
| Copropriété |
|---|
93 lots d'habitation
Montant moyen annuel de la quote part de charges courantes : 7 000 €
Procédure en cours : Non
Rencontrez votre agence
Simulateur de financement
Calculez le montant des mensualités de votre prêt immobilier correspondant à l'emprunt que vous souhaitez effectuer.
Prix du bien HAI
2 120 000 €
€
par mois
Vous devez vendre pour acheter ?
Nos consultants immobiliers se tiennent à votre disposition pour réaliser une estimation de la valeur de votre bien. Toutes nos estimations sont offertes.
Je fais estimer mon bienUn lieu de vie à votre image
Junot vous fait visiter les quartiers dans lesquels nos agences vous accueillent, et vous présente les spécificités et bonnes adresses.
Parcourir les quartiers












