Faisons un tour d'horizon
Référence de l’annonce : 3424BTLGAR/2288PASS
Située dans l’un des quartiers les plus prisés de Boulogne-Billancourt, cette élégante maison d’inspiration Art déco, entièrement rénovée en 2022, allie charme architectural et prestations contemporaines haut de gamme.
Développée sur cinq niveaux desservis par un ascenseur, cette demeure offre un confort de vie rare au cœur de la ville.
Dès l’entrée, vous serez séduit par ses volumes généreux et sa luminosité.
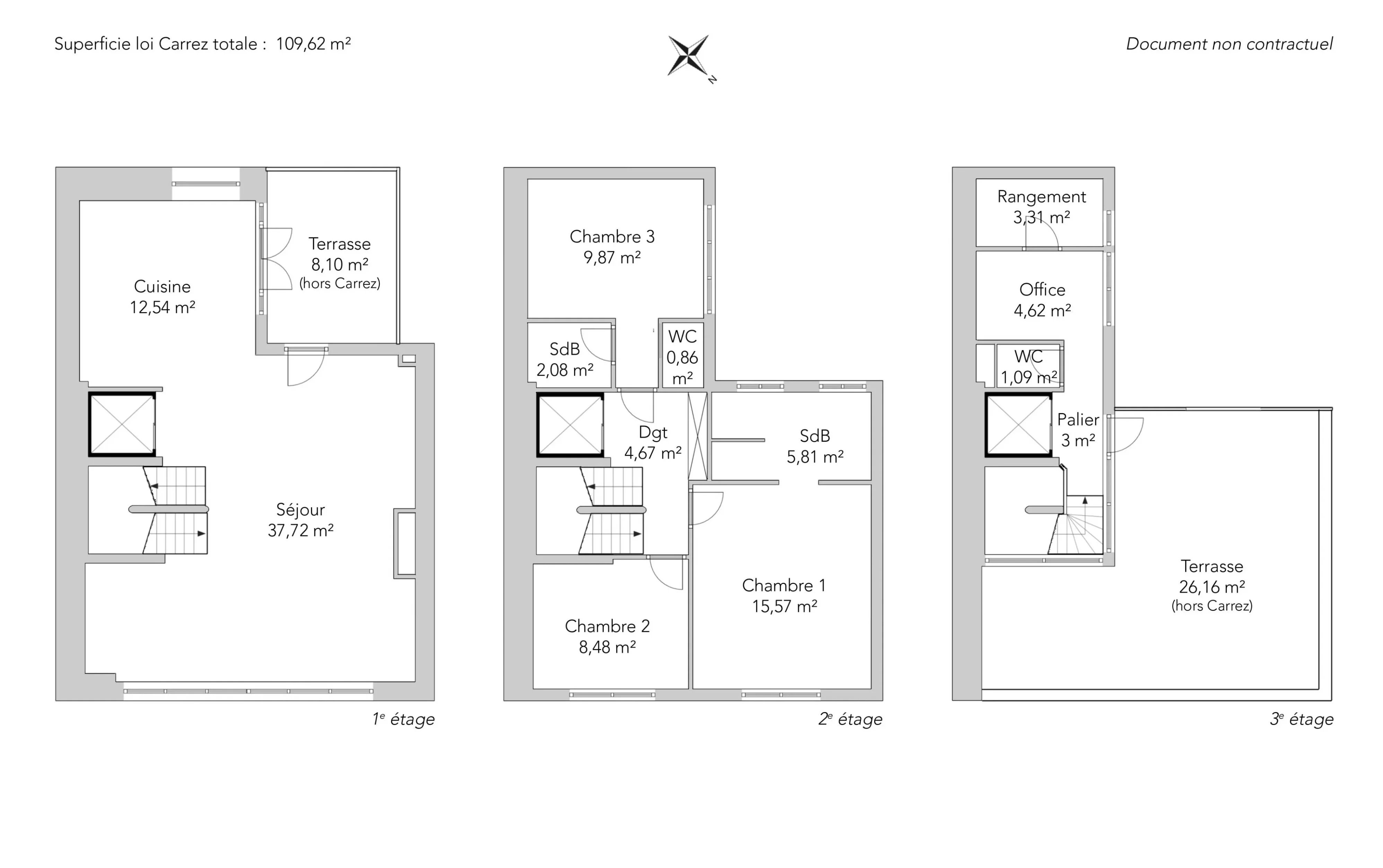
Au rez-de-chaussée, un hall d’accueil dessert une spacieuse chambre avec salle de douche privative, ainsi que des toilettes invités.
Au premier étage, l’espace de vie s’articule autour d’un vaste double séjour baigné de lumière grâce à ses grandes baies vitrées donnant sur une rue calme et charmante.
L’ensemble s’ouvre sur une cuisine moderne entièrement équipée, prolongée par une agréable terrasse de plain-pied, idéale pour les repas en extérieur.
Au deuxième étage, vous découvrirez deux belles chambres (possibilité d’en créer une troisième), une salle de bains élégante, une salle de douche et des toilettes indépendantes.
Le troisième étage abrite un espace cuisine fermé menant à une magnifique terrasse arborée de 30m², offrant une vue panoramique dégagée sur les environs, un véritable havre de paix.
Enfin, le sous-sol, accessible lui aussi par l’ascenseur, réserve de belles surprises: un home cinéma de 20m², un espace bien-être avec sauna et vaste salle de douche, une buanderie, une cave à vin et des toilettes.
La propriété bénéficie également d’un garage individuel équipé d’une borne de recharge électrique, un atout rare dans ce secteur recherché.
- Habitable : 173,10 m² Total : 237,80 m²
- 9 pièces
- 3 chambres
- 1 salle de bains
- 3 salles de douche
- Excellent état
Ce qui nous séduit
- Balcon/Terrasse
- Adresse très recherchée
- Garage
- Lumineux
- Calme
- Traversant
- Ascenseur
- Salle de bien être
- Cave
- Vue dégagée
On vous en dit plus
Réglementations & éléments financiers
Les informations sur les risques auxquels ce bien est exposé sont disponibles sur le site Géorisques : www.georisques.gouv.fr
| Diagnostics |
|---|
Consommation énergie finale : a - 47 kWh/m²/an.
Montant estimé des dépenses annuelles d’énergie pour un usage standard : entre 1 450,00 € et 2 020,00 € /an (abonnement compris).
Prix moyen des énergies indexées au 01/01/2023.
| Éléments financiers |
|---|
Taxe foncière : 1 728,00 € /an
Détails de l’intérieur & de l’extérieur
| Pièce | Surface | Détail |
|---|---|---|
| 1x Palier | 6.35 m² | Étage : Sous-sol |
| 1x Salle | 18.39 m² | Étage : Sous-sol |
| 1x Toilettes | 0.88 m² | Étage : Sous-sol |
| 1x Salle de bains | 8.92 m² | Étage : Sous-sol |
| 1x Buanderie | 11.53 m² | Étage : Sous-sol |
| 4x Cave | 4.5 m² | Étage : Sous-sol |
| 1x Dégagement | 3.45 m² | Étage : Sous-sol |
| 1x Entrée | 15.64 m² | Étage : Rez-de-chaussée |
| 1x Placard | 1.25 m² | Étage : Rez-de-chaussée |
| 1x Toilettes | 1.85 m² | Étage : Rez-de-chaussée |
| 1x Chambre | 17.65 m² | Étage : Rez-de-chaussée |
| 1x Salle de douche | 2.42 m² | Étage : Rez-de-chaussée |
| 1x Garage | 15.91 m² | Étage : Rez-de-chaussée |
| 1x Dégagement | 3.55 m² | Étage : Rez-de-chaussée |
| 1x Séjour | 33.55 m² | Étage : 1er |
| 1x Cuisine | 13.24 m² | Étage : 1er |
| 1x Terrasse | 8.69 m² | Étage : 1er |
| 1x Dégagement | 3.91 m² | Étage : 1er |
| 1x Palier | 4.86 m² | Étage : 2ème |
| 1x Chambre | 11.06 m² | Étage : 2ème |
| 1x Salle de douche | 1.84 m² | Étage : 2ème |
| 1x Toilettes | 0.97 m² | Étage : 2ème |
| 1x Chambre | 14.62 m² | Étage : 2ème |
| 1x Salle de douche | 5.54 m² | Étage : 2ème |
| 1x Dressing | 8.44 m² | Étage : 2ème |
| 1x Dégagement | 4.1 m² | Étage : 2ème |
| 1x Salle | 10.69 m² | Étage : 3ème |
| 1x Local technique | 1.78 m² | Étage : 3ème |
| 1x Terrasse | 31.3 m² | Étage : 3ème |
Prestations
Bâtiment & Copropriété
| Bâtiment |
|---|
-
Construit en : 2020
-
Type : Bloc de béton
-
Nombre d'étages : 3
-
Niveau de qualité : Luxe
| Copropriété |
|---|
Procédure en cours : Non
Rencontrez votre agence
Simulateur de financement
Calculez le montant des mensualités de votre prêt immobilier correspondant à l'emprunt que vous souhaitez effectuer.
Prix du bien HAI
2 490 000 €
€
par mois
Vous devez vendre pour acheter ?
Nos consultants immobiliers se tiennent à votre disposition pour réaliser une estimation de la valeur de votre bien. Toutes nos estimations sont offertes.
Je fais estimer mon bienUn lieu de vie à votre image
Junot vous fait visiter les quartiers dans lesquels nos agences vous accueillent, et vous présente les spécificités et bonnes adresses.
Parcourir les quartiers













