Faisons un tour d'horizon
Référence de l’annonce : 2809WAGBER
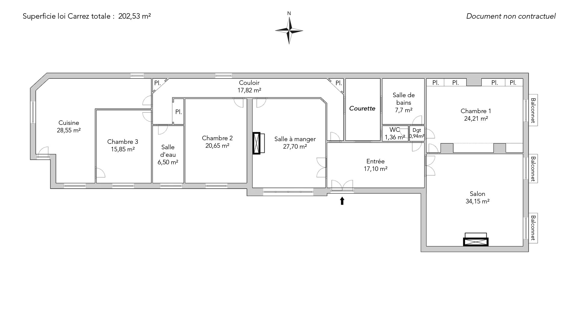
RARE - Au cœur du quartier de l'OCDE, proche du jardin du Ranelagh, dans une élégante copropriété de standing sécurisée avec gardien, situé au quatrième et dernier étage, cet appartement de 202,53m² se distingue par son plan modulable et une belle hauteur sous plafond de 3,12m.
La galerie d'entrée dessert un agréable séjour, une vaste salle à manger, une cuisine dînatoire, puis l'espace nuit avec trois chambres (possible de créer une quatrième chambre), des toilettes séparées.
Une cave complète cette offre.
Possibilité d'acquérir une chambre de service en supplément.
- Habitable : 202,53 m²
- 5 pièces
- 3 chambres
- 2 salles de bains
- Étage 4/5
- Cheminée
- Exposition Nord-ouest
- Excellent état
Ce qui nous séduit
- Adresse très recherchée
- Dernier étage
- Gardien
- Lumineux
- Calme
- Traversant
- Ascenseur
- Cave
- Vue dégagée
On vous en dit plus
Réglementations & éléments financiers
Les informations sur les risques auxquels ce bien est exposé sont disponibles sur le site Géorisques : www.georisques.gouv.fr
| Diagnostics |
|---|
Consommation énergie finale : E - 303 kWh/m²/an.
Montant estimé des dépenses annuelles d’énergie pour un usage standard : entre 5 010,00 € et 6 790,00 € /an (abonnement compris).
Prix moyen des énergies indexées au 01/01/2023.
| Éléments financiers |
|---|
Détails de l’intérieur & de l’extérieur
| Pièce | Surface | Détail |
|---|---|---|
| 1x Cave | Étage : Sous-sol | |
| 1x Entrée | 17.1 m² | Étage : 4ème |
| 1x Salon | 34.15 m² |
Étage : 4ème Plafond : 3.12m |
| 1x Salle à manger | 27.7 m² |
Étage : 4ème Plafond : 3.12m |
| 1x Chambre | 24.21 m² | Étage : 4ème |
| 1x Dégagement | 0.94 m² | Étage : 4ème |
| 1x Salle de bains | 7.7 m² | Étage : 4ème |
| 1x Toilettes | 1.36 m² | Étage : 4ème |
| 1x Couloir | 17.82 m² | Étage : 4ème |
| 1x Chambre | 20.65 m² | Étage : 4ème |
| 1x Chambre | 15.85 m² | Étage : 4ème |
| 1x Cuisine | 28.55 m² | Étage : 4ème |
| 1x Salle de bains | 6.5 m² | Étage : 4ème |
| 1x Débarras | Étage : 5ème |
Prestations
Bâtiment & Copropriété
| Bâtiment |
|---|
-
Construit en : 1925
-
Nombre d'étages : 5
-
Niveau de qualité : Standing
| Copropriété |
|---|
86 lots d'habitation
Montant moyen annuel de la quote part de charges courantes : 12 360 €
Procédure en cours : Non
Rencontrez votre agence
Simulateur de financement
Calculez le montant des mensualités de votre prêt immobilier correspondant à l'emprunt que vous souhaitez effectuer.
Prix du bien HAI
3 100 000 €
€
par mois
Vous devez vendre pour acheter ?
Nos consultants immobiliers se tiennent à votre disposition pour réaliser une estimation de la valeur de votre bien. Toutes nos estimations sont offertes.
Je fais estimer mon bienUn lieu de vie à votre image
Junot vous fait visiter les quartiers dans lesquels nos agences vous accueillent, et vous présente les spécificités et bonnes adresses.
Parcourir les quartiers











