Faisons un tour d'horizon
Référence de l’annonce : 2931MONREI
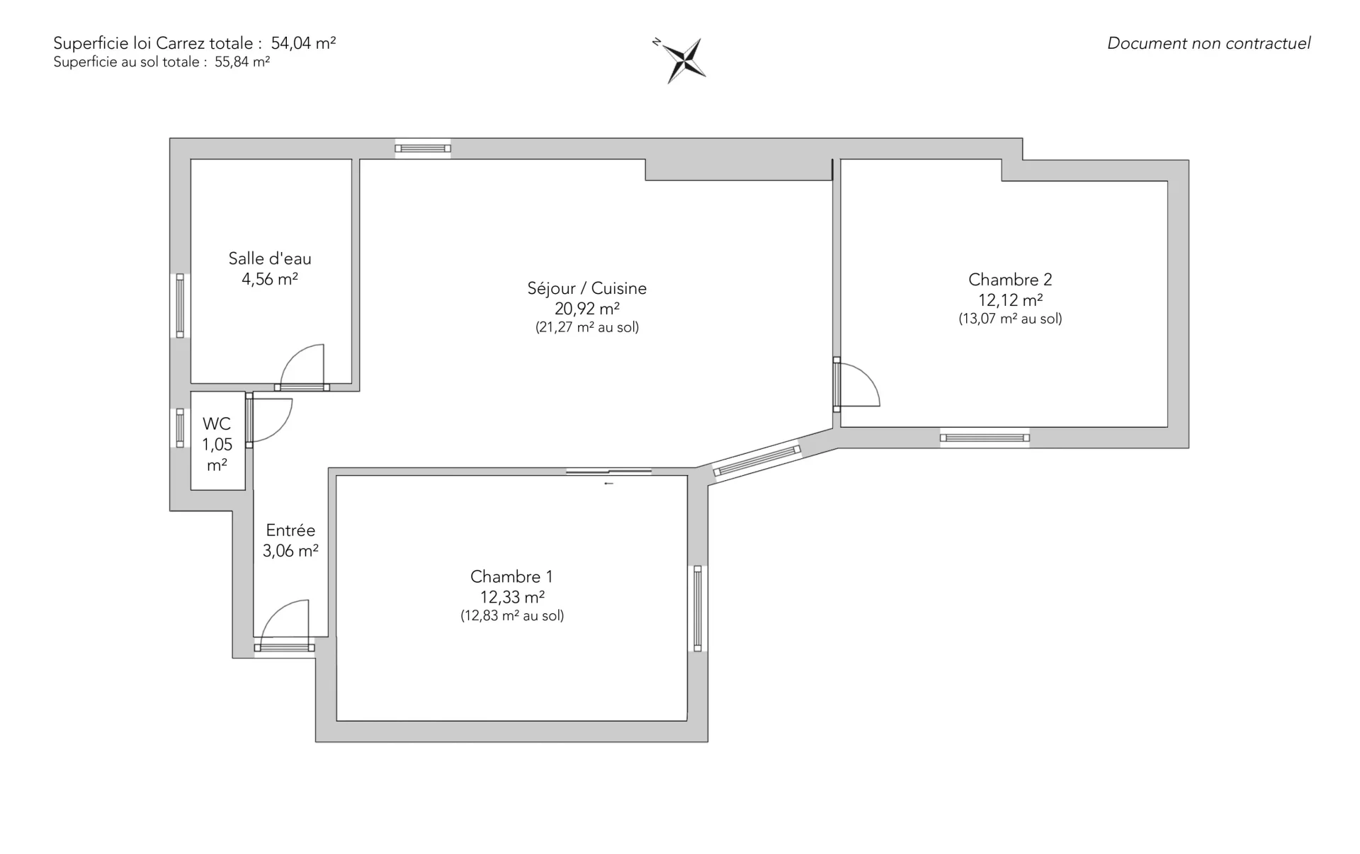
Au sein d’un bel immeuble en pierre de taille, ce bel appartement de 54,04m² loi Carrez situé au cinquième et dernier étage par ascenseur séduit par son agencement et sa belle luminosité.
Il comprend une entrée, un agréable séjour avec une cuisine ouverte, deux chambres, une salle de douche et des toilettes séparés.
L’appartement profite d’une très belle lumière et d’un agencement sans perte de place et d'un calme absolu.
Une cave complète ce bien rare.
Gardien à demeure.
- Habitable : 54,04 m² Total : 55,84 m²
- 3 pièces
- 2 chambres
- 1 salle de douche
- Exposition Sud, Sud-ouest
- Bon état
Ce qui nous séduit
- Adresse très recherchée
- Dernier étage
- Gardien
- Lumineux
- Calme
- Traversant
- Ascenseur
- Cave
- Vue dégagée
On vous en dit plus
Réglementations & éléments financiers
Les informations sur les risques auxquels ce bien est exposé sont disponibles sur le site Géorisques : www.georisques.gouv.fr
| Diagnostics |
|---|
Consommation énergie finale : E - 290 kWh/m²/an.
Logement à consommation énergétique excessive : classe G
Montant estimé des dépenses annuelles d’énergie pour un usage standard : entre 2 720,00 € et 3 710,00 € /an (abonnement compris).
Prix moyen des énergies indexées au 01/01/2023.
| Éléments financiers |
|---|
Taxe foncière : 1 473,00 € /an
Détails de l’intérieur & de l’extérieur
| Pièce | Surface | Détail |
|---|---|---|
| 1x Cave | Étage : Sous-sol | |
| 1x Entrée | 3.06 m² | Étage : 5ème |
| 1x Toilettes | 1.05 m² | Étage : 5ème |
| 1x Salle de douche | 4.56 m² | Étage : 5ème |
| 1x Séjour/cuisine | 20.92 m² |
Étage : 5ème Exposition : Sud-ouest Revêtement : Parquet |
| 1x Chambre | 12.33 m² |
Étage : 5ème Exposition : Sud-est |
| 1x Chambre | 12.12 m² |
Étage : 5ème Exposition : Sud-ouest |
Prestations
Bâtiment & Copropriété
| Bâtiment |
|---|
-
Construit en : 1900
-
Nombre d'étages : 5
-
Niveau de qualité : Standing
| Copropriété |
|---|
103 lots d'habitation
Montant moyen annuel de la quote part de charges courantes : 2 080 €
Procédure en cours : Non
Rencontrez votre agence
Simulateur de financement
Calculez le montant des mensualités de votre prêt immobilier correspondant à l'emprunt que vous souhaitez effectuer.
Prix du bien HAI
675 000 €
€
par mois
Vous devez vendre pour acheter ?
Nos consultants immobiliers se tiennent à votre disposition pour réaliser une estimation de la valeur de votre bien. Toutes nos estimations sont offertes.
Je fais estimer mon bienUn lieu de vie à votre image
Junot vous fait visiter les quartiers dans lesquels nos agences vous accueillent, et vous présente les spécificités et bonnes adresses.
Parcourir les quartiers












