Faisons un tour d'horizon
Référence de l’annonce : 2267PASCAS
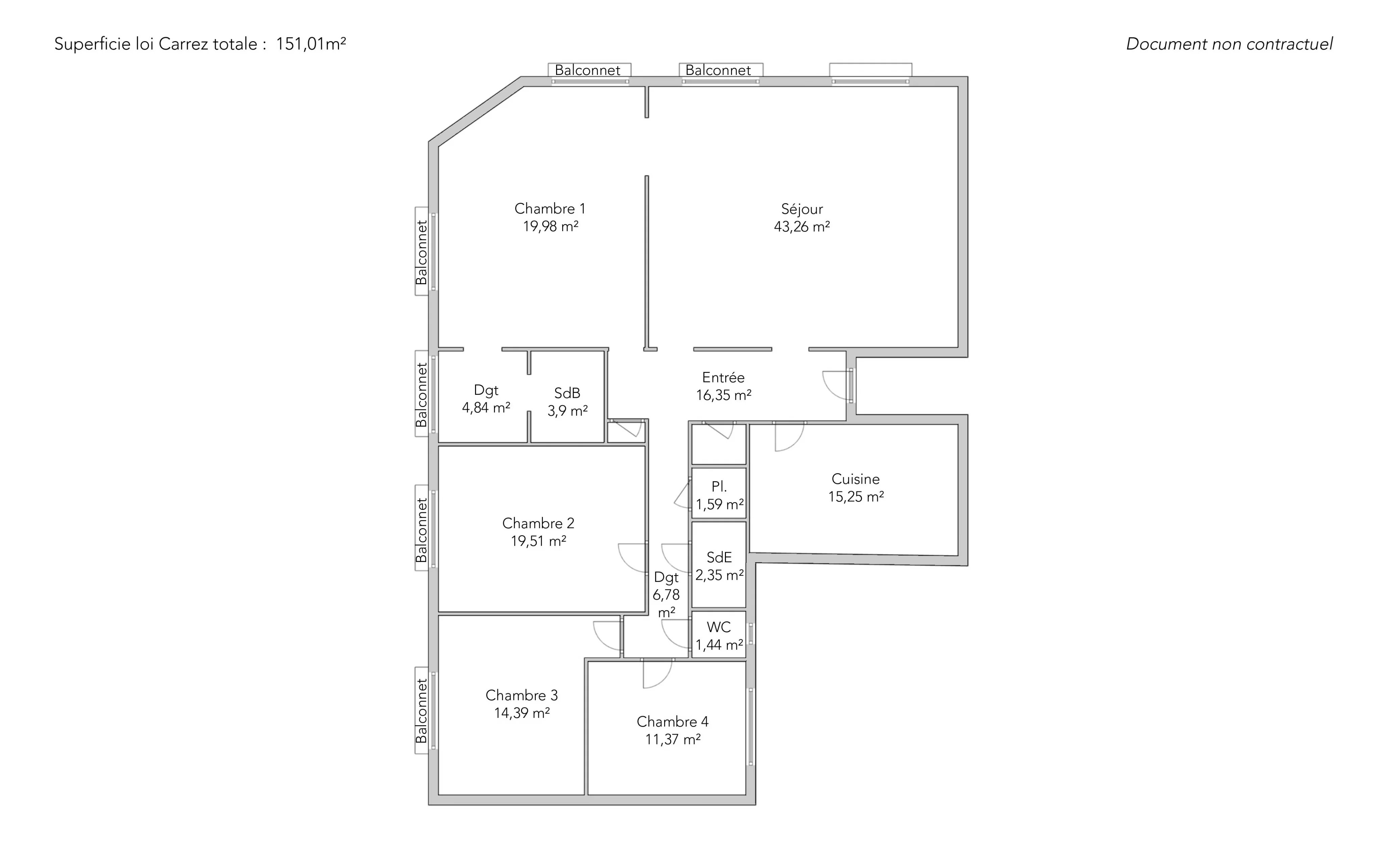
Dans une rue calme à deux pas du village d'Auteuil, au deuxième étage avec ascenseur, charmant appartement familial et de réception de 161,01m² loi Carrez.
Composé de six pièces, il offre un espace de réception généreux et lumineux, une cuisine indépendante dinatoire, quatre chambres, une salle de bains, une salle de douche et des toilettes indépendantes.
L'appartement a conservé ses éléments d'origines, parquet, moulures et cheminées.
Une cave complète ce bien.
Proximité immédiate des commerces, transports et écoles.
- Habitable : 161,01 m²
- 6 pièces
- 4 chambres
- 1 salle de bains
- 1 salle de douche
- Étage 2/6
- Cheminée
- Exposition Ouest, Sud
- À rafraîchir
Ce qui nous séduit
- Lumineux
- Calme
- Traversant
- Ascenseur
- Cave
- Vue dégagée
On vous en dit plus
Réglementations & éléments financiers
Les informations sur les risques auxquels ce bien est exposé sont disponibles sur le site Géorisques : www.georisques.gouv.fr
| Diagnostics |
|---|
Consommation énergie finale : E - 269 kWh/m²/an.
Montant estimé des dépenses annuelles d’énergie pour un usage standard : entre 3 790,00 € et 5 140,00 € /an (abonnement compris).
Prix moyen des énergies indexées au 01/01/2021.
| Éléments financiers |
|---|
Détails de l’intérieur & de l’extérieur
| Pièce | Surface | Détail |
|---|---|---|
| 1x Cave | ||
| 1x Entrée | 16.35 m² | Étage : 2ème |
| 1x Séjour | 43.26 m² |
Étage : 2ème Plafond : 3.12m |
| 1x Chambre | 19.51 m² | Étage : 2ème |
| 1x Chambre | 19.98 m² | Étage : 2ème |
| 1x Cuisine | 15.25 m² | Étage : 2ème |
| 1x Chambre | 14.39 m² | Étage : 2ème |
| 1x Chambre | 11.37 m² | Étage : 2ème |
| 1x Salle de bains | 3.9 m² | Étage : 2ème |
| 1x Salle de douche | 2.35 m² | Étage : 2ème |
| 1x Toilettes | 1.44 m² | Étage : 2ème |
| 1x Dégagement | 6.78 m² | Étage : 2ème |
| 1x Dégagement | 4.84 m² | Étage : 2ème |
| 1x Placard | 1.59 m² | Étage : 2ème |
Prestations
Bâtiment & Copropriété
| Bâtiment |
|---|
-
Construit en : 1920
-
Nombre d'étages : 6
| Copropriété |
|---|
8 lots d'habitation
Montant moyen annuel de la quote part de charges courantes : 5 760 €
Procédure en cours : Non
Rencontrez votre agence
Simulateur de financement
Calculez le montant des mensualités de votre prêt immobilier correspondant à l'emprunt que vous souhaitez effectuer.
Prix du bien HAI
1 940 000 €
€
par mois
Vous devez vendre pour acheter ?
Nos consultants immobiliers se tiennent à votre disposition pour réaliser une estimation de la valeur de votre bien. Toutes nos estimations sont offertes.
Je fais estimer mon bienUn lieu de vie à votre image
Junot vous fait visiter les quartiers dans lesquels nos agences vous accueillent, et vous présente les spécificités et bonnes adresses.
Parcourir les quartiers













