• Exclusivité
  • Nouveau

Maison
Mons-en-Barœul - VIEUX MONS

599 000 €

Honoraires à la charge du vendeur

Barème des prestations Simuler votre financement

Ce bien vous plaît ?

Faisons un tour d'horizon

Référence de l’annonce : 950JLIVAN

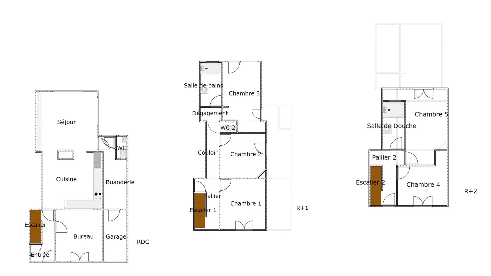
Située dans le secteur recherché du Vieux Mons, dans une rue calme et résidentielle, cette maison de 135m² bénéficie d’un emplacement idéal à proximité immédiate des écoles, des gares, du métro et des principaux axes autoroutiers. Entièrement rénovée par un architecte, cette maison de caractère allie harmonieusement le charme de l’ancien et le confort contemporain. Les matériaux soigneusement sélectionnés, dont de beaux parquets, apportent chaleur et élégance aux espaces. Le rez-de-chaussée s’ouvre sur une magnifique pièce de vie d’environ 35m², très lumineuse, avec cuisine ouverte. Cet espace convivial donne directement sur un agréable jardin sans aucun vis-à-vis. Une buanderie ainsi qu’un WC complètent ce niveau. Le premier étage accueille deux chambres ainsi qu’une suite parentale avec vue sur le jardin, une salle de bain et un WC séparé. Le second étage propose deux chambres supplémentaires ainsi qu’une salle de douche. Un garage et une cave vient parfaire ce bien. Une véritable pépite clé en main, idéale pour une famille souhaitant profiter d’un cadre de vie paisible à proximité immédiate de toutes les commodités. Faibles consommations énergétiques.

  • Habitable : 134,67 m²
  • 7 pièces
  • 5 chambres
  • 2 salles de douche
  • Exposition Nord-ouest
  • Bon état

Ce qui nous séduit

  • Balcon/Terrasse
  • Jardin
  • Garage
  • Lumineux
  • Traversant
  • Cave
  • Vue dégagée

On vous en dit plus

Réglementations & éléments financiers

Les informations sur les risques auxquels ce bien est exposé sont disponibles sur le site Géorisques : www.georisques.gouv.fr


Diagnostics

DPE Graph GES Graph

Consommation énergie finale : C - 149 kWh/m²/an.
Montant estimé des dépenses annuelles d’énergie pour un usage standard : entre 1 470,00 € et 2 000,00 € /an (abonnement compris).
Prix moyen des énergies indexées au 01/01/2021.


Éléments financiers

Taxe foncière : 1 114,00 € /an

Détails de l’intérieur & de l’extérieur

Pièce Surface Détail
1x Jardin 120 m²
Exposition : Nord-ouest
1x Garage
1x Terrasse 30 m²
1x Cave Étage : -1
1x Entrée 4.6 m² Étage : Rez-de-chaussée
Exposition : Sud-ouest
Revêtement : Carreau ciment
1x Séjour/cuisine 16.4 m² Étage : Rez-de-chaussée
Exposition : Nord-ouest
Revêtement : Parquet
1x Salon 18.5 m² Étage : Rez-de-chaussée
Exposition : Nord-ouest
Revêtement : Parquet
1x Bureau 11.9 m² Étage : Rez-de-chaussée
Exposition : Sud-ouest
Revêtement : Parquet
1x Toilettes 1 m² Étage : Rez-de-chaussée
Exposition : Est
Revêtement : Parquet
1x Buanderie 8.4 m² Étage : Rez-de-chaussée
Exposition : Est
Revêtement : Carrelage
1x Palier 8.6 m² Étage : 1er
Exposition : Ouest
Revêtement : Parquet
1x Chambre 12.02 m² Étage : 1er
Exposition : Sud
Revêtement : Parquet
1x Chambre 8.5 m² Étage : 1er
Exposition : Est
Revêtement : Parquet
1x Chambre 13.6 m² Étage : 1er
Exposition : Nord-ouest
Revêtement : Moquette
1x Toilettes 1.5 m² Étage : 1er
Exposition : Est
Revêtement : Parquet
1x Salle de douche 5.2 m² Étage : 1er
Exposition : Nord-ouest
Revêtement : Carrelage
1x Palier 3.3 m² Étage : 2ème
Exposition : Ouest
Revêtement : Parquet
1x Chambre 9.2 m² Étage : 2ème
Exposition : Sud
Revêtement : Parquet
1x Chambre 11.3 m² Étage : 2ème
Exposition : Nord-ouest
Revêtement : Parquet
1x Salle de douche 2.6 m² Étage : 2ème
Exposition : Nord-ouest
Revêtement : Carrelage

Prestations

☑ Internet
☑ Double vitrage
☑ Aspiration centralisée
☑ Volets roulants électriques
☑ Fibre optique

Bâtiment

Bâtiment
  • Construit en : 1930
  • Niveau de qualité : Normal

Rencontrez votre consultant

Simulateur de financement

Calculez le montant des mensualités de votre prêt immobilier correspondant à l'emprunt que vous souhaitez effectuer.

Prix du bien HAI

599 000 €

Ce calcul prend en compte des droits d'enregistrement de 7 %.

par mois

Ceci est une simulation, seule votre banque peut vous donner une valeur précise. Nos consultants sont à votre disposition pour vous accompagner.
Être recontacté

Ces biens pourraient aussi vous intéresser

    Vous devez vendre pour acheter ?

    Nos consultants immobiliers se tiennent à votre disposition pour réaliser une estimation de la valeur de votre bien. Toutes nos estimations sont offertes.

    Je fais estimer mon bien

    Un lieu de vie à votre image

    Junot vous fait visiter les quartiers dans lesquels nos agences vous accueillent, et vous présente les spécificités et bonnes adresses.

    Parcourir les quartiers
Je souhaite visiter
Souhaitez-vous vraiment quitter la page ?
Souhaitez-vous vraiment quitter la page ?
Souhaitez-vous vraiment quitter la page ?
Souhaitez-vous vraiment quitter la page ?
Souhaitez-vous vraiment quitter la page ?
Souhaitez-vous vraiment quitter la page ?
Souhaitez-vous vraiment quitter la page ?
Souhaitez-vous vraiment quitter la page ?
Souhaitez-vous vraiment quitter la page ?
Souhaitez-vous vraiment quitter la page ?
Souhaitez-vous vraiment quitter la page ?