Let's take an overview
Ad reference : 3327BTLVIL
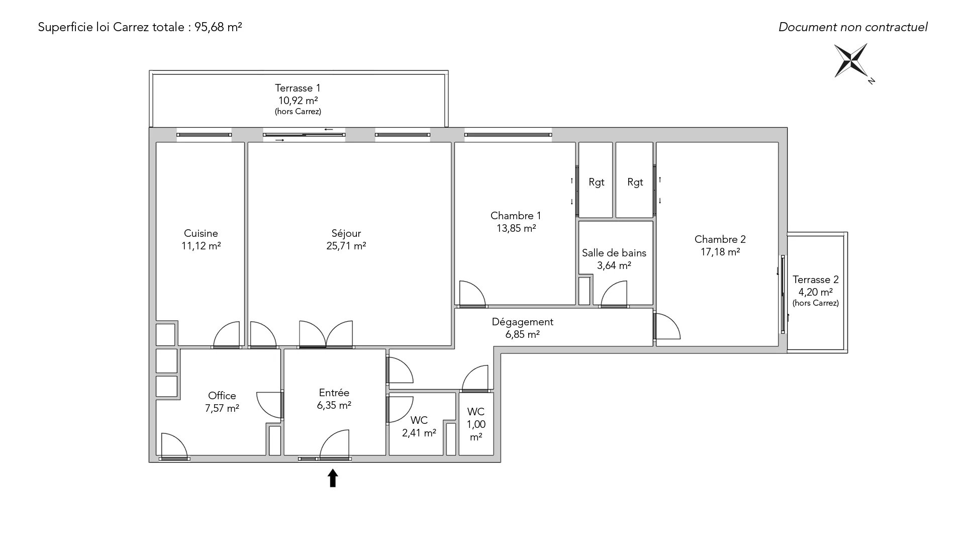
95.68sqm Carrez law apartment in a well-constructed 1970s residence, located on the second floor with elevator. It comprises a bright living room, a fully-equipped kitchen, two comfortable bedrooms, a bathroom and two separate toilets. The living room opens onto a large balcony facing south-west, and one of the bedrooms also benefits from a balcony facing north-west. This apartment offers a pleasant, functional living environment. A cellar completes this property. Possibility of acquiring a parking space accessible by elevator.
- Habitable : 1 033,33 Sq Ft
- 3 rooms
- 2 bedrooms
- 1 bathroom
- Floor 2/10
- Orientation West, South
- Good condition
What seduced us
- Balcony/Terrace
- Guardian
- Luminous
- Calm
- Elevator
We say more
Regulations & financial information
Information on the risks to which this property is exposed is available on the Géorisques website. : www.georisques.gouv.fr
| Diagnostics |
|---|
Final energy consumption : C - 150 kWh/m²/an.
Estimated annual energy costs for standard use: between 1 020,00 € and 1 400,00 € /year (including subscription).
Average energy price indexed to 01/01/2021.
| Financial elements |
|---|
Property tax : 2 716,00 € /an
Interior & exterior details
| Room | Surface | Detail |
|---|---|---|
| 1x Entrance |
Floor : 2nd Coating : Carpet Ceiling : 2.52m |
|
| 1x Double reception |
Floor : 2nd Exposure : Ouest, Sud Coating : Carpet Ceiling : 2.52m |
|
| 1x Stock/Reserve |
Floor : 2nd Coating : Floor tile Ceiling : 2.52m |
|
| 1x Kitchen |
Floor : 2nd Exposure : Ouest, Sud Coating : Floor tile Ceiling : 2.52m |
|
| 1x Clearance |
Floor : 2nd Coating : Carpet Ceiling : 2.52m |
|
| 1x Bathroom |
Floor : 2nd Coating : Floor tile Ceiling : 2.52m |
|
| 1x Bathroom |
Floor : 2nd Coating : Floor tile Ceiling : 2.52m |
|
| 1x Bedroom |
Floor : 2nd Exposure : Ouest, Sud Coating : Carpet Ceiling : 2.52m |
|
| 1x Bedroom |
Floor : 2nd Exposure : North West Coating : Carpet Ceiling : 2.52m |
|
| 1x Bathroom |
Floor : 2nd Coating : Marble Ceiling : 2.52m |
|
| 1x Balcony |
Floor : 2nd Exposure : Ouest, Sud Coating : Floor tile |
|
| 1x Balcony |
Floor : 2nd Exposure : North West |
Services
Building & Co-ownership
| Building |
|---|
-
Built in : 1973
-
Type : Concrete
-
Number of floors : 10
-
Quality level : Standing
| Co-ownership |
|---|
Average annual amount of the share of current charges : 4 836 €
Procedure in progress : Non
Meet your agency
Simulator financing
Calculate the amount of the monthly payments on your home loan corresponding to the loan you wish to make.
FAI property price
1 370 000 €
€
per month
Do you have to sell to buy?
Our real estate consultants are at your disposal to estimate the value of your property. All our estimates are free of charge.
Estimate my propertyA living space to suit you
Junot takes you on a tour of the neighborhoods in which our agencies welcome you, and presents the specific features and good addresses.
Explore the neighborhoods











