Let's take an overview
Ad reference : 3475BREHUC
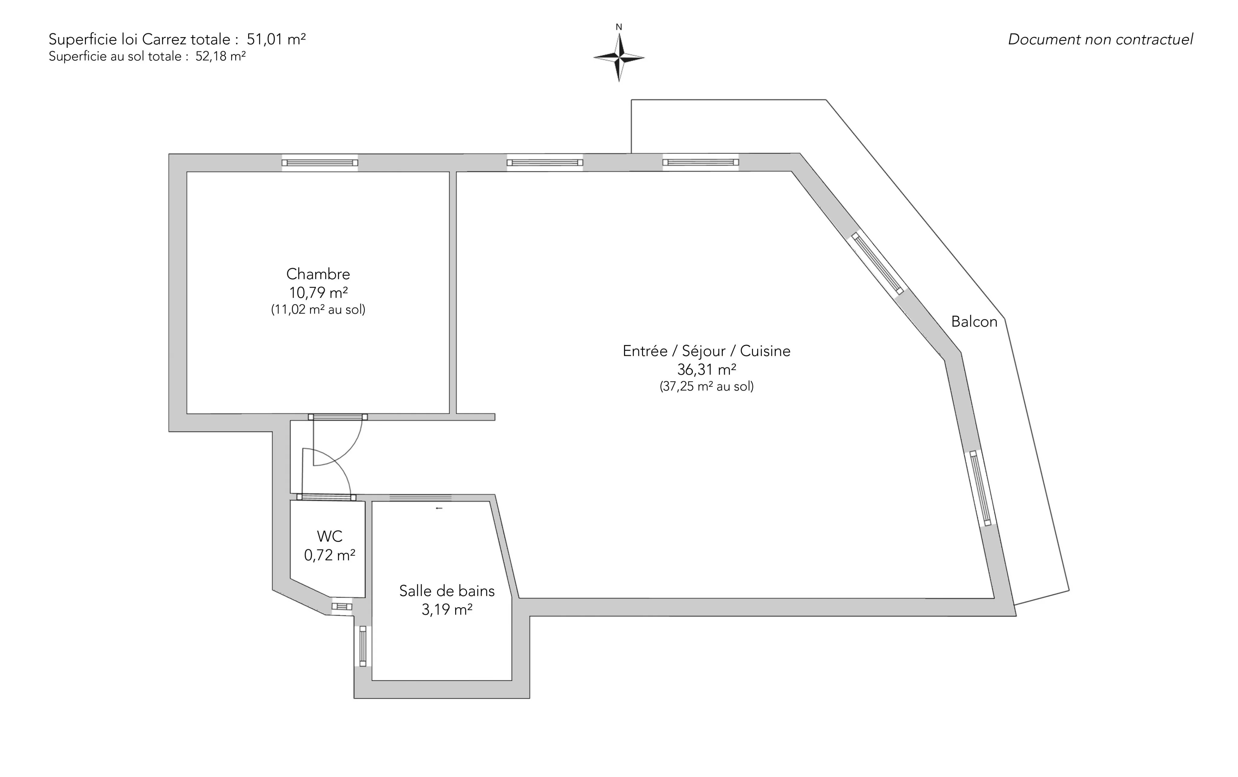
Located on the second floor of an old building, this corner apartment has been completely renovated with beautiful materials and has a surface area of 51.01sqm loi Carrez (56.09sqm on the ground). It comprises an entrance hall, a beautiful 37m² living room with four windows leading to a 3.91m² balcony, a fitted and equipped kitchen, a bedroom with large dressing room, a shower room and separate toilet. The old-world charm has been preserved (parquet flooring, moldings, fireplace).
Reversible hot/cold air conditioning. Soundproofing and thermal insulation. Double-glazed windows. Giant retractable screen with overhead projector.
- Habitable : 549,07 Sq Ft Total : 603,75 Sq Ft
- 2 rooms
- 1 bedroom
- 1 shower room
- Floor 2/6
- Orientation East
- Excellent condition
What seduced us
- Luminous
- Open view
We say more
Regulations & financial information
Information on the risks to which this property is exposed is available on the Géorisques website. : www.georisques.gouv.fr
| Diagnostics |
|---|
Final energy consumption : a - 66 kWh/m²/an.
Estimated annual energy costs for standard use: between 680,00 € and 930,00 € /year (including subscription).
Average energy price indexed to 01/01/2021.
| Financial elements |
|---|
Interior & exterior details
| Room | Surface | Detail |
|---|---|---|
| 1x Living room/kitchen | 390.84 Sq Ft |
Floor : 2nd Exposure : East Coating : Parquet |
| 1x Bedroom | 116.14 Sq Ft |
Floor : 2nd Coating : Parquet |
| 1x Bathroom | 34.34 Sq Ft |
Floor : 2nd Coating : Floor tile |
| 1x Bathroom | 7.75 Sq Ft |
Floor : 2nd Coating : Floor tile |
Services
Building & Co-ownership
| Building |
|---|
-
Type : Concrete
-
Number of floors : 6
-
Quality level : Standing
| Co-ownership |
|---|
13 housing lots
Procedure in progress : Non
Meet your agency
Simulator financing
Calculate the amount of the monthly payments on your home loan corresponding to the loan you wish to make.
FAI property price
768 000 €
€
per month
Do you have to sell to buy?
Our real estate consultants are at your disposal to estimate the value of your property. All our estimates are free of charge.
Estimate my propertyA living space to suit you
Junot takes you on a tour of the neighborhoods in which our agencies welcome you, and presents the specific features and good addresses.
Explore the neighborhoods













