Let's take an overview
Ad reference : 3569STGCHE
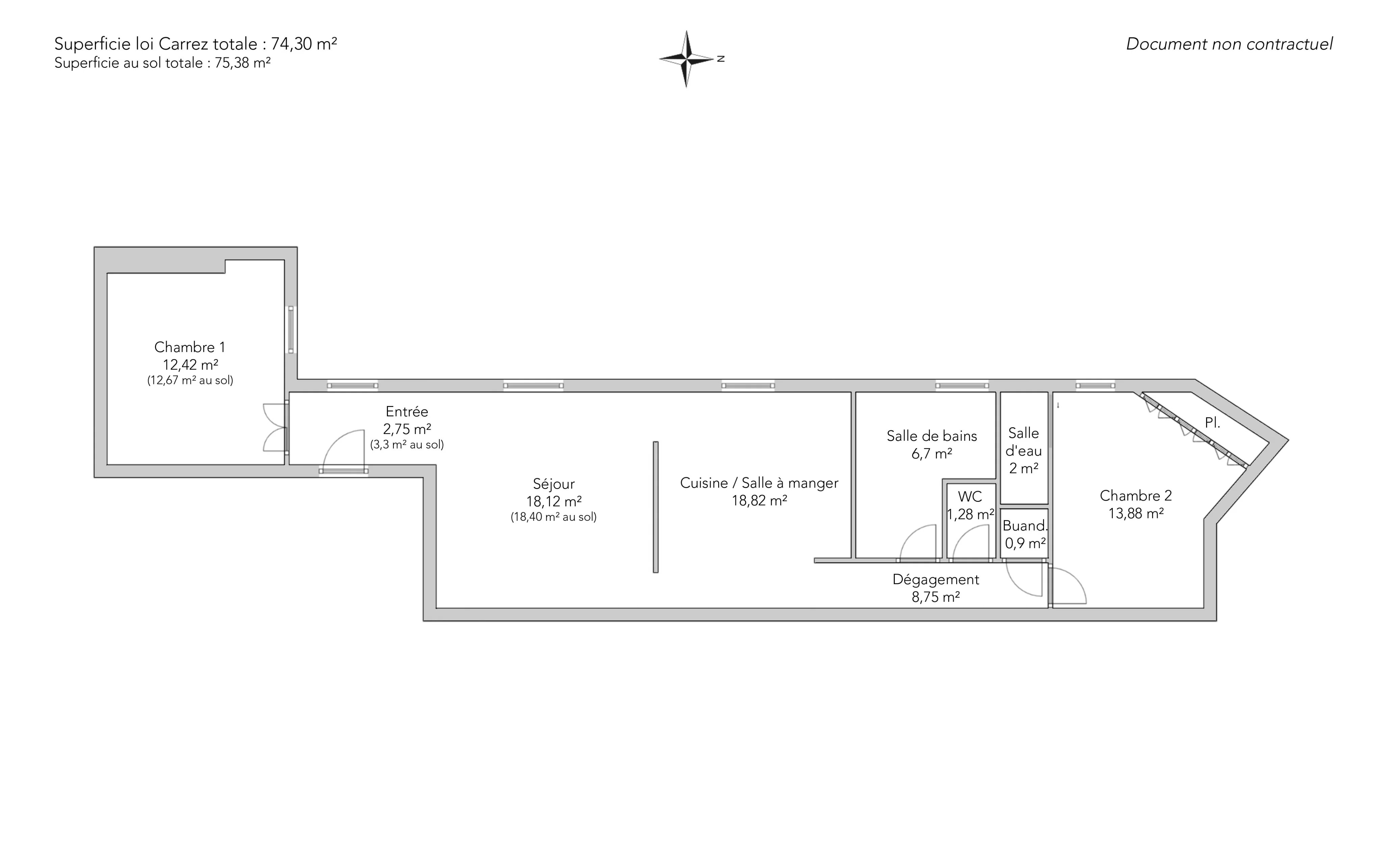
On the fifth and top floor accessible by elevator of an elegant Haussmannian stone building, this bright 74.30sqm Carrez law apartment completely renovated offers you an exceptional living environment, in the quiet of a pretty courtyard.
Entirely redesigned and restructured in February 2024, with carefully selected high-end materials — parquet flooring, custom joinery, quality fittings — to combine aesthetics and durability.
The property includes a spacious living room facing west offering beautiful volumes, a semi-open kitchen with a fully fitted custom dining area, two bedrooms including one with its own shower room, a bathroom, separate toilets, and a laundry closet. A cellar completes this offer.
EXCLUSIVE
- Habitable : 799,76 Sq Ft Total : 811,38 Sq Ft
- 4 rooms
- 2 bedrooms
- 1 bathroom
- 1 shower room
- Floor 5/6
- Orientation West
- Excellent condition
What seduced us
- Luminous
- Calm
- Elevator
- Cellar
We say more
Regulations & financial information
Information on the risks to which this property is exposed is available on the Géorisques website. : www.georisques.gouv.fr
| Diagnostics |
|---|
Final energy consumption : C - 172 kWh/m²/an.
Estimated annual energy costs for standard use: between 2 240,00 € and 3 070,00 € /year (including subscription).
Average energy price indexed to 01/01/2023.
| Financial elements |
|---|
Property tax : 1 227,00 € /an
Interior & exterior details
| Room | Surface | Detail |
|---|---|---|
| 1x Cellar |
Floor : Basement Coating : Clay |
|
| 1x Entrance | 29.6 Sq Ft |
Floor : 5th Coating : Parquet |
| 1x Stay | 195.04 Sq Ft |
Floor : 5th Coating : Parquet |
| 1x Kitchen | 148.76 Sq Ft |
Floor : 5th Coating : Parquet |
| 1x Bedroom | 133.69 Sq Ft |
Floor : 5th Coating : Parquet |
| 1x Bedroom | 145.96 Sq Ft |
Floor : 5th Coating : Parquet |
| 1x Bathroom | 61.35 Sq Ft |
Floor : 5th Coating : Floor tile |
| 1x Bathroom | 21.53 Sq Ft |
Floor : 5th Coating : Floor tile |
| 1x Laundry room | 9.69 Sq Ft |
Floor : 5th Coating : Floor tile |
| 1x Bathroom | 13.78 Sq Ft |
Floor : 5th Coating : Floor tile |
| 1x Clearance | 40.36 Sq Ft |
Floor : 5th Coating : Parquet |
Services
Building & Co-ownership
| Building |
|---|
-
Built in : 1890
-
Type : cut stone
-
Number of floors : 6
| Co-ownership |
|---|
60 housing lots
Average annual amount of the share of current charges : 2 520 €
Procedure in progress : Non
Meet your agency
Simulator financing
Calculate the amount of the monthly payments on your home loan corresponding to the loan you wish to make.
FAI property price
1 050 000 €
€
per month
Do you have to sell to buy?
Our real estate consultants are at your disposal to estimate the value of your property. All our estimates are free of charge.
Estimate my propertyA living space to suit you
Junot takes you on a tour of the neighborhoods in which our agencies welcome you, and presents the specific features and good addresses.
Explore the neighborhoods






