Let's take an overview
Ad reference : 2030CHMSAR
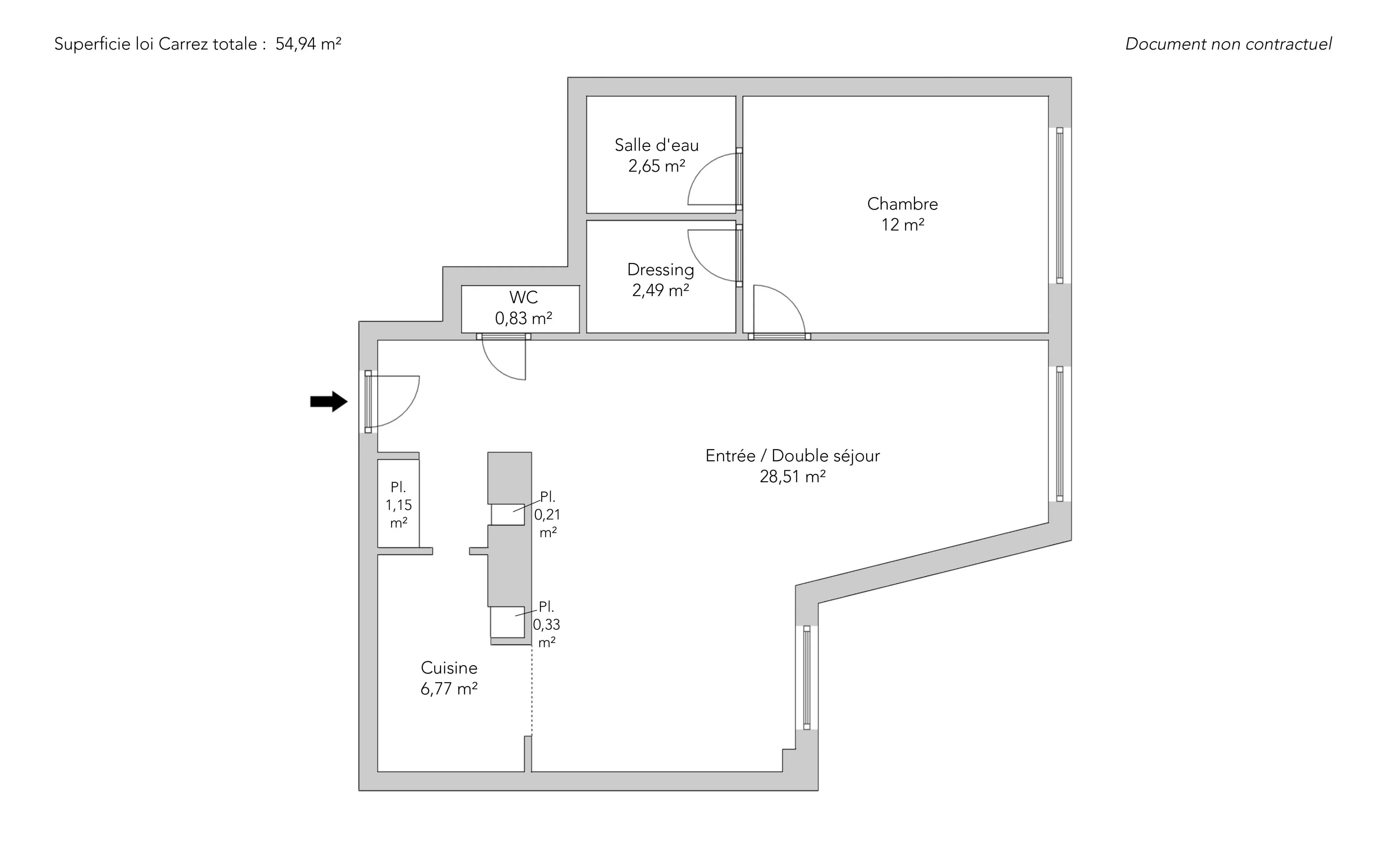
Located in the Grenelle district, within the Mars Tower, a secure residence with elevators, this 54.94sqm Carrez law apartment is on the 15th floor and offers spectacular views of the Eiffel Tower.
In perfect condition, it benefits from a fluid and optimized distribution. The living room, extended by a dining area, fully enjoys the view and brightness. A fully equipped kitchen, a bedroom with a dressing room, a shower room, and separate toilets complete the ensemble.
Bathed in light and open to an iconic panorama, this apartment offers a rare living environment on an upper floor.
A cellar and a parking space complete this offer, currently rented until January 15, 2027.
- Habitable : 591,37 Sq Ft
- 2 rooms
- 1 bedroom
- 1 shower room
- Floor 15/30
- Orientation East
- Excellent condition
What seduced us
- Exceptional view
- Guardian
- Historical monument view
- Luminous
- Calm
- Car park
- Elevator
- Cellar
- Open view
We say more
Regulations & financial information
Information on the risks to which this property is exposed is available on the Géorisques website. : www.georisques.gouv.fr
| Diagnostics |
|---|
Final energy consumption : a - 262 kWh/m²/an.
Estimated annual energy costs for standard use: between 1 160,00 € and 1 630,00 € /year (including subscription).
Average energy price indexed to 01/01/2023.
| Financial elements |
|---|
Property tax : 1 898,00 € /an
Interior & exterior details
| Room | Surface | Detail |
|---|---|---|
| 1x Cellar | Floor : Basement | |
| 1x Car park | Floor : Basement | |
| 1x Stay | 306.88 Sq Ft |
Floor : 15th Exposure : East |
| 1x Closet | 12.38 Sq Ft | Floor : 15th |
| 1x Closet | 2.26 Sq Ft | Floor : 15th |
| 1x Closet | 3.55 Sq Ft | Floor : 15th |
| 1x Kitchen | 72.87 Sq Ft | Floor : 15th |
| 1x Bathroom | 8.93 Sq Ft | Floor : 15th |
| 1x Bedroom | 129.17 Sq Ft |
Floor : 15th Exposure : East |
| 1x Dressing room | 26.8 Sq Ft | Floor : 15th |
| 1x Bathroom | 28.52 Sq Ft | Floor : 15th |
Services
Building & Co-ownership
| Building |
|---|
-
Built in : 1972
-
Type : Reinforced concrete
-
Number of floors : 30
-
Quality level : Standing
| Co-ownership |
|---|
378 housing lots
Average annual amount of the share of current charges : 2 724 €
Procedure in progress : Non
Meet your agency
Simulator financing
Calculate the amount of the monthly payments on your home loan corresponding to the loan you wish to make.
FAI property price
650 000 €
€
per month
Do you have to sell to buy?
Our real estate consultants are at your disposal to estimate the value of your property. All our estimates are free of charge.
Estimate my propertyA living space to suit you
Junot takes you on a tour of the neighborhoods in which our agencies welcome you, and presents the specific features and good addresses.
Explore the neighborhoods











