Let's take an overview
Ad reference : 262COMGOZ
In the heart of the Ternes district, on the fifth floor serviced by a lift in a completely renovated building, whose impeccable common areas reflect the high standards of this address.
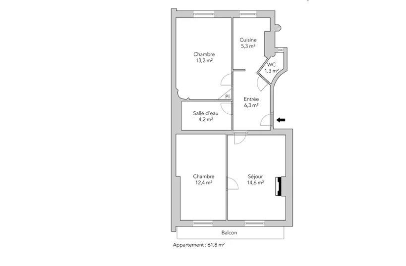
This 61.80 m² Carrez law apartment, with a 4.60 m² balcony, offers an unobstructed view of the neighborhood and exceptional brightness, for a living style true to the Parisian splendor.
The entrance leads to a living room open to the balcony, a kitchen, and a sleeping area composed of bedrooms with storage.
Close to shops, schools, and transportation in the 17th arrondissement.
- Habitable : 665,21 Sq Ft
- 3 rooms
- suite
- Floor 5/6
- Good condition
What seduced us
- Elevator
- Open view
We say more
Regulations & financial information
Information on the risks to which this property is exposed is available on the Géorisques website. : www.georisques.gouv.fr
| Diagnostics |
|---|
Final energy consumption : a - 189 kWh/m²/an.
Estimated annual energy costs for standard use: between 1 140,00 € and 1 580,00 € /year (including subscription).
Average energy price indexed to 01/01/2023.
| Financial elements |
|---|
Services
Building & Co-ownership
| Building |
|---|
-
Built in : 1880
-
Number of floors : 6
| Co-ownership |
|---|
Procedure in progress : Non
Meet your agency
Simulator financing
Calculate the amount of the monthly payments on your home loan corresponding to the loan you wish to make.
FAI property price
911 000 €
€
per month
Do you have to sell to buy?
Our real estate consultants are at your disposal to estimate the value of your property. All our estimates are free of charge.
Estimate my propertyA living space to suit you
Junot takes you on a tour of the neighborhoods in which our agencies welcome you, and presents the specific features and good addresses.
Explore the neighborhoods










