
Junot Immeubles, Locaux professionnels, Viager & Nue-propriété
47 bis, avenue Bosquet - 75007 Paris 7e Découvrir l'agenceRéférence de l’annonce : 136COMDHA
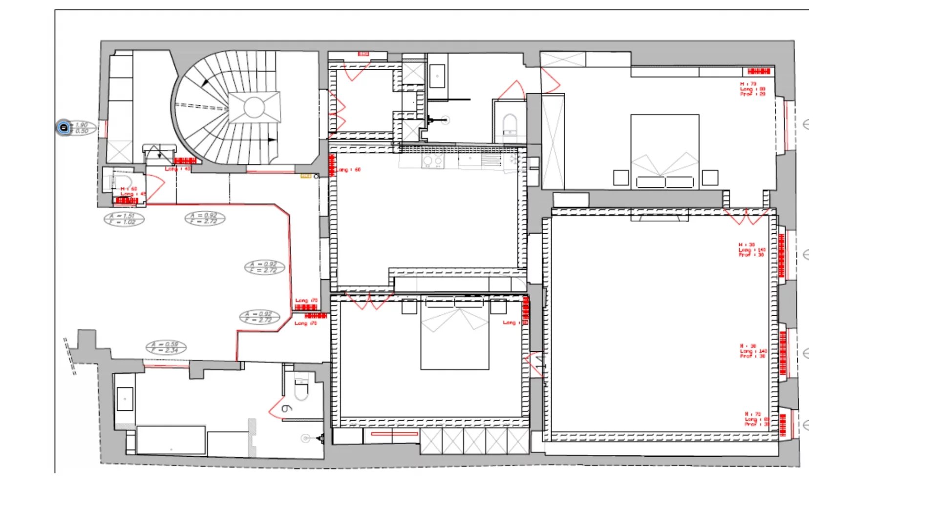
Situé dans l'un des quartiers les plus prestigieux de Paris, au deuxième étage d'un immeuble avec ascenseur, ce spacieux appartement de 148,02 m² au sol et 146,08 m² loi Carrez, a été rénové avec des matériaux haut de gamme et présente une hauteur sous plafond de 3,70 m.
Il comporte deux grandes chambres, avec salles de bains privatives, un grand séjour, une cuisine/ Salle à manger équipée, trois toilettes séparées et une buanderie.
Entièrement rénové en 2025 avec des finitions de qualité supérieure pour créer un intérieur moderne tout en conservant le charme parisien. Une cave complète cette offre.
Les informations sur les risques auxquels ce bien est exposé sont disponibles sur le site Géorisques : www.georisques.gouv.fr
Diagnostics |
---|
Éléments financiers |
---|
Pièce | Surface | Détail |
---|---|---|
1x Entrée | 5.55 m² | |
1x Placard | 0.33 m² | |
1x Salle à manger/Cuisine | 21.66 m² | |
1x Dégagement | 5.62 m² | |
1x Chambre | 22.03 m² | |
1x Dégagement | 3.17 m² | |
1x Salle de bains | 10.56 m² | |
1x Salon | 40.92 m² | |
1x Chambre | 22.31 m² | |
1x Toilettes | 1.21 m² | |
1x Salle de douche | 5.26 m² | |
1x Toilettes | 0.98 m² | |
1x Toilettes | 0.97 m² | |
1x Débarras | 5.51 m² |
Bâtiment |
---|
Copropriété |
---|
Montant moyen annuel de la quote part de charges courantes : 6 636 €
Procédure en cours : Non
Junot Immeubles, Locaux professionnels, Viager & Nue-propriété
47 bis, avenue Bosquet - 75007 Paris 7e Découvrir l'agenceCalculez le montant des mensualités de votre prêt immobilier correspondant à l'emprunt que vous souhaitez effectuer.
Prix du bien HAI
3 645 000 €
€
par mois
Nos consultants immobiliers se tiennent à votre disposition pour réaliser une estimation de la valeur de votre bien. Toutes nos estimations sont offertes.
Je fais estimer mon bienJunot vous fait visiter les quartiers dans lesquels nos agences vous accueillent, et vous présente les spécificités et bonnes adresses.
Parcourir les quartiers