Faisons un tour d'horizon
Référence de l’annonce : 2811TERGUI
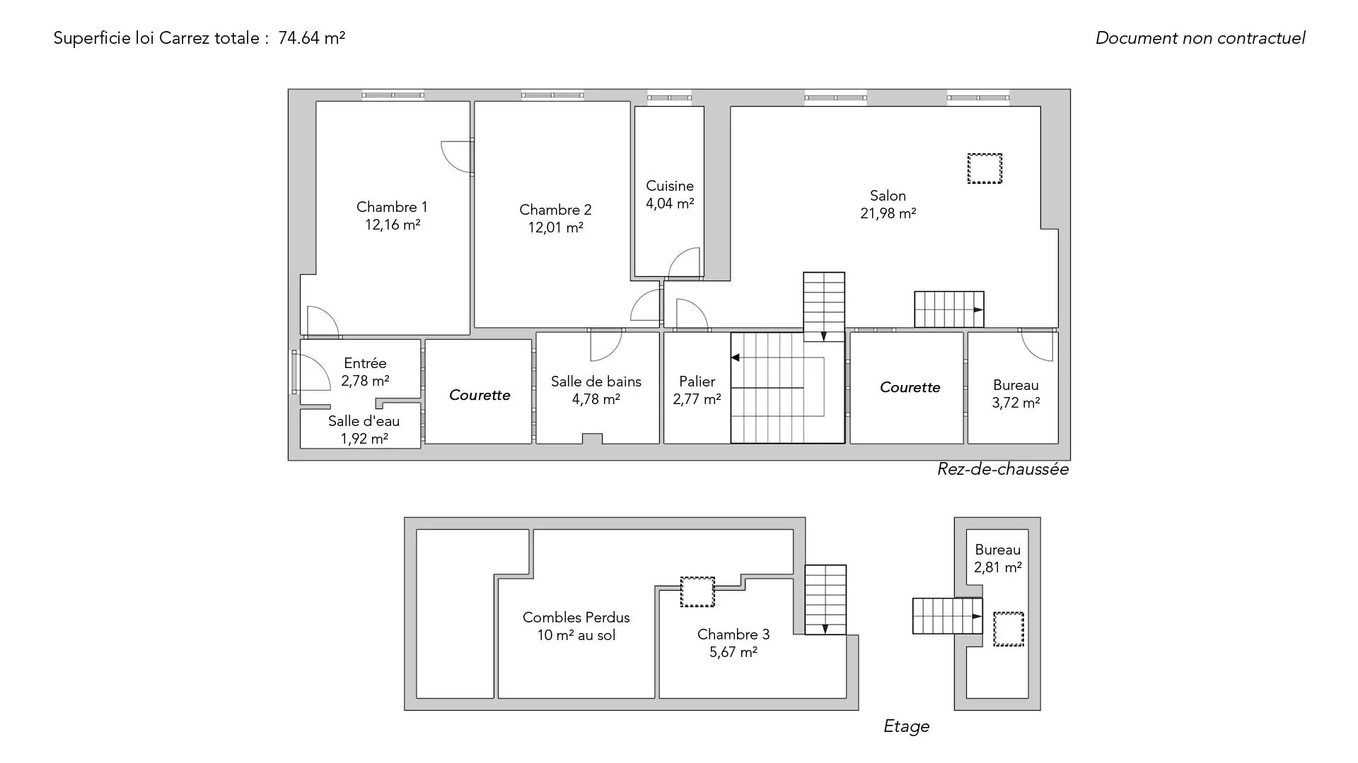
À proximité immédiate du marché Poncelet et de toutes les commodités, dans un quartier vivant et recherché, découvrez au 4ᵉ étage d’un immeuble ancien sans ascenseur un appartement rare de 108m² habitable (74,28m² loi Carrez), comme hors du temps et hors de Paris.
Traversant et baigné de lumière, il profite d’un grand calme et d’un ensoleillement exceptionnel. Le séjour séduit par sa hauteur sous plafond de 3,20m et sa lumière zénithale.
L’appartement comprend deux chambres principales, une chambre d’appoint, deux bureaux, une cuisine indépendante, une salle de bains et une salle de douche.
Appartement inspirant, il séduit par son caractère et son atmosphère unique.
Exclusivité.
- Habitable : 74,28 m² Total : 107,48 m²
- 4 pièces
- 3 chambres
- 1 salle de bains
- 1 salle de douche
- Cheminée
- Exposition Sud-ouest
- À rénover
Ce qui nous séduit
- Lumineux
- Calme
- Traversant
- Vue dégagée
On vous en dit plus
Réglementations & éléments financiers
Les informations sur les risques auxquels ce bien est exposé sont disponibles sur le site Géorisques : www.georisques.gouv.fr
| Diagnostics |
|---|
Consommation énergie finale : F - 388 kWh/m²/an.
Logement à consommation énergétique excessive : classe F
Montant estimé des dépenses annuelles d’énergie pour un usage standard : entre 2 840,00 € et 3 860,00 € /an (abonnement compris).
Prix moyen des énergies indexées au 01/01/2021.
| Éléments financiers |
|---|
Détails de l’intérieur & de l’extérieur
| Pièce | Surface | Détail |
|---|---|---|
| 1x Palier | 2.77 m² | |
| 1x Bureau | 3.72 m² | |
| 1x Bureau | 2.81 m² | |
| 1x Chambre | 5.67 m² | |
| 1x Cuisine | 4.04 m² | |
| 1x Chambre | 11.8 m² | |
| 1x Salle de bains / toilettes | 4.78 m² | |
| 1x Chambre | 12.01 m² | |
| 1x Entrée | 2.78 m² | |
| 1x Escalier | Étage : 4ème | |
| 1x Salon | 21.98 m² |
Étage : 4ème Exposition : Nord, Sud Revêtement : Parquet Plafond : 3.3m |
| 1x Salle de douche / toilettes | 1.92 m² | Étage : 4ème |
Prestations
Bâtiment & Copropriété
| Bâtiment |
|---|
-
Construit en : 1900
-
Type : Pierre
-
Niveau de qualité : Normal
| Copropriété |
|---|
Montant moyen annuel de la quote part de charges courantes : 1 644 €
Procédure en cours : Non
Rencontrez votre agence
Simulateur de financement
Calculez le montant des mensualités de votre prêt immobilier correspondant à l'emprunt que vous souhaitez effectuer.
Prix du bien HAI
820 000 €
€
par mois
Vous devez vendre pour acheter ?
Nos consultants immobiliers se tiennent à votre disposition pour réaliser une estimation de la valeur de votre bien. Toutes nos estimations sont offertes.
Je fais estimer mon bienUn lieu de vie à votre image
Junot vous fait visiter les quartiers dans lesquels nos agences vous accueillent, et vous présente les spécificités et bonnes adresses.
Parcourir les quartiers









