Faisons un tour d'horizon
Référence de l’annonce : 1999CHMDEP
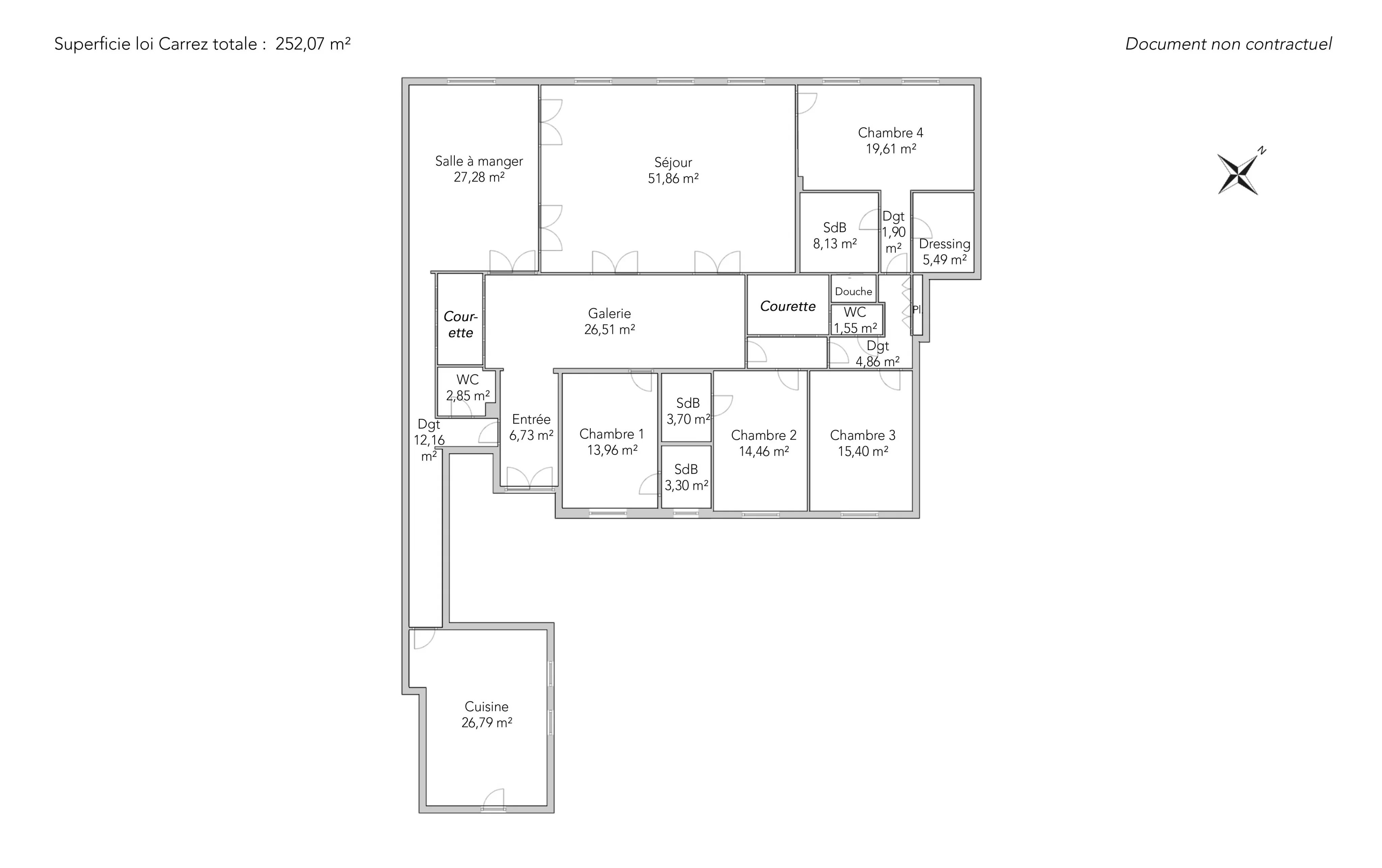
Au quatrième étage par ascenseur d’un élégant immeuble en pierre de taille de 1905, cet appartement familial et de réception de 252,07m² loi Carrez développe de magnifiques volumes dans un esprit haussmannien préservé.
Dès l’entrée, une majestueuse galerie distribue les espaces et crée une perspective remarquable. Le séjour, de plus de 50m², bénéficie d’une vue dégagée et verdoyante, offrant une luminosité constante. Moulures, cheminées, marbre d'origine aux décors soignés et hauteur sous plafond soulignent le caractère authentique de l’ensemble. Une salle à manger attenante prolonge les réceptions. La cuisine indépendante de 26,79m² permet un véritable espace dînatoire, confortable et fonctionnel.
L’espace nuit, parfaitement séparé, comprend trois premières chambres au calme sur cour dont deux avec une salle de douche privative et une suite parentale avec salle de bains et dressing. Les circulations sont fluides et la distribution particulièrement équilibrée. Deux toilettes invités compètent le plan.
Traversant, lumineux et doté de beaux volumes, cet appartement séduit par son cachet d’origine, son adresse recherchée et ses vues ouvertes sur un environnement arboré.
Un bien de caractère au cœur du 16e arrondissement, à proximité immédiate des commerces, des transports et des établissements scolaires réputés.
L'appartement est climatisé.
Une chambre de service et deux caves complètent cette offre.
- Habitable : 252,07 m²
- 7 pièces
- 4 chambres
- 3 salles de bains
- Étage 4/7
- Cheminée
- Exposition Sud-est, Nord-ouest
- Bon état
Ce qui nous séduit
- Vue exceptionnelle
- Adresse très recherchée
- Gardien
- Lumineux
- Calme
- Traversant
- Ascenseur
- Cave
- Vue dégagée
On vous en dit plus
Réglementations & éléments financiers
Les informations sur les risques auxquels ce bien est exposé sont disponibles sur le site Géorisques : www.georisques.gouv.fr
| Diagnostics |
|---|
Consommation énergie finale : a - 229 kWh/m²/an.
Montant estimé des dépenses annuelles d’énergie pour un usage standard : entre 4 800,00 € et 6 540,00 € /an (abonnement compris).
Prix moyen des énergies indexées au 01/01/2023.
| Éléments financiers |
|---|
Taxe foncière : 5 783,00 € /an
Détails de l’intérieur & de l’extérieur
| Pièce | Surface | Détail |
|---|---|---|
| 1x Chambre de service | ||
| 2x Cave | ||
| 1x Entrée | 6.73 m² | Étage : 4ème |
| 1x Galerie | 26.51 m² | Étage : 4ème |
| 1x Séjour | 51.86 m² |
Étage : 4ème Exposition : Nord-ouest |
| 1x Salle à manger | 27.28 m² |
Étage : 4ème Exposition : Nord-ouest |
| 1x Dégagement | 12.16 m² | Étage : 4ème |
| 1x Cuisine | 26.79 m² |
Étage : 4ème Exposition : Nord-est |
| 1x Chambre | 13.96 m² |
Étage : 4ème Exposition : Sud-est |
| 1x Salle de bains | 3.3 m² | Étage : 4ème |
| 1x Toilettes | 2.85 m² | Étage : 4ème |
| 1x Chambre | 14.46 m² | Étage : 4ème |
| 1x Salle de bains | 3.7 m² | Étage : 4ème |
| 1x Dégagement | 5.53 m² | Étage : 4ème |
| 1x Dégagement | 4.86 m² | Étage : 4ème |
| 1x Toilettes | 1.55 m² | Étage : 4ème |
| 1x Chambre | 15.4 m² |
Étage : 4ème Exposition : Sud-est |
| 1x Dégagement | 1.9 m² | Étage : 4ème |
| 1x Chambre | 19.61 m² |
Étage : 4ème Exposition : Nord-ouest |
| 1x Salle de bains | 8.13 m² | Étage : 4ème |
| 1x Dressing | 5.49 m² | Étage : 4ème |
Prestations
Bâtiment & Copropriété
| Bâtiment |
|---|
-
Construit en : 1905
-
Type : Pierre de taille
-
Nombre d'étages : 7
| Copropriété |
|---|
77 lots d'habitation
Montant moyen annuel de la quote part de charges courantes : 17 160 €
Procédure en cours : Non
Rencontrez votre agence
Simulateur de financement
Calculez le montant des mensualités de votre prêt immobilier correspondant à l'emprunt que vous souhaitez effectuer.
Prix du bien HAI
3 800 000 €
€
par mois
Vous devez vendre pour acheter ?
Nos consultants immobiliers se tiennent à votre disposition pour réaliser une estimation de la valeur de votre bien. Toutes nos estimations sont offertes.
Je fais estimer mon bienUn lieu de vie à votre image
Junot vous fait visiter les quartiers dans lesquels nos agences vous accueillent, et vous présente les spécificités et bonnes adresses.
Parcourir les quartiers









