Let's take an overview
Ad reference : 210COMGOZ
Located in the sought-after Flandrin sector, in the heart of an elegant, residential environment, this 7-room apartment offers a quiet, privileged living environment, in the immediate vicinity of shops and transport.
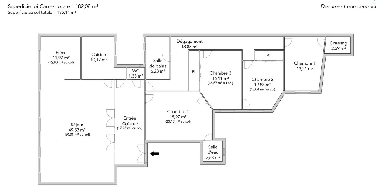
With a surface area of 182.08sqm , it comprises a large, bright reception area, a modern, fully-equipped kitchen, 4 comfortable bedrooms, 2 shower rooms and a separate toilet.
Entirely renovated with taste, the property harmoniously combines old-world charm with parquet flooring, moldings and high ceilings.
A basement cellar completes this rare apartment on the Flandrin market.
The building is perfectly maintained, with a janitor and bicycle storage, providing a secure and practical environment.
Thanks to its interior layout and 1st-floor location, this property is ideally suited to the practice of a liberal profession, while retaining the comfort of a true residential address.
A sought-after place to live, combining elegance, functionality and serenity, in one of the most distinguished districts of the 16ᵉ arrondissement.
- Habitable : 1 959,89 Sq Ft Total : 1 992,83 Sq Ft
- 5 rooms
- 4 bedrooms
- 2 bathrooms
- Fireplace
- Orientation South
- Good condition
What seduced us
- Highly sought-after address
- Calm
- Elevator
We say more
Regulations & financial information
Information on the risks to which this property is exposed is available on the Géorisques website. : www.georisques.gouv.fr
| Diagnostics |
|---|
| Financial elements |
|---|
Property tax : 3 694,00 € /an
Interior & exterior details
| Room | Surface | Detail |
|---|---|---|
| 1x Entrance | 179.54 Sq Ft | |
| 1x Stay | 533.14 Sq Ft | |
| 1x Desk | 128.84 Sq Ft | |
| 1x Kitchen | 108.93 Sq Ft | |
| 1x Bathroom | 14.32 Sq Ft | |
| 1x Clearance | 202.68 Sq Ft | |
| 1x Bathroom | 67.06 Sq Ft | |
| 1x Bedroom | 142.19 Sq Ft | |
| 1x Dressing room | 27.88 Sq Ft | |
| 1x Bedroom | 138.1 Sq Ft | |
| 1x Bedroom | 173.41 Sq Ft | |
| 1x Bedroom | 214.96 Sq Ft | |
| 1x Bathroom | 28.85 Sq Ft |
Services
Building & Co-ownership
| Building |
|---|
-
Built in : 1898
-
Quality level : Standing
| Co-ownership |
|---|
Average annual amount of the share of current charges : 7 692 €
Procedure in progress : Non
Meet your agency
Simulator financing
Calculate the amount of the monthly payments on your home loan corresponding to the loan you wish to make.
FAI property price
2 280 000 €
€
per month
Do you have to sell to buy?
Our real estate consultants are at your disposal to estimate the value of your property. All our estimates are free of charge.
Estimate my propertyA living space to suit you
Junot takes you on a tour of the neighborhoods in which our agencies welcome you, and presents the specific features and good addresses.
Explore the neighborhoods











