Faisons un tour d'horizon
Référence de l’annonce : 1903CHMGIR07
Idéalement situé entre la rue de Sèvres et la rue de Babylone, à proximité immédiate des commerces et des transports, cet appartement de 33,03m² loi Carrez entièrement rénové offre des prestations haut de gamme.
Niché au cinquième par ascenseur, il comporte un espace séjour lumineux doté d'une cuisine ouverte aménagée et équipée et d’un spacieux balcon exposé plein ouest qui bénéficie d'une vue exceptionnelle sur les Invalides et les toits de Paris. La chambre, également prolongée par un balcon, dispose de grands rangements et d'un espace buanderie. Une élégante salle de douche et des toilettes indépendantes complètent l’espace.
Une cave vient parfaire ce bien rare.
EXCLUSIVITÉ.
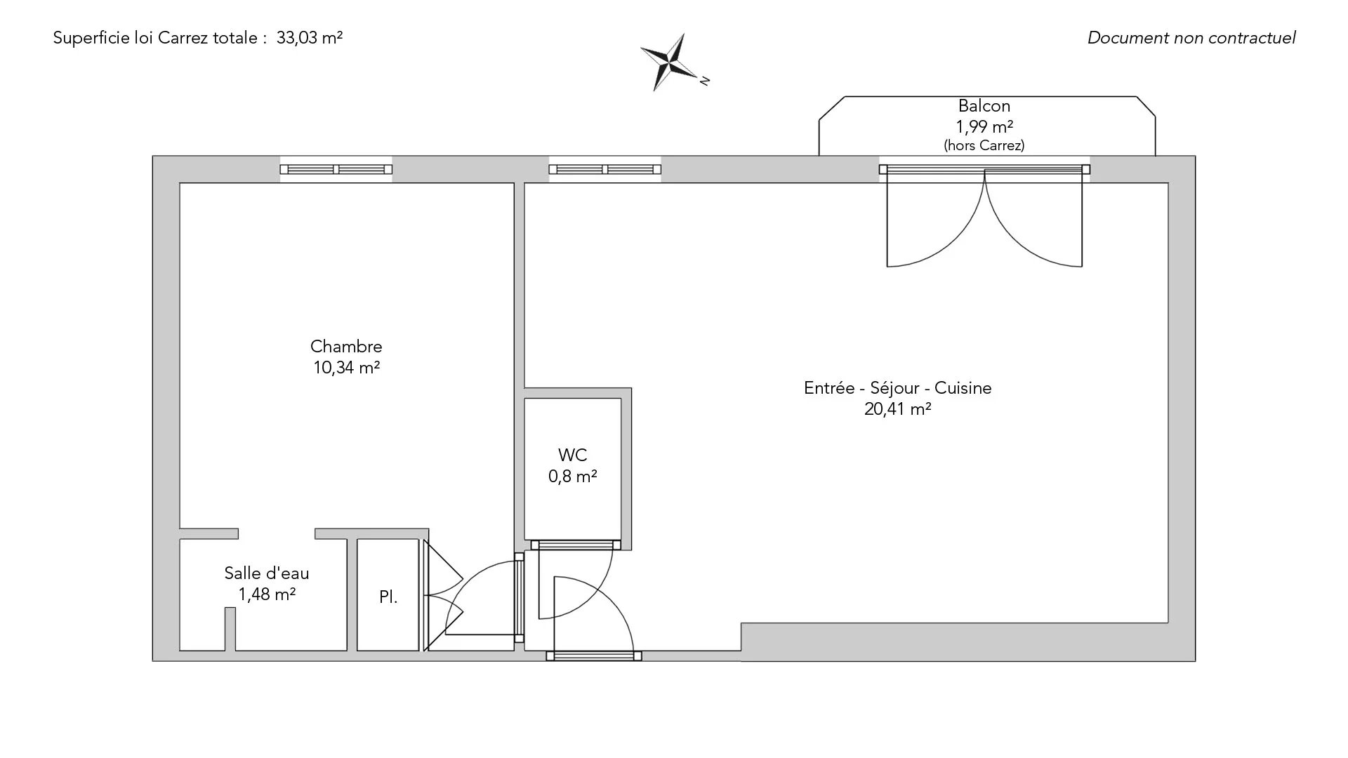
- Habitable : 33,03 m²
- 2 pièces
- 1 chambre
- 1 salle de douche
- Étage 5/6
- Exposition Ouest, Sud
- Excellent état
- Meublé
Ce qui nous séduit
- Vue exceptionnelle
- Balcon/Terrasse
- Adresse très recherchée
- Prestations exceptionnelles
- Lumineux
- Calme
- Ascenseur
- Cave
- Vue dégagée
On vous en dit plus
Réglementations & éléments financiers
Les informations sur les risques auxquels ce bien est exposé sont disponibles sur le site Géorisques : www.georisques.gouv.fr
| Diagnostics |
|---|
Consommation énergie finale : B - 84 kWh/m²/an.
Montant estimé des dépenses annuelles d’énergie pour un usage standard : entre 560,00 € et 810,00 € /an (abonnement compris).
| Éléments financiers |
|---|
Taxe foncière : 840,00 € /an
Détails de l’intérieur & de l’extérieur
| Pièce | Surface | Détail |
|---|---|---|
| 1x Cave | 5.39 m² | Étage : Sous-sol |
| 1x Séjour/cuisine | 20.41 m² |
Étage : 5ème Exposition : Ouest Plafond : 2.65m |
| 1x Balcon | 1.99 m² | Étage : 5ème |
| 1x Salle de douche | 1.48 m² | Étage : 5ème |
| 1x Chambre | 10.34 m² | Étage : 5ème |
| 1x Toilettes | 0.8 m² | Étage : 5ème |
Prestations
Bâtiment & Copropriété
| Bâtiment |
|---|
-
Construit en : 1905
-
Type : Brique
-
Nombre d'étages : 6
-
Niveau de qualité : Standing
| Copropriété |
|---|
50 lots d'habitation
Montant moyen annuel de la quote part de charges courantes : 1 488 €
Procédure en cours : Non
Rencontrez votre agence
Simulateur de financement
Calculez le montant des mensualités de votre prêt immobilier correspondant à l'emprunt que vous souhaitez effectuer.
Prix du bien HAI
780 000 €
€
par mois
Vous devez vendre pour acheter ?
Nos consultants immobiliers se tiennent à votre disposition pour réaliser une estimation de la valeur de votre bien. Toutes nos estimations sont offertes.
Je fais estimer mon bienUn lieu de vie à votre image
Junot vous fait visiter les quartiers dans lesquels nos agences vous accueillent, et vous présente les spécificités et bonnes adresses.
Parcourir les quartiers











