Faisons un tour d'horizon
Référence de l’annonce : 3449ABBBOI
À proximité immédiate du métro et des commerces de la rue Lepic.
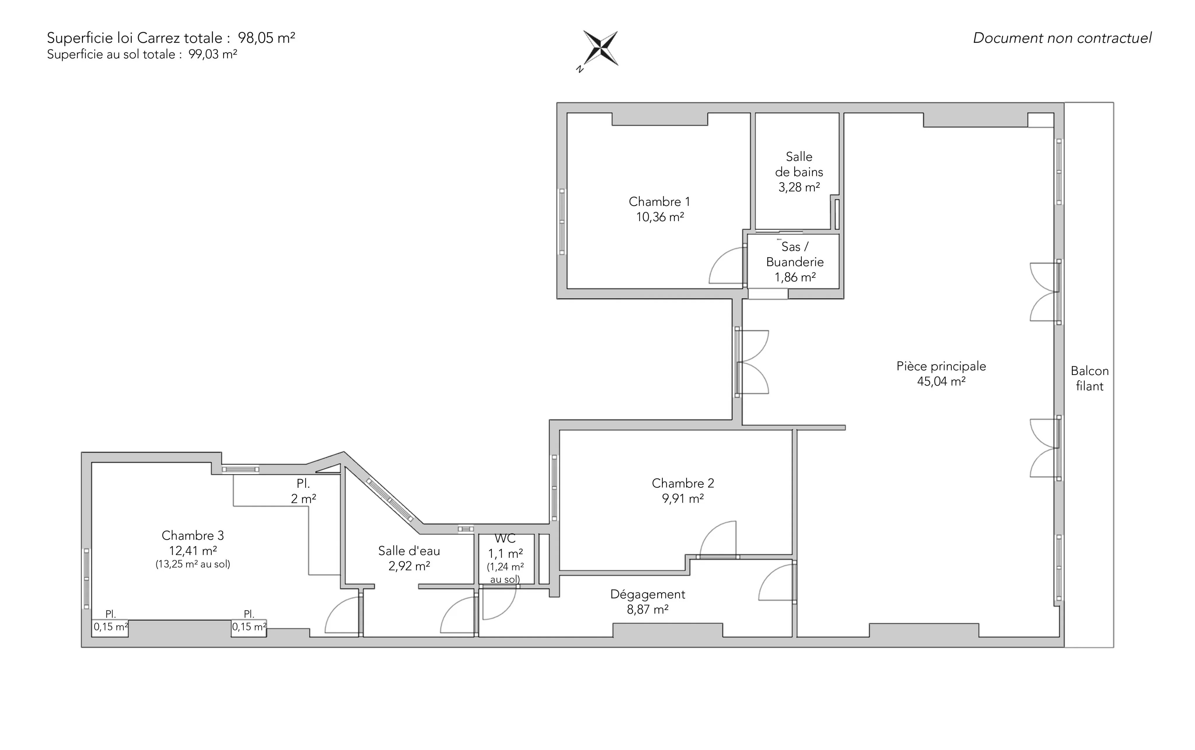
Au cinquième et dernier étage par escalier d'un bel immeuble ancien, seul sur le palier, appartement ensoleillé de 98,05m² loi Carrez, refait entièrement par architecte.
Le plan, parfaitement optimisé, comporte une entrée, une vaste pièce de vie avec cuisine ouverte donnant sur un balcon filant exposé sud-ouest et offrant une jolie vue dégagée.
Coté nuit, trois chambres dont une suite avec salle de douche et une salle de bains.
Une cave complète ce bien.
EXCLUSIVITÉ.
- Habitable : 98,05 m² Total : 99,03 m²
- 5 pièces
- 3 chambres
- 1 salle de bains
- 1 salle de douche
- Étage 5/5
- Cheminée
- Exposition Sud-ouest
- Excellent état
Ce qui nous séduit
- Balcon/Terrasse
- Dernier étage
- Lumineux
- Cave
- Vue dégagée
On vous en dit plus
Réglementations & éléments financiers
Les informations sur les risques auxquels ce bien est exposé sont disponibles sur le site Géorisques : www.georisques.gouv.fr
| Diagnostics |
|---|
Consommation énergie finale : C - 144 kWh/m²/an.
Montant estimé des dépenses annuelles d’énergie pour un usage standard : entre 1 620,00 € et 2 230,00 € /an (abonnement compris).
Prix moyen des énergies indexées au 01/01/2023.
| Éléments financiers |
|---|
Taxe foncière : 1,00 € /an
Détails de l’intérieur & de l’extérieur
| Pièce | Surface | Détail |
|---|---|---|
| 1x Placard | 0.15 m² | |
| 1x Placard | 0.15 m² | |
| 1x Placard | 2 m² | |
| 1x Balcon | ||
| 1x Cave | Étage : Sous-sol | |
| 1x Séjour/cuisine | 45.04 m² |
Étage : 5ème Revêtement : Parquet |
| 1x Buanderie | 1.86 m² |
Étage : 5ème Revêtement : Parquet |
| 1x Chambre | 10.36 m² |
Étage : 5ème Revêtement : Parquet |
| 1x Salle de bains | 3.28 m² |
Étage : 5ème Revêtement : Parquet |
| 1x Dégagement | 8.87 m² |
Étage : 5ème Revêtement : Parquet |
| 1x Chambre | 9.91 m² |
Étage : 5ème Revêtement : Parquet |
| 1x Toilettes | 1.1 m² |
Étage : 5ème Revêtement : Carrelage |
| 1x Salle de douche | 2.92 m² |
Étage : 5ème Revêtement : Carrelage |
| 1x Chambre | 12.41 m² |
Étage : 5ème Revêtement : Parquet |
Prestations
Bâtiment & Copropriété
| Bâtiment |
|---|
-
Construit en : 1910
-
Nombre d'étages : 5
-
Niveau de qualité : Normal
| Copropriété |
|---|
Montant moyen annuel de la quote part de charges courantes : 3 024 €
Procédure en cours : Non
Rencontrez votre agence
Simulateur de financement
Calculez le montant des mensualités de votre prêt immobilier correspondant à l'emprunt que vous souhaitez effectuer.
Prix du bien HAI
1 190 000 €
€
par mois
Vous devez vendre pour acheter ?
Nos consultants immobiliers se tiennent à votre disposition pour réaliser une estimation de la valeur de votre bien. Toutes nos estimations sont offertes.
Je fais estimer mon bienUn lieu de vie à votre image
Junot vous fait visiter les quartiers dans lesquels nos agences vous accueillent, et vous présente les spécificités et bonnes adresses.
Parcourir les quartiers











