Faisons un tour d'horizon
Référence de l’annonce : 725JFPFRA
Entre le marché Saint-Germain et l’église Saint-Sulpice.
Au sein d’un immeuble typique du quartier
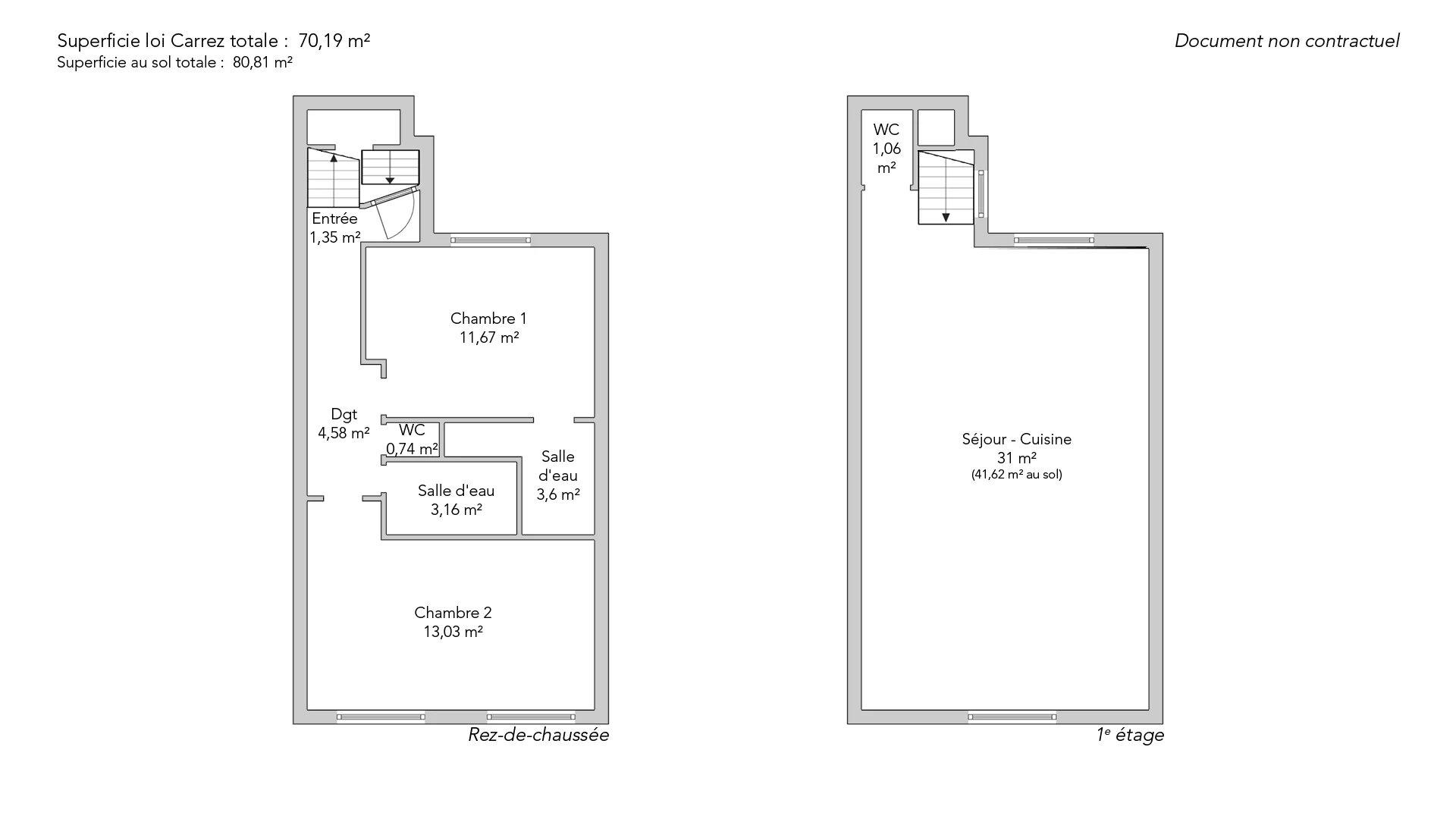
entièrement rénové en 2022, duplex de 80,81m² au sol (70,19m² loi carrez) situé aux deux derniers étages. Il comporte, au quatrième, deux chambres avec chacune leur salle de douche et de deux toilettes séparées. Au cinquième une vaste pièce de vie traversante avec cuisine ouverte.
La hauteur sous plafond est remarquable.
Le bien a été refait à neuf tout en gardant ses poutres apparentes et dispose de la climatisation dans les trois pièces.
Excellent diagnostic de performance énergétique (D).
- Habitable : 70,19 m² Total : 80,81 m²
- 3 pièces
- 2 chambres
- 2 salles de douche
- Exposition Nord, Sud
- Bon état
Ce qui nous séduit
- Adresse très recherchée
On vous en dit plus
Réglementations & éléments financiers
Les informations sur les risques auxquels ce bien est exposé sont disponibles sur le site Géorisques : www.georisques.gouv.fr
| Diagnostics |
|---|
Consommation énergie finale : B - 85 kWh/m²/an.
Montant estimé des dépenses annuelles d’énergie pour un usage standard : entre 882,00 € et 1 195,00 € /an (abonnement compris).
Prix moyen des énergies indexées au 01/01/2021.
| Éléments financiers |
|---|
Détails de l’intérieur & de l’extérieur
| Pièce | Surface | Détail |
|---|---|---|
| 1x Entrée | 1.35 m² | Étage : Rez-de-chaussée |
| 1x Dégagement | 4.58 m² | Étage : Rez-de-chaussée |
| 1x Chambre | 11.67 m² | Étage : Rez-de-chaussée |
| 1x Salle de douche | 3.6 m² | Étage : Rez-de-chaussée |
| 1x Toilettes | 0.74 m² | Étage : Rez-de-chaussée |
| 1x Chambre | 13.03 m² | Étage : Rez-de-chaussée |
| 1x Salle de douche | 3.16 m² | Étage : Rez-de-chaussée |
| 1x Toilettes | 1.06 m² | Étage : Rez-de-chaussée |
| 1x Séjour/cuisine | 31 m² | Étage : 1er |
Prestations
Bâtiment & Copropriété
| Bâtiment |
|---|
-
Construit en : 1830
-
Niveau de qualité : Normal
| Copropriété |
|---|
Montant moyen annuel de la quote part de charges courantes : 428 €
Procédure en cours : Non
Rencontrez votre agence
Simulateur de financement
Calculez le montant des mensualités de votre prêt immobilier correspondant à l'emprunt que vous souhaitez effectuer.
Prix du bien HAI
1 500 000 €
€
par mois
Vous devez vendre pour acheter ?
Nos consultants immobiliers se tiennent à votre disposition pour réaliser une estimation de la valeur de votre bien. Toutes nos estimations sont offertes.
Je fais estimer mon bienUn lieu de vie à votre image
Junot vous fait visiter les quartiers dans lesquels nos agences vous accueillent, et vous présente les spécificités et bonnes adresses.
Parcourir les quartiers











