Faisons un tour d'horizon
Référence de l’annonce : 3508GRECOL
Au cœur d'une rue calme et recherchée pour sa proximité immédiate avec le Bon Marché et tous les commerces environnants, cet appartement de 44,66m² loi Carrez se situe au troisième étage par ascenseur d'un bel immeuble ancien de 1910.
Au calme sur cour, il comporte une jolie pièce de vie orientée sud avec une agréable vue sur cour, une salle à manger avec sa cuisine intégralement aménagée et équipée, une spacieuse chambre agrémentée de sa salle de douche et de son dressing et des toilettes séparées.
Cet appartement au charme indéniable bénéficie d'un plan parfaitement optimisé, sans aucune perte de place, et d'une rénovation élégante et soignée qui se conjugue harmonieusement avec les éléments de l'ancien comme les parquets, les moulures, et la cheminée.
Proposé meublé, ce bien lumineux et au grand calme constitue un parfait pied-à-terre au sein de l'un des quartiers les plus recherchés de Paris.
Une cave vient compléter cette offre.
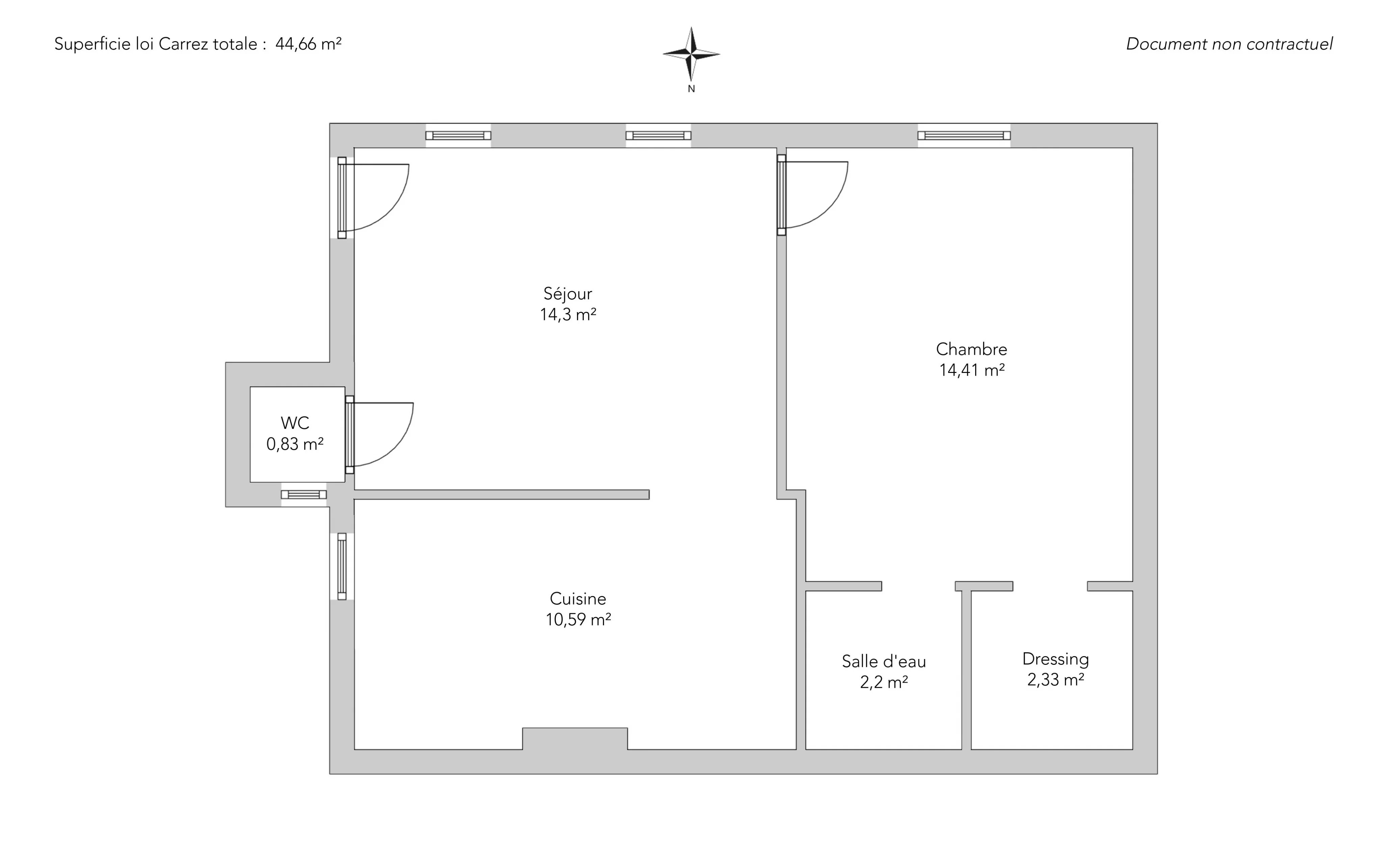
- Habitable : 44,66 m²
- 2 pièces
- 1 chambre
- 1 salle de douche
- Étage 3/6
- Cheminée
- Exposition Sud
- Excellent état
- Meublé
Ce qui nous séduit
- Adresse très recherchée
- Calme
- Traversant
- Ascenseur
- Cave
On vous en dit plus
Réglementations & éléments financiers
Les informations sur les risques auxquels ce bien est exposé sont disponibles sur le site Géorisques : www.georisques.gouv.fr
| Diagnostics |
|---|
Consommation énergie finale : a - 75 kWh/m²/an.
Montant estimé des dépenses annuelles d’énergie pour un usage standard : entre 640,00 € et 920,00 € /an (abonnement compris).
Prix moyen des énergies indexées au 01/01/2023.
| Éléments financiers |
|---|
Taxe foncière : 1 168,00 € /an
Détails de l’intérieur & de l’extérieur
| Pièce | Surface | Détail |
|---|---|---|
| 1x Cave | Étage : Sous-sol | |
| 1x Séjour | 14.3 m² | Étage : 3ème |
| 1x Salle à manger/Cuisine | 10.59 m² | Étage : 3ème |
| 1x Chambre | 14.41 m² | Étage : 3ème |
| 1x Salle de douche | 2.2 m² | Étage : 3ème |
| 1x Dressing | 2.33 m² | Étage : 3ème |
| 1x Toilettes | 0.83 m² | Étage : 3ème |
Prestations
Bâtiment & Copropriété
| Bâtiment |
|---|
-
Construit en : 1910
-
Nombre d'étages : 6
| Copropriété |
|---|
86 lots d'habitation
Montant moyen annuel de la quote part de charges courantes : 1 800 €
Procédure en cours : Non
Rencontrez votre agence
Simulateur de financement
Calculez le montant des mensualités de votre prêt immobilier correspondant à l'emprunt que vous souhaitez effectuer.
Prix du bien HAI
825 000 €
€
par mois
Vous devez vendre pour acheter ?
Nos consultants immobiliers se tiennent à votre disposition pour réaliser une estimation de la valeur de votre bien. Toutes nos estimations sont offertes.
Je fais estimer mon bienUn lieu de vie à votre image
Junot vous fait visiter les quartiers dans lesquels nos agences vous accueillent, et vous présente les spécificités et bonnes adresses.
Parcourir les quartiers












