Faisons un tour d'horizon
Référence de l’annonce : 3602MARGON
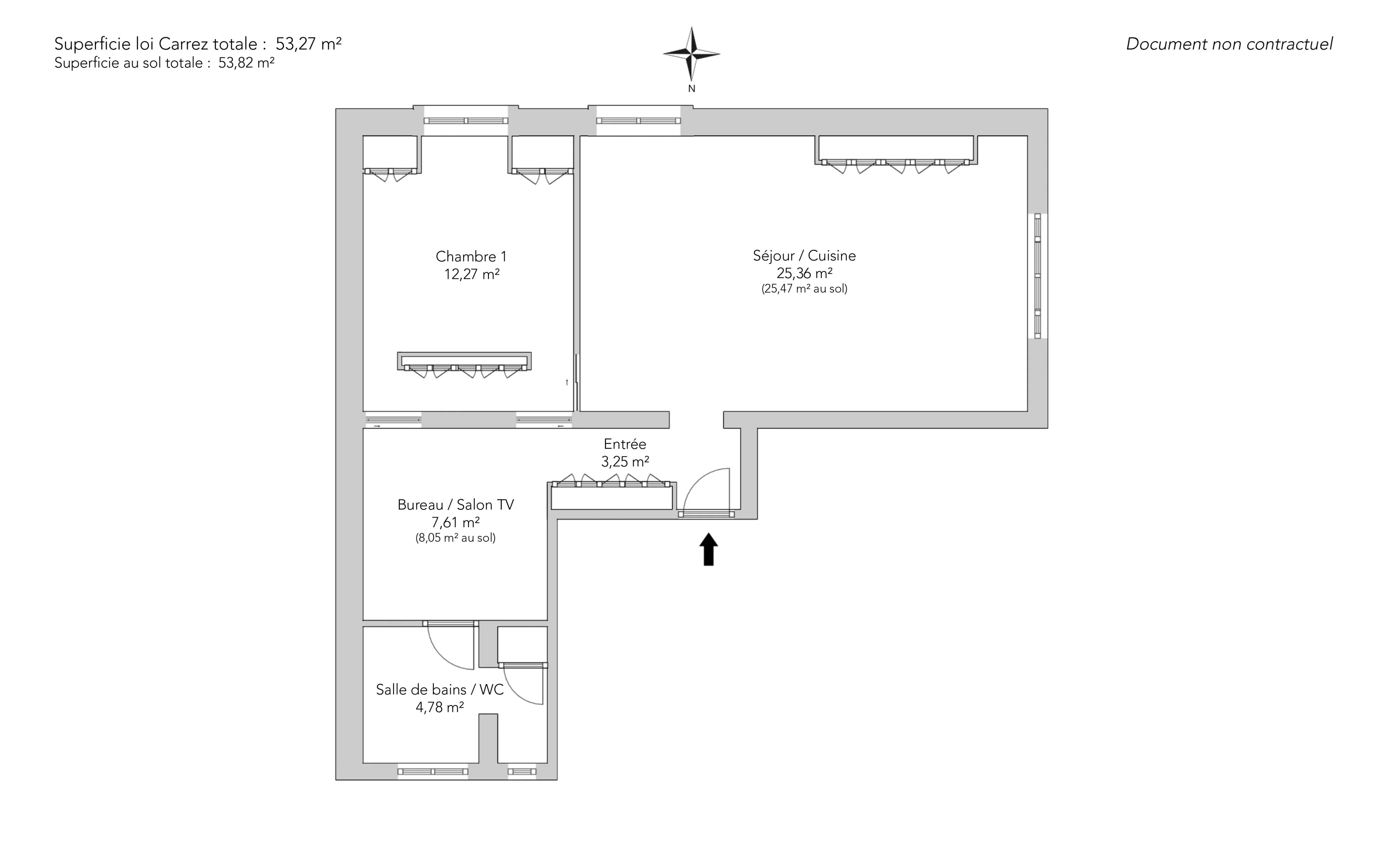
À deux pas de la très prisée rue des Martyrs, au sein d'une impasse préservée, ce sublime appartement de 53,27m² loi Carrez est situé au quatrième étage par ascenseur d'un bel immeuble en pierre de taille.
Parfaitement redistribué et rénové par architecte, son plan offre une entrée avec rangements, un séjour généreux de plus de 25m² orienté sud et ouest avec sa cuisine ouverte aménagée et équipée, une chambre avec dressing, un bureau pouvant faire office de salon télé, une salle de bains avec espace buanderie et toilettes. Une cave complète cette offre.
Ce bien conjugue le charme de l'ancien et une rénovation contemporaine, au travers de prestations soignées et d'aménagements sur mesure.
Il saura séduire par son emplacement prisé, ses vues dégagées, sa rénovation et son calme absolu.
Ensoleillement maximal pour ce bien proche des commerces et transports. L'appartement peut être vendu meublé.
EXCLUSIVITÉ
- Habitable : 53,27 m² Total : 53,82 m²
- 3 pièces
- 1 chambre
- 1 salle de bains
- Étage 4/6
- Exposition Ouest, Sud
- Excellent état
Ce qui nous séduit
- Adresse très recherchée
- Prestations exceptionnelles
- Lumineux
- Calme
- Traversant
- Ascenseur
- Cave
On vous en dit plus
Réglementations & éléments financiers
Les informations sur les risques auxquels ce bien est exposé sont disponibles sur le site Géorisques : www.georisques.gouv.fr
| Diagnostics |
|---|
Consommation énergie finale : a - 186 kWh/m²/an.
Montant estimé des dépenses annuelles d’énergie pour un usage standard : entre 1 100,00 € et 1 540,00 € /an (abonnement compris).
Prix moyen des énergies indexées au 01/01/2023.
| Éléments financiers |
|---|
Taxe foncière : 1 278,00 € /an
Détails de l’intérieur & de l’extérieur
| Pièce | Surface | Détail |
|---|---|---|
| 1x Cave | Étage : -1 | |
| 1x Entrée | 3.25 m² |
Étage : 4ème Revêtement : Parquet |
| 1x Séjour/cuisine | 25.36 m² |
Étage : 4ème Exposition : Sud-ouest Revêtement : Parquet Plafond : 2.7m |
| 1x Chambre | 12.27 m² |
Étage : 4ème Exposition : Sud Revêtement : Parquet |
| 1x Bureau | 7.61 m² |
Étage : 4ème Revêtement : Parquet |
| 1x Salle de bains / toilettes | 4.78 m² |
Étage : 4ème Exposition : Nord Revêtement : Carrelage |
Prestations
Bâtiment & Copropriété
| Bâtiment |
|---|
-
Construit en : 1889
-
Type : Pierre de taille
-
Nombre d'étages : 6
-
Niveau de qualité : Normal
| Copropriété |
|---|
26 lots d'habitation
Montant moyen annuel de la quote part de charges courantes : 3 672 €
Procédure en cours : Non
Rencontrez votre agence
Simulateur de financement
Calculez le montant des mensualités de votre prêt immobilier correspondant à l'emprunt que vous souhaitez effectuer.
Prix du bien HAI
890 000 €
€
par mois
Vous devez vendre pour acheter ?
Nos consultants immobiliers se tiennent à votre disposition pour réaliser une estimation de la valeur de votre bien. Toutes nos estimations sont offertes.
Je fais estimer mon bienUn lieu de vie à votre image
Junot vous fait visiter les quartiers dans lesquels nos agences vous accueillent, et vous présente les spécificités et bonnes adresses.
Parcourir les quartiers











